Продажа торгового помещения 52,83 м2 с арендатором в жилом комплексе ''Квартал Строгино'' (10 минут на автомобиле от метро Строгино). 1 линия домов.
Помещение 53,83 м2, располагается на углу первого этажа 25 этажного дома, открытая планировка, отдельный вход с фасада, высота потолка 3,5 м, витринные окна по фасаду. Электрическая мощность 8 кВт. Парковка перед фасадом. Место для размещения рекламы.
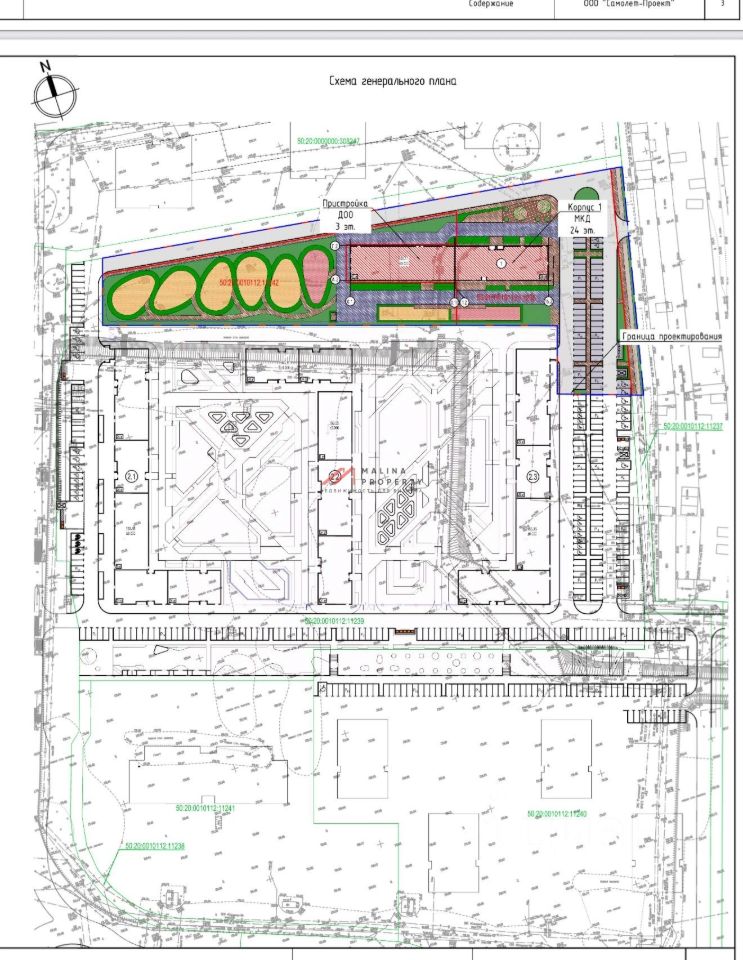
Помещение располагается на первой линии жилого комплекса, в центре жилого массива. Рядом с помещением будет находиться супермаркет, школа и детский сад.
Арендатор: федеральная сеть аптек, месячная арендная плата 330 000 рублей. Ежегодная индексация 5%. Окупаемость 10 лет .
Заселение: декабрь 2026 года.
Стоимость 39,6 млн. рублей.
Продажа торгового помещения 52,83 м2 с арендатором в жилом комплексе ''Квартал Строгино'' (10 минут на автомобиле от метро Строгино). 1 линия домов.
Помещение 53,83 м2, располагается на углу первого этажа 25 этажного дома, открытая планировка, отдельный вход с фасада, высота потолка 3,5 м, витринные окна по фасаду. Электрическая мощность 8 кВт. Парковка перед фасадом. Место для размещения рекламы.
Помещение располагается на первой линии жилого комплекса, в центре жилого массива. Рядом с помещением будет находиться супермаркет, школа и детский сад.
Арендатор: федеральная сеть аптек, месячная арендная плата 330 000 рублей. Ежегодная индексация 5%. Окупаемость 10 лет .