Универсальное помещение
Сергея Жадобкина, 13 Показать на карте
Сергея Жадобкина, 13 Показать на карте
Николо-Урюпино
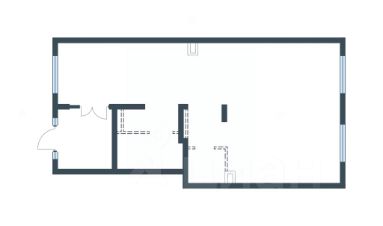
Сдаётся в аренду коммерческое помещение площадью 104,1 м на 1-м этаже 6-этажного жилого дома в ЖК ''Аникеевский''. Основные преимущества: 01. Отдельный вход,02. Место под вывеску,03. Витринное остекление,04. Возможность объединить несколько помещений под потребности бизнеса,05. Помещение без ремонта, что позволяет обустроить его по своему вкусу и требованиям бизнеса,06. Наличие коммуникаций: водоснабжения, канализации, электроснабжения, отопления,07. Круглосуточный доступ,08. Арендные каникулы,09. Помещение находится в жилом комплексе комфорт-класса,10. Развитый район с насыщенной инфраструктурой и активным пешеходным трафиком. Технические характеристики: наличие всех необходимых коммуникаций: водоснабжение, канализация, электроснабжение. Выделенная мощность - 16,6 кВт. Условия: помещение предоставляется без посредников, напрямую от собственника - компании ''Аструм Недвижимость'', которая управляет коммерческой инфраструктурой жилых комплексов ГК ''Гранель''. ЖК ''Аникеевский'' - это уютный экокомплекс на северо-западе Подмосковья, в Красногорском районе, всего в 12 км от МКАД. Комплекс расположен в экологически чистой зоне, окружённой реликтовым хвойным лесом, который формирует уникальный микроклимат и создаёт атмосферу уюта и спокойствия. Первая очередь проекта включает 4-6-этажные дома с благоустроенными дворами, детскими и спортивными площадками, а также зонами отдыха. Уже сданы в эксплуатацию шесть домов на 1130 квартир, где многие семьи отметили новоселье. Вторая очередь строительства включает современные 14-этажные корпуса. На территории комплекса предусмотрено всё необходимое для комфортной жизни: детский сад на 315 мест, поликлиника, магазины, кафе, офисы и другие объекты инфраструктуры. Для удобства автовладельцев оборудованы парковки, а коммерческие помещения свободного назначения подходят под любой вид бизнеса. Витринное остекление, отдельные входы, круглосуточный доступ и арендные каникулы делают эти объекты привлекательными для предпринимателей. ЖК ''Аникеевский'' также выгодно выделяется транспортной доступностью. Рядом находится станция МЦД-2 ''Аникеевка'', откуда на современных поездах можно быстро добраться до метро ''Волоколамская'' и ''Тушинская''. В будущем ожидается открытие станций новой Рублево-Архангельской линии метро, что дополнительно улучшит связь с Москвой. Комплекс прекрасно сочетает преимущества загородной жизни с комфортом городской инфраструктуры, что делает его идеальным выбором для семей с детьми. Наши менеджеры помогут вам подобрать наиболее подходящее помещение для вашего бизнеса. Звоните и узнайте подробности!
104 м2
- Показать контакты
- Добавить в избранное
104 м2
145 740 /мес.
1 400 /м2
