2-к, Космонавтов бульвар, 7 Показать на карте
Красногорск
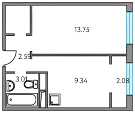
В аренду предлагается полностью укомплектованная 2-к квартира с кондиционерами!На большой кухне есть всё необходимое: плита, духовой шкаф с свч, вытяжка, посудомоечная машина, стиральная машина, холодильник и множество различных шкафов для хранения бытовой утвари. На кухне установлен кондиционер!В большой комнате различная мебель и выход на просторную лоджию. Вид во внутренний двор. В комнате тоже установлен кондиционер!В спальне полноценная двухспальная кровать, мебель, вместительный шкаф-купе для хранения вещей. Из спальни красивый вид на лес. 2 санузла. Проведён интернет и установлен роутер. Квартира полностью укомплектована мебелью и техникой и готова для проживания. ЖК Изумрудные Холмы это полностью обжитой, уже заселенный на 80% микрорайон комфорт-класса с функционирующей инфраструктурой: - 5 школ (в том числе художественная и балетная школа Вдохновение) - 4 детских сада - Поликлиника и медицинские центры.- Аллея Космонавтов с макетами космических кораблей в натуральную величину- Магазины, пекарни, салоны красоты, аптеки, товары для детей и животных, кафе, различные услуги и тд. В шаговой доступности остановки общественного транспорта, до станции Опалиха 7 минут на транспорте. Бесплатные автобусы до Ашан и Леруа Мерлен.Рядом лес, выход на знаменитую Красногорскую велосипедную и лыжную трассу. Оплата:Ежемесячный платеж + депозит + комиссияСчётчики оплачиваются отдельно.Показ по договоренности.Звоните или пишите!Если не ответил на звонок, напишите пожалуйста сообщение, я обязательно перезвоню.-----Примечание: у собственника могут быть дополнительные пожелания к жильцам - обсудите их в чате или по телефону можно.Предоплата за 1 месяцЗалог 50 000 ₽
60 м2
24 / 25 этаж
Монолит
- Показать контакты
- Добавить в избранное
60 м2
24 / 25 этаж
Монолит
50 000 /мес.
