Универсальное помещение
Александровская, 4 Показать на карте
Александровская, 4 Показать на карте
Красногорск
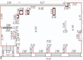
Сдаётся в аренду коммерческое помещение площадью 124,7 м на 1-м этаже 25-этажного жилого дома в ЖК ''Ильинойс''. Основные преимущества: отдельный вход, место под вывеску, витринное остекление, круглосуточный доступ, помещение без ремонта, что позволяет обустроить его по своему вкусу и требованиям бизнеса, помещение находится в жилом комплексе комфорт-класса, развитый район с насыщенной инфраструктурой и активным пешеходным трафиком. Технические характеристики: наличие всех необходимых коммуникаций: водоснабжение, канализация, электроснабжение. Выделенная мощность - 24,9 кВт. Условия: помещение предоставляется без посредников, напрямую от собственника - компании ''Аструм Недвижимость'', которая управляет коммерческой инфраструктурой жилых комплексов ГК ''Гранель''. ЖК ''Ильинойс'' сочетает авторскую архитектуру, современные инженерные решения и развитую инфраструктуру в окружении живописной природы. Территория благоустроена: закрытые дворы ''без машин'', детские и спортивные площадки. Проект включает два детских сада на 450 мест, парковки, систему видеонаблюдения и авторскую навигацию. Первая очередь строительства рассчитана на 2695 квартир. ЖК находится в 5 минутах от МКАД, рядом со станцией МЦД-2 ''Красногорская''. В перспективе - открытие станции метро ''Ильинская'' новой Рублево-Архангельской линии. Поблизости школы, детсады, поликлиники, ТРЦ ''РигаМолл'', парки и акватория Москвы-реки в 20 минутах ходьбы. На первых этажах комплекса размещены коммерческие помещения с отдельными входами, местами под вывески и круглосуточным доступом. Площади от 36 до 426 кв. м предлагаются без отделки, что дает возможность оформить их по индивидуальным требованиям. Наши менеджеры помогут вам подобрать наиболее подходящее помещение для вашего бизнеса. Звоните и узнайте подробности!
124 м2
- Показать контакты
- Добавить в избранное
124 м2
205 755 /мес.
1 650 /м2
