logo
N1.RU — новая улучшенная версия Е1.Недвижимость
Чтобы вернуться на старый сайт Е1.Недвижимость, перейдите по ссылке в нижней части сайта N1.RU
  • Продажа
  • Аренда
  • Новостройки
  • Журнал
  • Компании
  • Шаблоны документов
  • Налоговый вычет
  • Еще
  • Личный кабинет
    • Регистрация на Циан
    • Красногорск
  • Добавить объявление
Тип недвижимости
Красногорск
Начните вводить или выберите объект в выпадающем списке
Тип объекта
Цена
  1. Недвижимость в Красногорске
  2. Продажа
  3. Дома, коттеджи
  4. 5356 объявлений

Продажа домов, коттеджей в Красногорске

  • Без посредников100
За все время
Сортировка по умолчанию
СпискомСписком
ТаблицейТаблицей
На картеНа карте
Открыть поиск по карте

По вашему запросу объявлений не найдено

1/23
Коттедж, Тимошкино Показать на карте
Тимошкино
Лот: 98221. Загородный дом в четыре уровня площадью 740 кв.м под ключ с мебелью располагается на участке 20,5 сотки в камерном коттеджном поселке ''Шато Соверен''. На первом уровне (цоколь) находится спа-зона с сауной, хаммамом и душевой, санузел, холл, винная комната, гардеробная, постирочная, кладовая, блок для персонала. Второй уровень занимает две гостиные, одна из которых с камином, кухня, совмещенная с обеденной зоной, гостевой санузел, спальня с гардеробной и санузлом, холл, терраса. Третий уровень включает в себя три спальни, две из которых со своими гардеробными и санузлами, холл. Четвертый уровень (мансарда) отведен под спальню с гардеробной и санузлом, кабинет, комнату отдыха и кинотеатр. На придомовой территории отдельно построен гараж на два машино-места. До престижной Рублевки с ее закрытыми клубами, частными школами и ресторанами всего 10 минут езды.
740 м2
2 этажа
Кирпич
  • Показать контакты
  • Добавить в избранное
740 м2
2 этажа
Кирпич
225 751 860 
305 070 /м2
    1/50
    Коттедж, Изумрудная, 17 Показать на карте
    Нефедьево
    ИСКЛЮЧИТЕЛЬНОЕ ПРЕДЛОЖЕНИЕ ДЛЯ СЕМЬИ С ДЕТЬМИ. КОТТЕДЖ С ГОРКОЙ!!!Продается коттедж в КП комфорт класса '' Артек'' расположенном в 17 километрах по Волоколамскому шоссе рядом с неофициальной столицей Подмосковья - КРАСНОГОРСКОМ. Жилой комплекс Артек полностью обеспечен всеми центральными коммуникациями: электрические и газовые сети, водоснабжение с собственными артезианскими скважинами и водоотведение в очистные сооружения, построенные по современным технологиям. Территория поселка огорожена и охраняется. Видеонаблюдение и система контроля доступа на территорию позволяют жителям поселка почувствовать себя в полной безопасности. КП располагает благоприятными условиями для спокойной семейной жизни и отдыха на природе. На въезде в посёлок имеется : магазины, аптека, салон красоты, пвз, арт/спорт-студия, ателье, автомойка. Рядом с КП гольф поля, фитнес центр, конный клуб. Назначение земли ИЖС. Имеется возможность постоянной регистрации в доме. Площадь коттеджа 716 кв.м . Площадь участка 26 соток. Год постройки коттеджа 2021, предназначен для постоянного проживанияОдин взрослый собственник, без обременений, зарегистрированных нет. Материалы используемые при постройки фундамент плита, монолитный, не несущие перегородки блоки, вентилируемый фасад (керамогранит)В коттедже -центральные коммуникации: газ, электричество, водоснабжение (есть дублирующие газголдеры и генератор), отопление - котлыПомещения:•Мастер-спальня•2 детские комнаты•3 кухни: кухня-столовая-гостиная с биокамином, кухня во флигеле для персонала, уличная кухня с грилем Napoleon•Кладовая при мастер-кухне•Кабинет•Спортзал•Игровая•3 гардеробных•6 санузлов •Постирочная комната•Котельная•Инвентарная/чемоданная комната•Флигель для персонала/гостей (со своими кухней и санузлом, отдельным входом)•Банный комплекс (в периметре дома): комната отдыха, русская баня, электросауна•Отдельно стоящий хозблок для хранения садовой техники•2 террасы на 1 этаже, 6 террас на 2 этаже•Парковка подогреваемая под навесом на 4 автомобиляКоттедж оснащен системой системой видеонаблюдения, охранная система, дистанционные системы управления: котлами, входом в дом, автоматический полив участка. Полы в доме подогреваемые водяные, уличные террасы подогреваемые водяные. Канальная сплит-системаНа участке: детский городок, стена для сквоша, баскетбольное кольцо, турники, тесненный стол ландшафтный дизайнПри желании новые собственники смогут оборудовать полноценный бассейн, площадь участка позволяет.Показ по предварительной договоренности. Звоните . По телефону ответим на любые интересующие вопросы.
    716 м2
    2 этажа
    Монолит
    • Показать контакты
    • Добавить в избранное
    716 м2
    2 этажа
    Монолит
    150 000 000 
    209 497 /м2
      1/19
      Коттедж, Аристово Показать на карте
      Аристово
      Пятницкое ш., 10 км от МКАД, Аристово. Отличный двухэтажный с мансардой кирпичный меблированный дом площадью 280 кв.м в садовом товариществе. Монолитный фундамент и межэтажные перекрытия. На 1 этаже большой холл, гостиная, кухня, санузел, спальня с санузлом. На 2 этаже три спальни и санузел. В мансарде спальня с гардеробной и лоджией. Одноэтажный с мансардой дом-баня площадью 90 кв.м с бассейном, сауной, комнатой отдыха с тренажерами и теннисным столом. В мансарде апартаменты для персонала с санузлом и душевой. Водяные теплые полы на 1 этаже дома и в бане. Превосходный участок площадью 8 соток с соснами, туями, голубыми елями и плодовыми деревьями. Замечательная меблированная беседка-барбекю. Магистральный газ, электричество 10 кВт, артезианская скважина, биосептик, оптоволокно, видеонаблюдение, рольставни по периметру 1 этажа. Тихое уютное место. Рядом лес.Номер объекта: #1/536989/22448
      280 м2
      3 этажа
      Кирпич
      • Показать контакты
      • Добавить в избранное
      280 м2
      3 этажа
      Кирпич
      23 400 000 
      83 571 /м2
        1/38
        Дом, Живописная Показать на карте
        Дмитровское
        Номер в базе: 1761012. Предлагаю Вашему вниманию необыкновенный вариант загородной жизни, элитное домовладение расположенное в престижном коттеджном поселке ''Николина поляна'', всего в 20 км от Ильинского шоссе. На земельном участке в 18 соток располагается изысканный авторский дом с эксклюзивными планировочными решениями, обшей площадью 584 м2, который воплощает в себе гармонию стиля, комфорта и функциональности. Дом готов для проживания и предлагает интерьер с дизайнерской отделкой ''под ключ'' и мебелью, созданной из натуральных материалов высочайшего качества. Внимание к деталям и безупречный вкус архитектора воплотились в использовании роскошного мрамора: Palissandro Blue Ocean из Италии, Nero Marquina из Испании, Silver Wave из Италии и Pirgon Alas из Греции, который придают дому изысканность и элегантность, подчеркивая его уникальный характер. Высокие потолки и панорамные окна, наполняют пространство естественным светом, создавая ощущение свободы. Просторная гостиная с дровяным камином и потолками высотой 6 метров становится идеальным местом для уютных семейных вечеров и приема гостей и кухонной зоной. Из гостиной есть выход в сад, где можно наслаждаться красотой природы. Уютный кабинет с санузлом.Три мастер-спальни с просторными гардеробными и санузлами и биокамином. Большой главный холл и две гардеробные для верхней одежды чемоданов и аксессуаров при входе. Просторна постирочная в зоне BOH ( back of house) и профессиональная кухня с отдельным входом BOH и выходом во внутренний двор для персонала обеспечивают максимальное удобство и функциональность. В доме предусмотренная шахта в которой при желании возможно установить лифт, что повышает функциональность и удобство использования пространства. Гараж на три машины с мансардой и площадью более 100 м удовлетворит потребности самых требовательных автовладельцев. Роскошная SPA-зона с выходом в сад и внутренний двор оборудована джакузи, сауной и хаммамом, что позволит вам расслабиться и восстановить силы после тяжелого дня. Зона отдыха с биокамином создаст атмосферу уюта и тепла в холодные вечера. Сантехника от Villeroy&Boch и коллекция Palomba от LAUFEN подчеркивают высокий уровень комфорта и стиля в каждом уголке этого уникального дома, а итальянский керамогранит добавляет финальные штрихи. Информация о коттеджном поселке: В картинно прекрасном месте между Москва-рекой и рекой Истра, среди лесных ландшафтов и цветочных полян расположился элитный коттеджный поселок Николина поляна. Это экологически чистая зона с хвойным бором и Истринским и Рублевским водохранилищами неподалеку. Недвижимость в данной локации весьма востребована. Это место создано для спокойной, размеренной и роскошной жизни. Здесь выросли элитные дома и поселились уважаемые и успешные люди. Покупка данного дома может стать самым удачным вложением в Вашей жизни. В поселке функционирует детские и спортивные площадки, детский сад, детский развивающий центр, салон красоты. В шаговой доступности: магазины, аптека, автосервис, ресторан, сКод пользователя: 149240
        584 м2
        2 этажа
        • Показать контакты
        • Добавить в избранное
        584 м2
        2 этажа
        170 000 000 
        291 096 /м2
          1/19
          Дом, Ивушка СНТ, 121 Показать на карте
          Ивушка СНТ
          Номер лота: нп-0022036.Продам дом 126 м2 на участке 6 соток в СНТ ''Ивушка''. Участок расположен рядом с КПП, недалеко есть детская площадка с футбольным полем. Въезд на территорию СНТ - через два КПП с автоматическими шлагбаумами. Соседи проживают круглогодично.Дом обладает всеми необходимыми коммуникациями для комфортного проживания. В доме пропущены все сети: электричество, водоснабжение и канализация. 1-ый этаж: прихожая, гостиная, кухня-столовая, раздельный санузел.2-ой этаж: две спальни, две детские гостевые комнаты, туалет. Дом предназначен для круглогодичного проживания.На участке также расположены отдельный гостевой домик и беседка для отдыха, высажен и плодоносит прекрасный сад, где вы сможете насладиться свежими фруктами и ягодами.СНТ окружен лесным массивом, в шаговой доступности от дома - природные водоемы: несколько озер, пруды. В шаговой доступности ТРЦ ''Павлово Подворье'', где размещено все необходимое для комфортной жизни и отдыха: супермаркеты, кафе, рестораны и т.п., работает доставка из сетевых супермаркетов и маркетплейсов.Удобное транспортное сообщение с Москвой позволяет вам быстро и легко добираться до города на работу, для деловых и дружественных встреч.
          126 м2
          2 этажа
          • Показать контакты
          • Добавить в избранное
          126 м2
          2 этажа
          13 900 000 
          110 317 /м2
            1/37
            Дом, Беговая, 13 Показать на карте
            Поздняково
            ПРОДАЕМ ДОМ ПОД ОТДЕЛКУ В КОТЕДЖНОМ ПОСЕЛКЕ HUGGO HOUSE ( ХЮГГЕ ХАУС) , КОТОРЫЙ РАСПОЛОЖЕН В 7 КМ. ОТ МОСКВЫ ПО НОВОРИЖСКОМУ ШОССЕ.БЫСТРЫЙ ВЫХОД НА СДЕЛКУ!!!БЕЗ ОБРЕМЕНЕНИЙ.ТРАНСПОРТНАЯ ДОСТУПНОСТЬ: 16 мин ехать до станции метро Д2 Нахабино.16 мин ехать до станции метро Д2 Аникеевка.16 мин ехать до станции метро Д2 Павшино. О ДОМЕ: Общая площадь 308 м2 . В доме 3 этажа.Площадь участка 5,6 сотки.41 м2-терасса.40 м2 плюс 26м2 -эксплуатируемая кровля.В доме планировалось 4 спальни, одна из которых мастер спальня с санузлом.4 санузла.Поэтажные планировки вы можете увидеть в фоторяде объявления.О КОТЕДЖНОМ ПОСЕЛКЕ:84 дома на 7,5 га земли.Территория поселка закрыта и охраняема.На территории поселка обустроены зона отдыха, прогулочная зона и детская площадка.Предусмотрен гостевой паркинг.Все коммуникации-магистральный газ, электричество, центральные водопровод и канализация, высокоскоростной интернет.ИНФРАСТРУКТУРА: Рядом с поселком лесной массив и река Липка.В пешей доступности конный комплекс '' НОВЫЙ ВЕК''.Поблизости есть школы, детские сады, медицинские и спортивные учреждения, магазины и торгово-развлекательные центры.Дом без Обременений.Быстрый выход на сделку.Один собственник.Полная стоимость в договоре. ДЛЯ НАШИХ ПОКУПАТЕЛЕЙ: Помощь в получении ипотеки в топ банках , с 99% степенью одобрения .Бесплатное юридическое сопровождение сделки. Оперативный показ.Детали по телефону. Звоните!
            308 м2
            3 этажа
            Кирпич
            • Показать контакты
            • Добавить в избранное
            308 м2
            3 этажа
            Кирпич
            46 000 000 
            149 351 /м2
              1/39
              Дом, Беговая, 11 Показать на карте
              Поздняково
              Арт. 95769410 Дом с дизайнерским ремонтом на Новой Риге в КП Hygge House, 7 км от Москвы. Предельно функционален и обеспечивает максимальный уровень комфорта. Премиальное качество мебели и материалов для отделки. Особое внимание уделяется освещению, соответствующее единой дизайнерской концепции. Умный дом, теплые полы, вентиляция и кондиционирование. В доме 5 спален, 5 с/у, гардеробные, гостиная, столовая с панорамными окнами и выходом к зоне барбекю, зона СПА, большая терраса на крыше дома, теплый гараж на два авто. Перед домом дополнительная парковочная площадка. Самый большой и видовой участок. Дом подключен к центральным коммуникациям. В КП : детская игровая площадка, парковая зона, зеленый прогулочный бульвар. Деревня Поздняково. Рядом расположены Поселок Николо-Урюпино. Глухово. Архангельское. Новоархангельское.
              400 м2
              3 этажа
              Кирпич
              • Показать контакты
              • Добавить в избранное
              400 м2
              3 этажа
              Кирпич
              150 000 000 
              375 000 /м2
                1/20
                Дом, Верещагина Показать на карте
                Поздняково
                Лот: 103413. ПЛАНИРОВОЧНОЕ РЕШЕНИЕ: Цоколь: спортзал, спа-зона с сауной, комнатой отдыха, с/у и душевой, зимний сад, кладовые, постирочная, спальня для персонала. 1 этаж: холл, гостиная со вторым светом и камином, кухня-столовая, кабинет/спальня, гардеробная, с\у. 2 этаж: холл, мастер-спальня с с/у и гардеробной, 3 спальни, с/у, балкон.На участке выполнен ЛАНДШАФТНЫЙ ДИЗАЙН, растут ели, сосны, туи.
                408 м2
                • Показать контакты
                • Добавить в избранное
                408 м2
                140 000 000 
                343 137 /м2
                  1/22
                  Коттедж, Николо-Урюпино Показать на карте
                  Николо-Урюпино
                  ID: 18943Новый двухэтажный дом в коттеджной застройке ''Николо-Урюпино'' - это пространство, где можно создать по-настоящему уникальное и уютное пространство. Площадь дома 600 квадратных метров позволяет воплотить любые дизайнерские задумки, а отсутствие внутренней отделки открывает полную свободу для выбора стиля и материалов.Ровный участок в 40 соток с взрослыми деревьями, но без ландшафтного оформления, станет идеальной основой для создания вашего собственного оазиса. Вы сможете спроектировать здесь всё, что пожелаете: просторные террасы, ухоженный сад или стильную зону отдыха с беседкой и барбекю. Рельеф участка позволяет сразу приступать к реализации любых идей, не требуя дополнительных подготовительных работ.Дом спроектирован так, чтобы вместить всё, что необходимо для комфортной жизни. Шесть просторных спален обеспечат место для каждого члена семьи, а наличие отдельной квартиры для персонала добавляет удобства в повседневной жизни. Бассейн станет центром притяжения как для ежедневного расслабления, так и для встреч с друзьями. А гараж на два автомобиля, встроенный в контур дома, позволит вам не беспокоиться о погоде и сохранности вашего транспорта.Расположение дома в 13 километрах от МКАД по Новорижскому шоссе сочетает в себе спокойствие загородной жизни и удобную близость к столице. Престижное окружение, тишина и чистый воздух делают это место идеальным для тех, кто хочет сбежать от городской суеты.Информация о коттеджном поселке: Старинное село Николо-Урюпино окружает зелень заповедных лесов, чистые воды речки Липка и старинные аристократические усадьбы. Ближайшая из них - Николо-Урюпино - принадлежала князьям Голицыным. От богатого архитектурного ансамбля остались великолепный парк с вековыми деревьями, Белый домик и живописные руины господского особняка. Рядом стоит одна из главных достопримечательностей области, церковь Николая Чудотворца 17 века. Покупка недвижимости в Николо-Урюпино позволит наслаждаться красотой подмосковных пейзажей и уникальной исторической атмосферой всего в четверти часа езды от мегаполиса.Если вас заинтересовал объект - мы всегда на связи, звоните! В удобное для вас время организуем показ!Наше агентство - прямой представитель собственника этого дома, поэтому мы сможем ответить на все ваши вопросы.Каждому клиенту мы гарантируем полное юридическое сопровождение.Вы также можете написать нам сообщение, оставив в нем свой номер для обратной связи. Мы перезвоним вам в течение дня.Подпишитесь на уведомления о снижении цены, чтобы первым узнать о выгодном предложении!
                  600 м2
                  2 этажа
                  • Показать контакты
                  • Добавить в избранное
                  600 м2
                  2 этажа
                  250 000 000 
                  416 667 /м2
                    1/25
                    Коттедж, Николо-Урюпино Показать на карте
                    Николо-Урюпино
                    Номер объекта 82577. В продаже дом на шикарном участок 15 соток, на берегу реки Липка.Участок СНТ с выходом к реке, около села Николо-Урюпино. Очень живописное место, На участке много хвойных деревьев, участок имеет небольшой уклон с водоему.На участке возведен дом 435,7 кв. м. фундамент, стены и кровля - завершены, установлены окна, двери, установлены ворота в гараж, завершены фасадные работы. Можно начинать внутреннюю отделку. Функциональная планировка дома:1 этаж: 3 спальни со своими санузлами и гардеробными, кухня, столовая, зона отдыха и просторная гостиная.2 этаж: 3 спальни, два санузла и вторая гостиная.Цокольный этаж: гараж на 2 автомобиля, котельная, и четыре помещения свободного назначения.В поселке развитая инфраструктура. Есть детские и спортивные площадки, много мета для прогулок и отдыха.Газ, электричество, вода и канализация - центральные, заведены в дом.До МКАД 17 км. В сентябре 2025 года откроется прямая дорога с Новорижского шоссе.Звоните и записывайтесь на показ!Возможен торг после показа.
                    435 м2
                    2 этажа
                    Кирпич
                    • Показать контакты
                    • Добавить в избранное
                    435 м2
                    2 этажа
                    Кирпич
                    87 000 000 
                    200 000 /м2
                      1/5
                      Коттедж, Поздняково Показать на карте
                      Поздняково
                      Предлагаем загородную резиденцию в 9 км от МКАД по Новорижскому шоссе в одном из самых премиальных коттеджных поселков -Никольская слобода. Дом 1800м расположен на лесном участке (81сотка). гармоничные выдержанный стиль. премиальные материалы в отделке. высочайшее качество строительства. СПА комплекс с бассейном , гараж на 6 машин, блок охраны и персонала. Планировка дома:1-й этаж:холл, гостиная с камином, видом на лес и выходом на террасу, столовая, кухня, бильярдная, зимний сад, гардеробная, две гостевые спальни с ванными комнатами2-этаж: гостиная второго этажа, 4 спальни с ванными комнатами и гардеробными.
                      1800 м2
                      2 этажа
                      Монолит
                      • Показать контакты
                      • Добавить в избранное
                      1800 м2
                      2 этажа
                      Монолит
                      2 000 000 000 
                      1 111 111 /м2
                        1/28
                        Коттедж, Советская, 7б Показать на карте
                        Александровка
                        Арт. 111352560 Загородный дом мечты в 20 минутах от Москвы, рядом с Барвихой! Предлагаем вашему вниманию дом в деревне Александровка, всего в 20 минутах езды от Москвы! Площадь: 184 кв.м.Участок: 6 соток.Дом построен из кирпича, наружная отделка - декоративный клинкер, фундамент - плитаУдобства: Терраса, зона барбекю.Качественный ремонт, радиаторы, бойлер, умные энергосберегающие полы, электричество.Планировка:1 этаж: кухня, зал, санузел с выходом во двор, техническое помещение, кладовка, гардеробная.2 этаж: 3 комнаты, гардеробная, санузел с ванной.Коммуникации: центральное водоснабжение с системой очистки, септик, электричество, газ по границе с возможностью подключения.Инфраструктура: В 3 минутах езды школы, детские сады, магазины и супермаркеты.Природа: Рядом ''Александровский лес'' и набережная с чистым притоком Москвы-реки.Развлечения: В 900 метрах ресторан ''Причал'', в 7 минутах езды Barvikha Luxury Village.Идеальный дом для комфортной жизни за городом!Ждем Вас на просмотр!
                        184 м2
                        2 этажа
                        Кирпич
                        • Показать контакты
                        • Добавить в избранное
                        184 м2
                        2 этажа
                        Кирпич
                        49 900 000 
                        271 196 /м2
                          1/24
                          Коттедж, Тимошкино Показать на карте
                          Тимошкино
                          Дом под ключ с мебелью на ландшафтном участке с деревьями с видом на лес.Площадь дома 438 кв.м.Площадь участка по документам 22,62 сотки4 изолированные комнаты 4 гардеробные, 4 санузлаНа первом этаже 1 комната свободного назначенияНа 2 этаде 3 мастер спальниДеталиВ гостинной камин.Паркет от итальянской фабрики IPF, керамогранит от итальянского -производителя Fiandre. Раздвижные двери и стеновые панели от итальянской фабрики LONGHI. Сантехника брендов: HIPPE, Cielo, Gessi, Bisazza, Antonio Lupi, Duravit, Ideal Standard. Кухня фабрики Mittel. О поселке.Рядом с Москвой на границе леса клубный поселок. Гранитная мостовая улиц. Профессиональная охрана. Парковая зона с детской площадкой. Спортивный комплекс в поселке
                          438 м2
                          2 этажа
                          Кирпич
                          • Показать контакты
                          • Добавить в избранное
                          438 м2
                          2 этажа
                          Кирпич
                          202 362 000 
                          462 014 /м2
                            1/36
                            Дом, Поздняково Показать на карте
                            Поздняково
                            158972 Никольская СлободаАбсолютно новый дом площадью 590 кв. м на участке 15 соток в элитном охраняемом поселке Никольская Слобода.Дом оборудован приточно-вытяжной вентиляцией, канальными кондиционерами со скрытой установкой. Внутренняя отделка выполнена из дорогостоящих материалов: полы из массива американского ореха, стеновые панели из ореха и дуба с подсветкой, отделка камина — натуральный камень, французский камин Supra, крупноформатный современный керамогранит. Кухня оснащена техникой премиального уровня KUPPERSBUSCH, двумя винными шкафами, столешницей из кварцита и т.д. Сантехника премиальных брендов: Villeroy & Boch, Jacob Delafon, Jacuzzi.На участке выполнен ландшафтный дизайн, вымощены дорожки, установлено освещение и фасадная подсветка, автоматический полив, высажены декоративные деревья и крупномеры (сосны, ели, красные канадские клены, каштаны и др.), выложен элитный рулонный газон. Отдельно на участке расположена беседка с обеденной зоной и барбекю (70 м²).Планировка дома:1 этаж: прихожая, гардеробная, санузел, кухня-гостиная со сквозным камином и панорамным остеклением, гараж на 2 автомобиля, СПА-зона: бассейн (7 м) с противотоком, сауна, санузел, терраса с всесезонным бассейном, технические помещения (постилочная, котельная).2 этаж: холл, 3 спальни с санузлами и гардеробными, кабинет (можно перепроектировать в спальню), спальня с отдельной лестницей и своей кухней (может использоваться как блок для персонала, гостевой блок и др.). Звоните сейчас, чтобы узнать подробную информацию и записаться на показ! Оперативный показ.
                            590 м2
                            2 этажа
                            Кирпич
                            • Показать контакты
                            • Добавить в избранное
                            590 м2
                            2 этажа
                            Кирпич
                            285 000 000 
                            483 051 /м2
                              1/14
                              Таунхаус, Ангелово Показать на карте
                              Ангелово
                              В МЖК ''Резиденция Ангелово'' предлагается идеальный таунхаус с 4 мя спальнями и со свежим евро ремонтом!1й этаж : гостиная с камином, объединённая с кухней и столовой, гостевой санузел, гардеробная. 2ой этаж: 2 спальни со своими ванными комнатами, 3й этаж: 2 спальни с гардеробной и ванной комнатой. Подвал: котельная, ванная комната, постирочная, комната свободного назначения, кладовки. Гараж на 1 машину . Окна выходят на 2 стороны: на паттио за гаражом и детскую игровую площадку. Закрытая охраняемая территория с детскими площадками, рестораном и своей управляющей компанией. По соседству вся инфраструктура Митино. Школы, детсады, торговые центры. В пешей доступности река и Красногорский лесопарк! Метро в 20 минутах ходьбы. Ходит шаттл до метро. Анжелика
                              260 м2
                              4 этажа
                              Монолит
                              • Показать контакты
                              • Добавить в избранное
                              260 м2
                              4 этажа
                              Монолит
                              75 000 000 
                              288 462 /м2
                                1/24
                                Дом, Озерная Показать на карте
                                Петрово-Дальнее
                                Продается коттедж для семейного проживания, расположенный в живописном месте - село Петрово-Дальнее в Красногорском районе.Этот просторный и уютный дом идеально подходит для большой семьи! Площадь 500 м² позволяет создать комфортные условия для каждого члена семьи.Коттедж продается с мебелью и техникой, что позволит сразу приступить к своей новой загородной жизни.Участок площадью 20 соток предоставляет вам возможность создать сад по вашему вкусу, разместить детские игровые площадки или организовать зону для отдыха.На территории расположены: гараж на 2 машины, гостевой домик, где можно принять гостей или разместить родственников, теплица для выращивания свежих овощей и фруктов, домик для барбекю, где можно проводить вечера в кругу семьи и друзей.Дорога до Москвы занимает 25 минут! Идеальное предложение для тех, кто ищет роскошный дом в пригороде с богатой природой и городской инфраструктурой для комфортной жизни: продуктовые магазины, рестораны, детские центры, школы и детские сады, спортивные комплексы, торговые центры.Так же рядом расположены: пляж в пешей доступности, теннисный корт, конно-спортивный клуб. Транспортная доступность: - МКАД 15 км, - Ильинское шоссе 1,7 км,- Новорижское шоссе 6,8 км,- ЦКАД 24 км.- остановка общественного транспорта в 3х минутах - до МЦД ''Павшино'' - 20 минут на общественном транспорте- до метро ''Строгино'' - 30 минут на общественном транспортеОкружающая природа и благоустроенная территория сделают ваше проживание в этом коттедже по-настоящему комфортным. Вы будете наслаждаться чистым воздухом, красивыми пейзажами и тишиной, которая позволит вам расслабиться и отдохнуть от городской суеты.Петрово-Дальнее это истинное стародачное место подмосковья, окруженное хвойным лесом и рекой Липкой всего в 150 метрах от участка.В поселке широкие асфальтированные дороги, тротуары.На участке выполнен ландшафтный дизайн. Растут плодовые деревья, туи. Установлено: дизайнерское освещение, видеонаблюдение по периметру участка.Коттедж построен в итальянском стиле и имеет несколько уровней:- Цоколь: тренажерный зал, 2 винных погреба, душ, котельная.- 1 этаж: прихожая - каминный зал, зимний сад, бассейн с противотоком для плавания (4,2 х 4,2м, установлена современная система фильтрации), сауна, с/у, 2 спальни- 2 этаж: кухня-гостиная, зал, 3 спальни, с/у.- 3 этаж: 3 спальни, 2 спальни с балконами, спальня с собственным с/у и гардеробной комнатой, с/у.Коммуникации:- Электрическая мощность 15кВт,- Отопление - магистральный газ,- Скважина с системой фильтрации,- Септик.Если вы мечтаете о комфортном и просторном жилье в живописном месте, где вы сможете наслаждаться природой и одновременно быть близко к городской инфраструктуре, то этот коттедж идеально подойдет для вас!Возможен обмен на коммерческую/складскую недвижимость в Москве и МО, жилую недвижимость в Москве.Выплачиваем комиссию агентам, приводите покупателей!
                                500 м2
                                3 этажа
                                Кирпич
                                • Показать контакты
                                • Добавить в избранное
                                500 м2
                                3 этажа
                                Кирпич
                                60 000 000 
                                120 000 /м2
                                  1/27
                                  Дом, Глухово Показать на карте
                                  Глухово
                                  Стильный дом с отделкой ''под ключ'' . Для внутренней отделки использовался мрамор и керамогранит. Дом оборудован эксклюзивной сантехникой и современной бытовой техникой. ПОЭТАЖНОЕ ОПИСАНИЕ: 1-ый уровень: прихожая, гардеробная, гостевой с/у, спальня с с/у и гардеробной, гостиная со вторым светом, тв-зоной, камином и выходом на участок, постирочная, котельная, гараж на 2 м/м 2-ой уровень: 2 спальни с с/у, гардеробной и балконом, спальня с с/у и гардеробнойУчасток 27 соток засажен качественным газоном и декоративными туями.
                                  500 м2
                                  Кирпич
                                  • Показать контакты
                                  • Добавить в избранное
                                  500 м2
                                  Кирпич
                                  220 000 000 
                                  440 000 /м2
                                    1/13
                                    Дом, Ново-Никольская, 74 Показать на карте
                                    Красногорск
                                    id:12479. Дом и земельный участок на первой линии от Волоколамского шоссе, 9км от МКАД! Прямой выезд. 20 мин пешком до станции Опалиха. Маршрутки в область и в Москву. Участок правильной ровной прямоугольной формы. На участке плодовые деревья ( яблоня, вишня, слива).Гараж, вольер. Одноэтажный дом, жилой площадью 37.7 м2 ( кухня-прихожая, 2 комнаты), подходит для круглогодичного проживания. Санузел в доме, полноценная ванна. Все коммуникации центральные - канализация, газ, вода, электричество. Инфраструктура в шаговой доступности - магазины, садик, школа, балетная школа, конюшня, лес и пруд. На участке рекламный щит - дополнительный ежемесячный доход. Идеальное место для коммерческой деятельности. Рассмотрим варианты приобретения, готовы к ипотеке и сертификатам, небольшой обоснованный торг возможен.
                                    37 м2
                                    1 этаж
                                    • Показать контакты
                                    • Добавить в избранное
                                    37 м2
                                    1 этаж
                                    12 000 000 
                                    318 302 /м2
                                      1/20
                                      Дом, Фруктовая, 7 Показать на карте
                                      Красногорск
                                      Код объекта: 1913655.Продается просторный жилой дом в черте города Красногорска! •Три этажа, готовые к отделке по вашему вкусу•Великолепная веранда для отдыха и встреч с семьей•Отличное расположение: вся инфраструктура рядом•Станция Опалиха всего в минуте ходьбы — удобная транспортная доступностьИдеальный вариант для комфортной жизни в городе с возможностью оформить интерьер самостоятельно!Оперативный показ.
                                      302 м2
                                      3 этажа
                                      Монолит
                                      • Показать контакты
                                      • Добавить в избранное
                                      302 м2
                                      3 этажа
                                      Монолит
                                      77 000 000 
                                      254 967 /м2
                                        1/23
                                        Таунхаус, Елисейская, 7 ст5 Показать на карте
                                        Ильинское
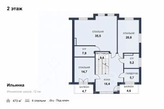
                                        Лот 59113. Таунхаус под ключ 473 кв.м. на участке 7.30 соток. Количество спален: 4. Коттеджный посёлок ''Ильинка'', Ильинское шоссе, 12 км от МКАД. На участке произведены ландшафтные работы. Установлена система автополива. Высажено большое количество зеленых насаждений, что придает ему приватность. По периметру посажены хвойные и лиственные породы деревьев. Дом после ремонта. Очень светлый. Мансардный этаж в свободной планировке, что позволяет увеличить количество спален. Цоколь: техническое помещение, котельная, кладовая, помещение под сауну, помещение свободного назначения.1 этаж: холл, кухня-столовая с выходом на участок, гостиная, с/у, постирочная, помещение свободного назначения.2 этаж: холл с выходом на балкон, главная спальня с гардеробной и с/у, 2 спальни, гардеробная, с/у.Мансарда: помещение свободного назначения, с/у.
                                        473 м2
                                        3 этажа
                                        • Показать контакты
                                        • Добавить в избранное
                                        473 м2
                                        3 этажа
                                        149 000 000 
                                        315 011 /м2
                                          1/15
                                          Дом, Третья Охота Показать на карте
                                          Третья Охота кп
                                          Строго охраняемый коттеджный поселок премиум класса ''Третья Охота''.Новый дом ''под ключ''. Фасад из натурального камня .Высокие потолки, панорамные окна, грамотная планировка.Поэтажный план: 1 этаж: Холл со вторым светом, гардеробная, гостевой санузел, гостевая спальня с с/у и гардеробной, кухня-столовая-гостиная с двухсторонним камином, вторая кухня, СПА зона с бассейном, хаммам, сауна, постирочная, котельная, гараж на 2 автомобиля 2 этаж: Холл, мастер-спальня с ванной комнатой и двумя гардеробными, четыре спальни с с/у и своими гардеробными.Цоколь: Технические помещения и для хранения.Установлена система приточно-вытяжной вентиляции с увлажнением и климат-контролем в каждом помещении, видеонаблюдение. На территории участка- Гостевой дом 66 м² ,Автоматический полив, освещение, гранитные дорожки с подогревом.
                                          1072 м2
                                          2 этажа
                                          Кирпич
                                          • Показать контакты
                                          • Добавить в избранное
                                          1072 м2
                                          2 этажа
                                          Кирпич
                                          768 975 600 
                                          717 328 /м2
                                            1/28
                                            Дом, Соколиной охоты, 1 Показать на карте
                                            Поздняково
                                            Этот великолепный дом расположен в элитном коттеджном посёлке Никольская слобода, который находится на Новорижском шоссе, всего в 8 километрах от МКАД. Его общая площадь составляет 590 квадратных метров, что обеспечивает комфортное проживание для всей семьи. На первом этаже находятся кухня-гостиная с двусторонним камином и панорамными окнами, бассейн с противотоком длиной 7 метров, сауна, открытая терраса, два санузла и гардеробная, технические помещения (постирочная, котельная), а также гараж на две машины. На втором этаже расположены три спальни и кабинет с индивидуальными гардеробными и ванными комнатами, а также спальня с отдельной лестницей и собственной кухней (может использоваться как гостевое пространство или зона для персонала). На территории находится отдельно стоящая тёплая беседка с камином площадью 70 квадратных метров.Номер лота: 7865
                                            590 м2
                                            2 этажа
                                            • Показать контакты
                                            • Добавить в избранное
                                            590 м2
                                            2 этажа
                                            320 000 000 
                                            542 373 /м2
                                              1/49
                                              Коттедж, Никольская Слобода Показать на карте
                                              Поздняково
                                              ID: 8301.Вашему вниманию предлагается новый современный дом в закрытом охраняемом коттеджном поселке Никольская Слобода.В доме 7 спален, 11 санузлов, бассейн. Фасад дома выполнен из натурального камня, гранита, керамогранита. Фундамент дома выполнен из монолитной плиты, стены из кирпича, монолитный железобетон, перекрытия — монолитный железобетон, окна деревянные.Внутренняя отделка дома выполнена из дорогих материалов, высококачественная дорогая техника и сантехника известных брендовых марок. По периметру дома система видеонаблюдения.В доме пожарная сигнализация, интернет проведен, бесшовный Wi-Fi, ТВ, аудио мультирум, домофон, электропривод штор, система защиты от протечек, усиление сотовой связи. Котельное оборудование Buderus с зональным управлением климатом, водяные теплые полы, дизайнерские радиаторы.Цоколь: техническое помещение 48,7 кв. м, уличная лестница 5,10 кв. м.1 этаж: холл, два санузла, гардеробная, сауна, бассейн, гараж на 2 машиноместа, электрощитовая, гостиная-столовая, спальня с санузлом и гардеробной.2 этаж: холл, кабинет, пять спален с санузлами, ванными комнатами и гардеробными, два санузла, отельный блок для персонала со своей спальней, санузлом, гардеробной и кухней для персонала.FS PROPERTY - участник ассоциации AREA.
                                              982 м2
                                              2 этажа
                                              Кирпич
                                              • Показать контакты
                                              • Добавить в избранное
                                              982 м2
                                              2 этажа
                                              Кирпич
                                              769 990 000 
                                              784 104 /м2
                                                1/50
                                                Коттедж, Поздняково Показать на карте
                                                Поздняково
                                                ID: 8301.Вашему вниманию предлагается новый современный дом в закрытом охраняемом коттеджном поселке Никольская Слобода.В доме 7 спален, 11 санузлов. Фасад дома выполнен из натурального камня, гранита, керамогранита. Фундамент дома выполнен из монолитной плиты, стены из кирпича, монолитный железобетон, перекрытия — монолитный железобетон, окна деревянные.Внутренняя отделка дома выполнена из дорогих материалов, высококачественная дорогая техника и сантехника известных брендовых марок. По периметру дома система видеонаблюдения.В доме пожарная сигнализация, интернет проведен, бесшовный Wi-Fi, ТВ, аудио мультирум, домофон, электропривод штор, система защиты от протечек, усиление сотовой связи. Котельное оборудование Buderus с зональным управлением климатом, водяные теплые полы, дизайнерские радиаторы.Цоколь: техническое помещение 48,7 кв. м, уличная лестница 5,10 кв. м.1 этаж: холл, два санузла, гардеробная, сауна, бассейн, гараж на 2 машиноместа, электрощитовая, гостиная-столовая, спальня с санузлом и гардеробной.2 этаж: холл, кабинет, пять спален с санузлами, ванными комнатами и гардеробными, два санузла, отельный блок для персонала со своей спальней, санузлом, гардеробной и кухней для персонала.FS PROPERTY -участник ассоциации AREA.
                                                982 м2
                                                2 этажа
                                                Кирпич
                                                • Показать контакты
                                                • Добавить в избранное
                                                982 м2
                                                2 этажа
                                                Кирпич
                                                769 990 000 
                                                784 104 /м2
                                                  1/14
                                                  Дом, Росинка СНТ, 111 Показать на карте
                                                  Росинка СНТ
                                                  Номер лота: нп-0020355.Новорижское шоссе 13 км от МКАД. Красногорский район, дер. Степановское. Охраняемый коттеджный поселок ''Росинка'' в окружении леса.Качественный дом 236,4 кв м с высокими потолками, 4 спальни, 3 санузла, 2 гардеробные комнаты. Полностью выполнены фасадные работы, штукатурка короед, сливы, откосы. Стены пенобетон, перекрытия ж/б, фундамент залита монолитная плита.Интересная, продуманная, функциональная планировка:1-ый этаж: крыльцо, прихожая, кухня-гостиная с панорамным остеклением и выходом на террасу, спальня, постирочная - бойлерная, санузел.2-ой этаж: три спальни, две из них с лоджиями, санузлами и гардеробными.КОММУНИКАЦИИ: центральная канализация, центральный водопровод, магистральный газ, оптоволокно по границе участка. В доме вся разводка коммуникаций выполнена, осталось только врезаться. Электричество 15 кВт подключено и разведено. УЧАСТОК: 6 соток, Земли населенных пунктов, сухой, правильной формы с лесными деревьями (сосны, березы). Дренаж вокруг дома. У соседей тоже лесные участки. ПОСЕЛОК: широкие дороги, асфальт, частный детский сад, детская, большая, качественная спортивная площадки. Приличное окружение, охрана. Поселок расположен на 54 гектарах в окружении хвойного леса, свежий воздух, тишина, уединение и спокойствие. Уникальность в выгодном географическом расположении: дом в лесу, время пути до центра 20 минут. Общественный транспорт: маршрутки от метро Строгино, Щукинская.Первый собственник, свободная продажа, обременений нет, все документы, и даже разрешение на строительство, вся стоимость в договоре. Возможна ипотека. Дом строился для себя. Недоделок осталось немного, можно быстро заехать. Оперативный показ, звоните! ЗН ИС.
                                                  250 м2
                                                  2 этажа
                                                  • Показать контакты
                                                  • Добавить в избранное
                                                  250 м2
                                                  2 этажа
                                                  21 000 000 
                                                  84 000 /м2
                                                    • В начало
                                                    • 78
                                                    • 79
                                                    • 80
                                                    • 81
                                                    • 82
                                                    • Следующая
                                                    Распечатать

                                                    Вместе с этим также ищут:

                                                    Продажа квартир в Красногорске Продажа однокомнатных квартир в Красногорске Продажа комнат в Красногорске Продажа гаражей в Красногорске Продажа вторички - квартиры в Красногорске Квартиры в новостройках в Красногорске

                                                    🏠 Как купить дом, коттедж в Красногорске на N1?

                                                    • ✔ В поисках объявления о продаже или покупке домов, коттеджей в Красногорске?
                                                    • ✔ На N1 размещены 5,36 тыс домов, коттеджей
                                                    • ✔ Чтобы купить или продать недвижимость, воспользуйтесь формой поиска, фильтрами или быстрыми ссылками.

                                                    💸 Сколько стоит дом, коттедж в Красногорске?

                                                    • 🟢 Средняя цена продажи домов, коттеджей - 162,64 млн ₽
                                                    • 🟢 Минимальная стоимость за 1 м2: 270,43 тыс ₽

                                                    📚 Какая площадь домов, коттеджей?

                                                    • Наибольшая площадь: 3,47 тыс м²
                                                    • Минимальная площадь: 20 м²