Дом, 40 лет Октября, 12 Показать на карте
Нахабино
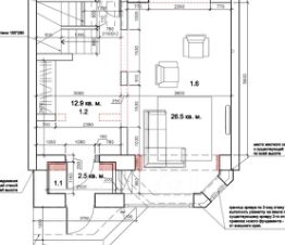
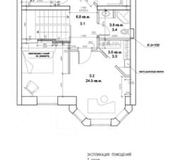
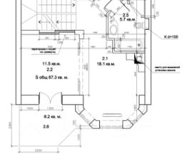
Дом в поселке Нахабино предлагает комфортное проживание в экологически чистом районе с развитой инфраструктурой. На первом этаже расположены просторная гостиная (34,4 м²), спальня (10,4 м²), прихожая (9,1 м²), холл (16,5 м²), санузел с душевой кабиной (7,8 м²) и бойлерная (6,7 м²).Второй этаж включает три спальни (25,5 м², 24,9 м² и 14,5 м²), холл (13,1 м²), санузел (8,8 м²) и балкон (7,8 м²).Мансардный этаж (76 м²) подготовлен под чистовую отделку, что позволяет создать дополнительное жилое пространство по индивидуальному проекту. Дом построен из теплосберегающих керамических блоков Porotherm с облицовкой баварской кирпичной кладкой, что обеспечивает высокую энергоэффективность. Плитный фундамент гарантирует устойчивость конструкции. Коммуникации центральные: водоснабжение, газ, канализация. Отопление осуществляется газовым котлом, на первом этаже установлен теплый пол. Окна Rehau, домофон с видеосвязью и ворота с пультовым управлением повышают уровень безопасности и комфорта. Вся мебель новая и подобрана с учетом функциональности и эстетики. Участок полностью благоустроен: завезен чернозем, территория выровнена. На участке расположен гараж площадью 40 м². Инфраструктура поселка включает детские сады, школу, магазины, салоны красоты, фитнес-клуб и ресторанный комплекс ''Берендей'' в шаговой доступности. В семи минутах ходьбы начинается хвойный лес, что делает локацию привлекательной для любителей природы. Транспортная доступность на высоком уровне: в пешей доступности автобусная остановка с маршрутами до станций Нахабино (МЦД-2), Тушинская, Павшино, а также города Истра. Объект полностью оформлен в собственность, один владелец. Дом готов к проживанию и сочетает в себе современные технологии, продуманную планировку и выгодное расположение.ПОМОЩЬ В ОДОБРЕНИИ ИПОТЕКИ с привлекательной ставкой. Для Клиентов Этажи - юридическое сопровождение сделки. Безопасные расчёты и финансовая гарантия до 25 000 000 рублейНе откладывайте на потом!Звоните прямо сейчас, и я с удовольствием:Отвечу на все ваши вопросыОрганизую просмотр в удобное для вас времяПомогу воплотить мечту о собственном жилье в реальностьВаш идеальный дом ждёт вас! Код пользователя: 182505Номер в базе: 7757902
181 м2
2 этажа
Кирпич
- Показать контакты
- Добавить в избранное
181 м2
2 этажа
Кирпич
39 890 000
220 265 /м2
