Дом, Центральная, 3 Показать на карте
Глухово
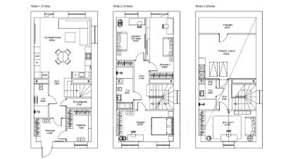
В одном из лучших мест Ближнего Подмосковья на благоустроенном участке с красивым ландшафтом за цену 3 комнатной квартиры в Москве продается уютный двухэтажный дом с отдельным гаражом на 3 машины и гостевыми спальнями на 2 этаже. Также на участке есть небольшая, но очень красивая баня, маленький погреб и беседка с барбекю. Дом находится на 2-ой линия Ильинского шоссе на маленькой улице без оживленного движения. С участка есть собственный выход к небольшому пруду.В 5 минутах ходьбы (через дорогу) начинается природный заповедник, где вы сможете кататься на велосипеде, гулять и купаться в Москва - реке. В 5 минутах езды находится усадьба Архангельское с летними джаз-концертами и насыщенной культурной программой.Магазины есть и в шаговой доступности, ну, а в 10 -15 минут на машине их десятки, впрочем, как и десятки ресторанов. Рядом теннисный центр, школы и фитнес-зал, и прочие блага цивилизации. Если нужен суровый шопинг, то в 15 минутах езды Барвиха и аутлет на Новой риге. Удобный выезд в Москву через Новорижское и Рублево-Успенское шоссе.Сам дом построен 25 лет назад. Он двухэтажный 254 метра. В доме газовое отопление, скважина на 60 метров и септик. Отопление первого этажа теплым полом без батарей. А на уличной террасе (с бокалом вина или чашкой чая) вы сможете проводить время до поздней осени, ведь всегда можно включить теплый электрический пол и на улице, если конечно не жалко денег. Сам дом двухэтажный. На 2 этаже находятся две большие мастер-спальни с собственными санузлами. На первом этаже огромная гостиная с аутентичными диванами и камином, а также большая кухня -столовая и санузел. Для хозяйки дома есть отдельная гардеробная комната, также на первом этаже большая бильярдная комната и огромная библиотека с уютными диванами (обе эти комнаты при необходимости, можно с легкостью переделать в спальни). На 1 этаже также техническая комната с газовом котлом и системой очистки воды.Для тех, кто понимает фундамент плита, стены пеноблок с утеплением, крыша из натуральной черепицы и металлопластиковые трубы. В общем дом строили для себя и не экономили. Гараж находится внутри участка за воротами. Перед ним гостевая стоянка. Сам гараж на 3 машины и есть отдельная мастерская -хозблок. На 2 этаже гаража (вход по наружной лестнице) отдельная квартира с двумя спальнями (или для охраны или для гостей или любимых родственников. Также сюда можно отселить повзрослевших и шумных детей и поверьте, они будут счастливы). Баня небольшая, но очень стильная и уютная. С парилкой, санузлом и комнатой отдыха. На участке есть погреб, который конструировался, как домик для кошек, но кошки решили по-другому и по-прежнему жили в доме. Так что на ваш выбор это будет или снова погреб или домик для кошек и детей. На самом участке 2 милых прудика с водопадом, беседка с раковиной и барбекю. Чуть не забыла -в доме есть интернет, домофон, пульт охраны и даже городской телефон, ворота въездные и гаражные электрические. В качестве бонуса - все что есть в доме остается.
255 м2
2 этажа
- Показать контакты
- Добавить в избранное
255 м2
2 этажа
54 300 000
212 941 /м2
