Дом, Поздняково Показать на карте
Поздняково
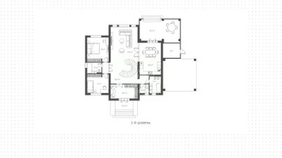
Лот 39284.Новый современный дом 1015 кв.м ''под ключ'' с мебелью, расположенный в тихой части поселка рядом с центральным озером и прогулочной зоной. Планировка коттеджа включает в себя: 6 спален со своими ванными комнатами и гардеробными, гостиную, столовую с выходом на крытую террасу, зону СПА с бассейном, тренажерный зал, кабинет, чистовую и рабочую кухни, и т.д. На участке располагается отдельно стоящий дом 130 кв.м с зоной отдыха и барбекю, дровяной русской баней, гостевой квартирой. Отделка дома выполнялась из высококачественных современных материалов, инженерные системы включают в себя: приточно-вытяжную вентиляцию с увлажнением и системой кондиционирования воздуха, электро приводы штор, мультирум и Wi-Fi, в доме установлены деревянные стеклопакеты, отделка фасада из натурального камня и лиственницы.1 этаж: гараж - 2шт., холл, санузел - 2шт., гостиная, кухня, столовая, рабочая кухня, спальня с санузлом, гардеробная, тренажерный зал, бассейн, сауна, терраса2 этаж: холл, мастер - спальня с санузлом и гардеробной, спальня с гардеробной и санузлом - 4шт., постирочнаяЦоколь: котельная, техническое помещение, кладовая - 2шт.Коттеджный поселок ''Никольская Слобода'' расположен на обширной подмосковной территории в 100 га в окружении заповедного Опалиховского лесопарка. Застройка проводится в три очереди, что позволяет приобрести не только готовые дома, но и земельные участки под строительство коттеджа. Коттеджный поселок ''Никольская Слобода'' огорожен и круглосуточно охраняется ведомственными службами. В поселке предусмотрена трехуровневая система охраны. Допуск на территорию осуществляется через контрольно-пропускной пункт. Все зоны отдыха оборудованы видеонаблюдением для безопасности жителей. Контроль за состоянием дорог, инженерных сетей и общественных территорий находится в ведении службы эксплуатации.
1015 м2
2 этажа
Кирпич
- Показать контакты
- Добавить в избранное
1015 м2
2 этажа
Кирпич
730 000 000
719 212 /м2
