Дом, Тимошкино Показать на карте
Тимошкино
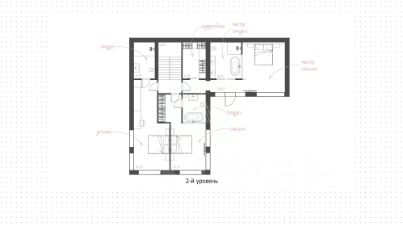
МО г. Красногорск, деревня Тимошкино, 2 5км от МКАД. Продается двухэтажный дом 190 м2 из пеноблоков на участке 11 соток. Статус индивидуальное жилищное строительство. Фундамент монолитная плита. Дом под чистовую отделку. Первый этаж -потолки 2.8м, гостиная 15м2, кухня-столовая 22.м2, один санузел. Второй этаж потолки -3м, мастер-спальня 18м2, комнаты 23, 19 м2, два санузла. Кровля надежная - металлочерепица. Вода скважина 109 метров, канализация - септик. Электричество 15кВт. Отопление электрический котел. Участок прямоугольной формы 25Х50 метров, выровнен, очищен от растительности. Межевание участка проведено. На участке мачта с интернетом, освещением и камерами видеонаблюдения. По программе догазификации бесплатно подведут трубу до границы участка. Тихое и уютное место. До реки Истра 1км. По соседству дома с круглогодичным проживанием. В начале улицы установлены ворота. Открываются ворота автоматически с телефона. Поблизости несколько школ, садов, магазины Пятерочка, Глобус, Рига Молл, фермерский магазин, рыбный магазин, рестораны, спортивные клубы, салон красоты, больницы, ветклиника, аптека. Вся инфраструктура в 5-10 минутах езды на машине, недалеко остановка общественного транспорта. Два съезда на Новорижское и Ильинское шоссе. Открытие станции метро Ильинская в 2025году.
190 м2
2 этажа
- Показать контакты
- Добавить в избранное
190 м2
2 этажа
19 000 000
100 000 /м2
