2-к, Спасская, 1 корп. 1 Показать на карте
Красногорск
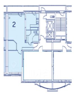
Продается уютная 2-комнатная квартира в Красногорске на Спасской улице, дом 1к1. Общая площадь квартиры составляет 66.3 кв. м, жилая площадь — 38.6 кв. м, а кухня — 9.2 кв. м. Квартира расположена на 22-м этаже 23-этажного монолитного дома, построенного в 2015 году. Из окон открывается вид на улицу и во двор.В квартире выполнен современный евроремонт, что создает атмосферу уюта и комфорта. Просторные комнаты и кухня позволяют удобно обустроить пространство. Кухня оборудована догогой техникой NEFF. В квартире есть две лоджии и один раздельный санузел, что делает ее удобной для проживания нескольких человек. Просторная гардеробная комната. Все необходимые коммуникации и системы жизнеобеспечения в отличном состоянии. Перепланировка узаконена. Дом оборудован двумя пассажирскими и одним грузовым лифтами, поэтому подъем на ваш этаж будет быстрым и удобным. Для автомобилей предусмотрена наземная парковка. Дом имеет пандус, что делает его доступным для всех категорий жителей.Район обладает развитой инфраструктурой: рядом расположены школы, детские сады и магазины. До станции метро Пенягино всего 13 минут пешком, что позволяет быстро добраться до центра Москвы и других районов. Отличная транспортная доступность — еще одно преимущество этого предложения.Квартира в ипотеке Альфа-банка, просрочек по платежам нет, в остальном без обременений. Возможна продажа в ипотеку. Все юридические аспекты сделки будут оформлены быстро и профессионально.Оперативный показ.
66 м2
22 / 23 этаж
Монолит
- Показать контакты
- Добавить в избранное
66 м2
22 / 23 этаж
Монолит
19 500 000
294 118 /м2
