1-к, Подмосковный бульвар, 6 Показать на карте
Красногорск
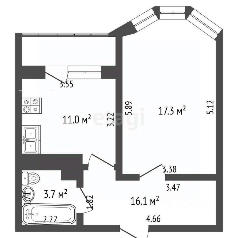
За объект уже внесли авансЗА КВАРТИРУ ВНЕСЕН АВАНС! Продаётся уютная однокомнатная квартира общей площадью 37.9 квадратных метров на последнем, семнадцатом этаже современного семнадцатиэтажного дома, построенного в 2007 году. Дом расположен в живописном районе города Красногорска, по адресу Павшинская пойма микрорайон, Подмосковный бульвар, дом 6. Здесь вы найдёте всё необходимое для комфортной жизни: рядом расположены школа, детский сад и торговый центр. Для малышей во дворе оборудована детская площадка. А любителей активного отдыха порадует близость зелёной зоны. Квартира имеет жилую площадь 18 квадратных метров и кухню площадью 8.5 квадратных метров. Есть балкон, который можно обустроить под зону отдыха или рабочий кабинет. Санузел совмещённый. Отсутствие ремонта предоставляет вам уникальную возможность воплотить все свои дизайнерские идеи и создать интерьер своей мечты. Расположение квартиры также является её преимуществом: до ближайших станций метро Пенягино и Мякинино всего несколько минут пешком, а до станции Волоколамская можно добраться за полчаса. Это идеальный вариант как для тех, кто предпочитает вести активный городской образ жизни, так и для тех, кто ценит тишину и спокойствие пригородной жизни. Приглашаю вас ознакомиться с этой замечательной квартирой лично и убедиться во всех её преимуществах.
38 м2
17 / 17 этаж
Панель
- Показать контакты
- Добавить в избранное
38 м2
17 / 17 этаж
Панель
8 600 000
226 316 /м2
