2-к, Тетрис ЖК, 6 Показать на карте
Красногорск
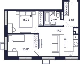
Продаётся 2-комнатная квартира в строящемся доме (Корпус 6), срок сдачи: II-кв. 2026, общей площадью 49.98 кв.м., на 8 этаже. Многофункциональный комплекс ''Тетрис'' будет построен в Красногорске - районном центре МО в Железнодорожном переулке.От ЖК до МКАД - примерно 2,7 км по Волоколамскому шоссе, до которого от комплекса менее 100 м.Ближе всего к ЖК находятся станции метро ''Мякинино'' (2,6 км), ''Волоколамская'' (3 км) ''Митино'' (3,3 км), чуть дальше - ''Пятницкое шоссе'', ''Строгино'', ''Спартак'' и ''Тушинская''.Всего 200 м от ЖК расположена железнодорожная платформа Павшино, от которой полчаса на электричке до Рижского вокзала (метро ''Рижская''), а до платформы Тушино (метро ''Тушинская'') - 10 минут. Около платформы Павшино есть и автовокзал.Так что добираться от комплекса до центра Москвы будет достаточно просто.
49 м2
8 / 28 этаж
Кирпич - монолит
- Показать контакты
- Добавить в избранное
49 м2
8 / 28 этаж
Кирпич - монолит
15 118 800
302 497 /м2
