3-к, Квартал Строгино ЖК, 2 Показать на карте
Красногорск
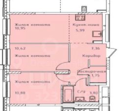
Продаётся 3-комнатная квартира в строящемся доме (Корпус 2), срок сдачи: II-кв. 2026, общей площадью 76.06 кв.м., на 22 этаже. Новый современный жилой комплекс на северо-западе Москвы. Рядом с проектом благоустроенная набережная Живописной бухты, парк Липовая Роща и Строгинский затон. До станций метро ''Строгино'' и ''Мякинино'' можно добраться за 10 минут на автомобиле. На территории будет вся необходимая инфраструктура для комфортного проживания: коммерческие помещения на первых этажах, собственные детские сады и школа, спортивные и детские площадки с продуманным озеленением, зоны тихого отдыха, пешеходный бульвар и велодорожки. Можно не беспокоиться за безопасность детей - дворы закрыты от машин, на территорию может заехать только спецтранспорт. Празднуйте новоселье сразу после получения ключей - все квартиры сдаются с готовой отделкой!
76 м2
22 / 24 этаж
Кирпич - монолит
- Показать контакты
- Добавить в избранное
76 м2
22 / 24 этаж
Кирпич - монолит
25 143 430
330 053 /м2
Новостройка,
II-2026
II-2026
