logo
N1.RU — новая улучшенная версия Е1.Недвижимость
Чтобы вернуться на старый сайт Е1.Недвижимость, перейдите по ссылке в нижней части сайта N1.RU
  • Продажа
  • Аренда
  • Новостройки
  • Журнал
  • Компании
  • Шаблоны документов
  • Налоговый вычет
  • Еще
  • Личный кабинет
    • Регистрация на Циан
    • Красногорск
  • Добавить объявление
Тип недвижимости
Красногорск
Начните вводить или выберите объект в выпадающем списке
Количество комнат
Цена
  1. Недвижимость в Красногорске
  2. Продажа
  3. Квартиры
  4. Новостройки
  5. 3-комнатные
  6. 1173 объявления

Продажа трехкомнатных квартир в Красногорске

За все время
Сортировка по умолчанию
СпискомСписком
ТаблицейТаблицей
На картеНа карте
Открыть поиск по карте

По вашему запросу объявлений не найдено

1/23
3-к, Квартал Строгино ЖК, 2 Показать на карте
Красногорск
Продаётся 3-комнатная квартира в строящемся доме (Корпус 2), срок сдачи: II-кв. 2026, общей площадью 76.04 кв.м., на 22 этаже. Новый современный жилой комплекс на северо-западе Москвы. Рядом с проектом благоустроенная набережная Живописной бухты, парк Липовая Роща и Строгинский затон. До станций метро ''Строгино'' и ''Мякинино'' можно добраться за 10 минут на автомобиле. На территории будет вся необходимая инфраструктура для комфортного проживания: коммерческие помещения на первых этажах, собственные детские сады и школа, спортивные и детские площадки с продуманным озеленением, зоны тихого отдыха, пешеходный бульвар и велодорожки. Можно не беспокоиться за безопасность детей - дворы закрыты от машин, на территорию может заехать только спецтранспорт. Празднуйте новоселье сразу после получения ключей - все квартиры сдаются с готовой отделкой!
76 м2
22 / 24 этаж
Кирпич - монолит
  • Показать контакты
  • Добавить в избранное
76 м2
22 / 24 этаж
Кирпич - монолит
20 545 799 
270 197 /м2
Новостройка,
II-2026
    1/9
    3-к, Ильинойс ЖК, 1 Показать на карте
    Красногорск
    Продаётся 3-комнатная квартира в строящемся доме (Дом 1), срок сдачи: IV-кв. 2024, общей площадью 58.23 кв.м., на 17 этаже. ЖК ''Ильинойс'' будет построен поблизости от пересечения Новорижского и Ильинского шоссе, в одном из самых престижных мест Подмосковья. Проект предусматривает строительство монолитных жилых корпусов общей площадью 190 тыс. кв. м, подземных автостоянок, а также двух детских садов в общей сложности на 450 мест. Поблизости от ЖК планируется открытие станций метро Рублево-Архангельской ветки, строительство которой планируется начать до конца 2021 года. Жилой комплекс обладает прекрасной транспортной доступностью: в 20 мин. ходьбы расположена станция МЦД-2 ''Красногорская''. В пешей доступности находится остановка автобуса, на котором можно за 15 мин. добраться до метро Тушинская, Строгино или Мякинино. На автомобиле до МКАД можно доехать всего за 5 мин.
    58 м2
    17 / 24 этаж
    Кирпич - монолит
    • Показать контакты
    • Добавить в избранное
    58 м2
    17 / 24 этаж
    Кирпич - монолит
    13 223 372 
    227 089 /м2
    Новостройка,
    дом сдан
      1/23
      3-к, Квартал Строгино ЖК, 2 Показать на карте
      Красногорск
      Продаётся 3-комнатная квартира в строящемся доме (Корпус 2), срок сдачи: II-кв. 2026, общей площадью 76.06 кв.м., на 20 этаже. Новый современный жилой комплекс на северо-западе Москвы. Рядом с проектом благоустроенная набережная Живописной бухты, парк Липовая Роща и Строгинский затон. До станций метро ''Строгино'' и ''Мякинино'' можно добраться за 10 минут на автомобиле. На территории будет вся необходимая инфраструктура для комфортного проживания: коммерческие помещения на первых этажах, собственные детские сады и школа, спортивные и детские площадки с продуманным озеленением, зоны тихого отдыха, пешеходный бульвар и велодорожки. Можно не беспокоиться за безопасность детей - дворы закрыты от машин, на территорию может заехать только спецтранспорт. Празднуйте новоселье сразу после получения ключей - все квартиры сдаются с готовой отделкой!
      76 м2
      20 / 24 этаж
      Кирпич - монолит
      • Показать контакты
      • Добавить в избранное
      76 м2
      20 / 24 этаж
      Кирпич - монолит
      28 322 259 
      372 367 /м2
      Новостройка,
      II-2026
        1/23
        3-к, Квартал Строгино ЖК, 2 Показать на карте
        Красногорск
        Продаётся 3-комнатная квартира в строящемся доме (Корпус 2), срок сдачи: II-кв. 2026, общей площадью 70.01 кв.м., на 23 этаже. Новый современный жилой комплекс на северо-западе Москвы. Рядом с проектом благоустроенная набережная Живописной бухты, парк Липовая Роща и Строгинский затон. До станций метро ''Строгино'' и ''Мякинино'' можно добраться за 10 минут на автомобиле. На территории будет вся необходимая инфраструктура для комфортного проживания: коммерческие помещения на первых этажах, собственные детские сады и школа, спортивные и детские площадки с продуманным озеленением, зоны тихого отдыха, пешеходный бульвар и велодорожки. Можно не беспокоиться за безопасность детей - дворы закрыты от машин, на территорию может заехать только спецтранспорт. Празднуйте новоселье сразу после получения ключей - все квартиры сдаются с готовой отделкой!
        70 м2
        23 / 24 этаж
        Кирпич - монолит
        • Показать контакты
        • Добавить в избранное
        70 м2
        23 / 24 этаж
        Кирпич - монолит
        22 674 181 
        323 871 /м2
        Новостройка,
        II-2026
          1/10
          3-к, Квартал Строгино ЖК, 2 Показать на карте
          Красногорск
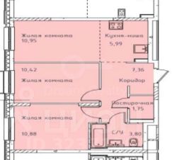
          ID 7874. Квартира с отделкой и панорамным видом на бухту в строящемся комплексе Квартал Строгино. Функциональная планировка: кухня-гостиная 17 кв.м и две изолированные комнаты 10,88 и 10,42 кв.м. На территории Квартала Строгино запланировано размещение всей необходимой инфраструктуры для комфортного проживания: детские сады, школа, спортивные и детские площадки с продуманным озеленением, зоны тихого отдыха, пешеходный бульвар и велодорожки. В доме предусмотрен подземный паркинг.Ближайшая станция метро - Строгино. Кроме того, в 2027 году планируется открытие станции Липовая Роща Рублёво-Архангельской линии, до которой от Квартала Строгино можно будет дойти всего за 15 минут.В окружении множество магазинов и торговых центров (Ашан, Леруа Мерлен, Vegas, Крокус Сити Холл, Крокус Экспо), объектов деловой инфраструктуры (Московская областная дума, Правительство МО, Областной суд, офисные центры). Рядом есть множество мест для прогулок: благоустроенная набережная Живописной бухты, парк Липовая Роща и Строгинский затон.Заселение до 31.01.2026 года.
          51 м2
          9 / 24 этаж
          Монолит
          • Показать контакты
          • Добавить в избранное
          51 м2
          9 / 24 этаж
          Монолит
          16 000 000 
          312 805 /м2
          Новостройка,
          II-2026
            1/21
            3-к, Квартал Строгино ЖК, 2 Показать на карте
            Красногорск
            Предлагается 3-комнатная квартира комфорт-класса 76,17 кв.м в корпусе 2 на 10 этаже, в ЖК ''Квартал Строгино''Квартира без отделки. Доступность опции ''отделка'' и возможность комплектации мебелью и декором уточняйте у застройщика.Приобрести квартиру возможно по специальным акциям от застройщика, с текущими условиями акций можно ознакомиться в блоке ''Акций''.Цена динамическая и может отличаться, уточняйте актуальность у застройщика.В жилом комплексе ''Квартал Строгино'' вас ждет широкий выбор досуга. Рядом МКАД и выезд на Новорижское шоссе и станции метро ''Строгино'' и ''Мякинино''. В пешей доступности — Живописная бухта, можно доехать до ''Липовой Рощи'' и ''Серебряного бора''. На территории комплекса будут 2 детских сада, школа и поликлиника. Двор-парк с площадками, велодорожками и паркингами. В лобби есть помещения для колясок. Квартиры с готовой отделкой и видом на бухту.
            76 м2
            10 / 24 этаж
            Монолит
            • Показать контакты
            • Добавить в избранное
            76 м2
            10 / 24 этаж
            Монолит
            22 690 814 
            297 897 /м2
            Новостройка,
            II-2026
              1/21
              3-к, Квартал Строгино ЖК, 2 Показать на карте
              Красногорск
              Предлагается 3-комнатная квартира комфорт-класса 76,17 кв.м в корпусе 2 на 22 этаже, в ЖК ''Квартал Строгино''Квартира без отделки. Доступность опции ''отделка'' и возможность комплектации мебелью и декором уточняйте у застройщика.Приобрести квартиру возможно по специальным акциям от застройщика, с текущими условиями акций можно ознакомиться в блоке ''Акций''.Цена динамическая и может отличаться, уточняйте актуальность у застройщика.В жилом комплексе ''Квартал Строгино'' вас ждет широкий выбор досуга. Рядом МКАД и выезд на Новорижское шоссе и станции метро ''Строгино'' и ''Мякинино''. В пешей доступности — Живописная бухта, можно доехать до ''Липовой Рощи'' и ''Серебряного бора''. На территории комплекса будут 2 детских сада, школа и поликлиника. Двор-парк с площадками, велодорожками и паркингами. В лобби есть помещения для колясок. Квартиры с готовой отделкой и видом на бухту.
              76 м2
              22 / 24 этаж
              Монолит
              • Показать контакты
              • Добавить в избранное
              76 м2
              22 / 24 этаж
              Монолит
              23 163 678 
              304 105 /м2
              Новостройка,
              II-2026
                1/14
                3-к, Александровская, 4 Показать на карте
                Красногорск
                Код объекта: 1390213. Самое выгодное предложение в данном ЖК. Предлагается просторная трехкомнатная квартира в новом монолитном доме на Александровской улице, Красногорск, кухня гостиная 18,77 кв.м., изолированные комнаты 11,33 кв.м. и 11 кв.м. Возможный вариант оплаты 9,0 млн.руб., остаток суммы беспроцентная рассрочка на 1 год. Наши преимущества:1. Основание собственности договор долевого участия.2. Полная сумма в договоре купли-продажи.3. Одно из лучших ценовых предложений.Мы гарантируем безопасную сделку и юридическую поддержку нашим Клиентам. Поможем одобрить ипотеку с сниженной ставкой. Позвоните нам прямо сейчас! Трейд-ин, обмен (продажа Вашей недвижимости). В наличии машино-место в паркинге продается отдельно - возможна беспроцентная рассрочка платежа.
                55 м2
                3 / 24 этаж
                Монолит
                • Показать контакты
                • Добавить в избранное
                55 м2
                3 / 24 этаж
                Монолит
                9 999 909 
                181 817 /м2
                Новостройка,
                дом сдан
                  1/12
                  3-к, Спутник ЖК, 19 Показать на карте
                  Красногорск
                  Код объекта: 1722614. По квартире внесен задаток до 31.10. Вашему вниманию предлагается апартамент в чистовой отделке с шикарным видом на Живописную бухту в лучшем корпусе ЖК бизнес-класса ''Sky Sputnik''! АПАРТАМЕНТ РЕАЛЬНЫЙ, НЕ ФЕЙК!!! На фото представлен дизайн проект.Лучшая цена в ЖК! Аналогов квартире просто нет!Звоните! Текстильное оформление окон в подарок! О КВАРТИРЕ:- Апартамент с полной отделкой, остается только поставить мебель,- Просторная кухня - гостиная, 3 спальни, 2 санузла, прачечная, 3 лоджии и гардеробная комната, - Апартамент на 22 этаже из 30,- Высота потолков 2,87 м,- Шикарный прямой вид с 22 этажа на Живописную бухту!ПРЕИМУЩЕСТВА: - Ближайший корпус ко всем прогулочным зонам с лучшими видовыми характеристиками - Отдельный въезд в паркинг и расположение корпуса позволяют максимально комфортно и быстро выехать с территории жилого комплекса.- Дом монолитный железобетонный,- Коммерческая инфраструктура и офисы на первыхэтажах, а также собственный центр торговли и бизнеса,- Благоустроенная территория с зонами для работы иотдыха, прогулочными аллеями и амфитеатром,- Приватный двор с детскими испортивными площадками,- Многоуровневый подземный паркинг,- Общественный центр,- Дизайнерские входные группы с просторной зонойожидания и стойкой ресепшен,ТРАНСПОРТНАЯ ДОСТУПНОСТЬ:В квартале Sky Sputnik вы будете жить на северо-западе столицы, откуда легко добраться в центр на работу или за город с друзьями: - Автобусная остановка в 2-х минутах от дома, до метро Мякинино и Строгино можно добраться на автобусе за 20 минут,- К 2027 году откроется метро ''Липовая Роща'' — в 5 минутах ходьбы от квартала. Станция будет находиться на Рублево-Архангельской линии, которая начинается от Москвы-Сити.- До МКАДа — 200 метров, есть удобные выезды на Новорижское и Мякининское шоссе.ИНФРАСТРУКТУРА: В Sky Sputnik можно не спеша провожать ребенка в детский сад или в школу. До места вы доберетесь за несколько минут — на территории квартала открыты школа на 825 мест, три детских сада, медицинский центр и фитнес-центр со спа-салоном.- Свидание с природой можно устроить и в ''Серебряном Бору'', до него — всего 15 минут на авто. - 10 минут — займет дорога до Строгинского затона. Здесь можно покататься на катамаране, прикоснуться к парусному спорту или просто посидеть на деревянных настилах и полюбоваться видом на воду.- Всего в 50 метров от дома - Живописная бухта с благоустроенной набережной и пляжем. Можно прямо со стаканом утреннего кофе выходить на причал и наполняться энергией на весь день. Мягкий песок так и манит снять обувь и пройтись босиком, а в жаркую погоду приходите сюда купаться, плавать на сапборде или осваивать вейксерфинг. ДОКУМЕНТЫ:Один взрослый собственник, ипотека приветствуется, стремительный выход на сделку!
                  81 м2
                  22 / 30 этаж
                  Кирпич - монолит
                  • Показать контакты
                  • Добавить в избранное
                  81 м2
                  22 / 30 этаж
                  Кирпич - монолит
                  17 800 000 
                  219 753 /м2
                  Новостройка,
                  IV-2026
                    1/6
                    3-к, Александровская, 4 Показать на карте
                    Красногорск
                    Продается просторная трехкомнатная квартира в жилом комплексе ''Ильинойс'' в Красногорске. Общая площадь квартиры составляет 60 кв. м, расположена она на 8 этаже 25-этажного дома. Высокие потолки в 3 метра добавляют ощущение простора и света. Квартира без ремонта, что дает отличную возможность сделать все по своему вкусу и создать идеальное пространство для жизни. Планировка квартиры включает в себя просторную кухню площадью 12 кв. м, один совмещенный и один отдельный санузел. Из окон открывается вид как на улицу, так и во двор, что обеспечивает хорошую инсоляцию и позволяет наслаждаться видом в любое время дня. Дом оснащен двумя пассажирскими и одним грузовым лифтами, что делает передвижение удобным и быстрым. Для автовладельцев предусмотрена подземная парковка, поэтому можно не беспокоиться о сохранности автомобиля. Вход в подъезд оборудован пандусом, что делает его доступным для людей с ограниченными возможностями и родителей с колясками. Район отличается развитой инфраструктурой. В пешей доступности находятся школы, детские сады, клиники и магазины, что делает его удобным для проживания семей с детьми. До станции метро ''Красногорская'' можно дойти за 22 минуты, что позволяет легко добираться до центра Москвы.Квартира продается по договору купли-продажи, возможна покупка в ипотеку. Все документы в порядке, , что гарантирует чистоту сделки. Приглашаем вас на просмотр этой замечательной квартиры! Записывайтесь, чтобы лично оценить все преимущества и сделать правильный выбор для вашего будущего дома.
                    60 м2
                    8 / 25 этаж
                    • Показать контакты
                    • Добавить в избранное
                    60 м2
                    8 / 25 этаж
                    14 500 000 
                    241 667 /м2
                    Новостройка,
                    дом сдан
                      1/20
                      3-к, Квартал Строгино ЖК, 2 Показать на карте
                      Красногорск
                      Переуступка! Ключи до 30.12.26г! Цена ИНТЕРЕСНЕЕ, чем у застройщика! 3-х комнатная квартира- распашонка С ПОЛНОЙ ОТДЕЛКОЙ И МЕБЛИРОВКОЙ!В ДДУ входят: кухня Мария с техникой, сеты мягкой мебели и шкафы в гостиную и ванные комнаты, кондиционирование. Вам останется только разложить вещи! ПЛАНИРОВКА:- Просторная кухня-гостиная 16.9 кв.м.,- при входе функциональный угол-ниша для прихожей, где грязная зона отделена от жилой, - 3 изолированные комнаты 15.5+12.5+12.5,- 2 раздельных санузла,- распашная планировка, 3 окна на Запад в сторону поймы и Красногорска, одно - на Восток в сторону Строгино. ТРАНСПОРТНАЯ ДОСТУПНОСТЬ:До метро Строгино пешком 20 мин, м. Мякинино 15 мин, удобные выезды на МКАД, Волоколамское шоссе. Совсем СКОРО открытие метро ЛИПОВАЯ РОЩА в 5 мин - и локация еще подорожает!!!ИНФРАСТРУКТУРА:Рядом АШАН, Леруа, Вегас, Крокус, шикарные прогулочные и развлекательные зоны.ДОКУМЕНТЫ:1 взрослый, показываем ПОЛНУЮ стоимость в договоре, все справки предоставим! С огромным удовольствием расскажем про этот район, локацию и перспективы развития!! P.S. До 15.10 лучше писать сообщения. Если все-таки вы хотите позвонить и 1й тел недоступен, звоните на 2й номер, указанный в объявлении.
                      76 м2
                      19 / 24 этаж
                      • Показать контакты
                      • Добавить в избранное
                      76 м2
                      19 / 24 этаж
                      22 700 000 
                      298 292 /м2
                      Новостройка,
                      II-2026
                        1/34
                        3-к, Липовой Рощи, 6 корп. 1 Показать на карте
                        Красногорск
                        Предлагаем просторные апартаменты в современном, высотном доме в ЖК Спутник. Красивый вид из окон на Живописную бухту и Липовую рощу! Презентабельная входная группа, скоростные лифты, подземный паркинг, круглосуточная охрана. Отличная планировка: три изолированные комнаты (17,2-14,1-11,8) и большая кухня- 16 кв. м., ДВА санузла. Из окон кухни и одной спальни открывается с высоты прекрасный вид на Строгинский затон. В спальне 11,8 имеется балконСделан Высококачественный ремонт из дорогих материалов. На территории комплекса 2 государственных детских сада, скоро открытие образовательного центра. На первых этажах корпусов открыты магазины, салоны красоты, кафе и пекарни. В самом жилом комплексе есть все, что нужно для жизни: спортивные и детские площадки, кафе, магазины, кофейни, аптеки, салоны красоты, мед учреждения. Уже ведется строительство еще детских садиков и школы. В 5 минутах пешком парк Липовая Роща, с игровыми площадками, прогулочной зоной, красивыми пешеходными дорожками, качелями отличное место как для одиночных прогулок, так и для семейного отдыха. В скором времени открытие станции метро Липовая роща в пяти минутах пешего хода от жилого комплекса. Удобная транспортная доступность. Выезд на МКАД находится в 5 минутах транспортом. До станций метро Мякинино и Строгино прямо из комплекса за 10 минут доставит автобус, либо можно прогуляться самим 25 минут спокойным шагом. Маршрутка также ходит до м. Щукинская 20мин. Для владельцев авто предусмотрен подземный паркинг. Через дорогу от дома находится благоустроенный песчаный пляж, для жильцов дома вход бесплатный. Свободная продажа. Торг уместен.
                        76 м2
                        30 / 33 этаж
                        Монолит
                        • Показать контакты
                        • Добавить в избранное
                        76 м2
                        30 / 33 этаж
                        Монолит
                        20 700 000 
                        272 368 /м2
                        Новостройка,
                        дом сдан
                          1/23
                          3-к, Квартал Строгино ЖК, 2 Показать на карте
                          Красногорск
                          Продаётся 3-комнатная квартира в строящемся доме (Корпус 2), срок сдачи: II-кв. 2026, общей площадью 76.04 кв.м., на 10 этаже. Новый современный жилой комплекс на северо-западе Москвы. Рядом с проектом благоустроенная набережная Живописной бухты, парк Липовая Роща и Строгинский затон. До станций метро ''Строгино'' и ''Мякинино'' можно добраться за 10 минут на автомобиле. На территории будет вся необходимая инфраструктура для комфортного проживания: коммерческие помещения на первых этажах, собственные детские сады и школа, спортивные и детские площадки с продуманным озеленением, зоны тихого отдыха, пешеходный бульвар и велодорожки. Можно не беспокоиться за безопасность детей - дворы закрыты от машин, на территорию может заехать только спецтранспорт. Празднуйте новоселье сразу после получения ключей - все квартиры сдаются с готовой отделкой!
                          76 м2
                          10 / 24 этаж
                          Кирпич - монолит
                          • Показать контакты
                          • Добавить в избранное
                          76 м2
                          10 / 24 этаж
                          Кирпич - монолит
                          22 627 906 
                          297 579 /м2
                          Новостройка,
                          II-2026
                            1/23
                            3-к, Квартал Строгино ЖК, 2 Показать на карте
                            Красногорск
                            Продаётся 3-комнатная квартира в строящемся доме (Корпус 2), срок сдачи: II-кв. 2026, общей площадью 76.06 кв.м., на 2 этаже. Новый современный жилой комплекс на северо-западе Москвы. Рядом с проектом благоустроенная набережная Живописной бухты, парк Липовая Роща и Строгинский затон. До станций метро ''Строгино'' и ''Мякинино'' можно добраться за 10 минут на автомобиле. На территории будет вся необходимая инфраструктура для комфортного проживания: коммерческие помещения на первых этажах, собственные детские сады и школа, спортивные и детские площадки с продуманным озеленением, зоны тихого отдыха, пешеходный бульвар и велодорожки. Можно не беспокоиться за безопасность детей - дворы закрыты от машин, на территорию может заехать только спецтранспорт. Празднуйте новоселье сразу после получения ключей - все квартиры сдаются с готовой отделкой!
                            76 м2
                            2 / 24 этаж
                            Кирпич - монолит
                            • Показать контакты
                            • Добавить в избранное
                            76 м2
                            2 / 24 этаж
                            Кирпич - монолит
                            15 951 380 
                            209 721 /м2
                            Новостройка,
                            II-2026
                              1/23
                              3-к, Квартал Строгино ЖК, 2 Показать на карте
                              Красногорск
                              Продаётся 3-комнатная квартира в строящемся доме (Корпус 2), срок сдачи: II-кв. 2026, общей площадью 76.06 кв.м., на 16 этаже. Новый современный жилой комплекс на северо-западе Москвы. Рядом с проектом благоустроенная набережная Живописной бухты, парк Липовая Роща и Строгинский затон. До станций метро ''Строгино'' и ''Мякинино'' можно добраться за 10 минут на автомобиле. На территории будет вся необходимая инфраструктура для комфортного проживания: коммерческие помещения на первых этажах, собственные детские сады и школа, спортивные и детские площадки с продуманным озеленением, зоны тихого отдыха, пешеходный бульвар и велодорожки. Можно не беспокоиться за безопасность детей - дворы закрыты от машин, на территорию может заехать только спецтранспорт. Празднуйте новоселье сразу после получения ключей - все квартиры сдаются с готовой отделкой!
                              76 м2
                              16 / 24 этаж
                              Кирпич - монолит
                              • Показать контакты
                              • Добавить в избранное
                              76 м2
                              16 / 24 этаж
                              Кирпич - монолит
                              22 722 721 
                              298 747 /м2
                              Новостройка,
                              II-2026
                                1/23
                                3-к, Квартал Строгино ЖК, 2 Показать на карте
                                Красногорск
                                Продаётся 3-комнатная квартира в строящемся доме (Корпус 2), срок сдачи: II-кв. 2026, общей площадью 76.06 кв.м., на 14 этаже. Новый современный жилой комплекс на северо-западе Москвы. Рядом с проектом благоустроенная набережная Живописной бухты, парк Липовая Роща и Строгинский затон. До станций метро ''Строгино'' и ''Мякинино'' можно добраться за 10 минут на автомобиле. На территории будет вся необходимая инфраструктура для комфортного проживания: коммерческие помещения на первых этажах, собственные детские сады и школа, спортивные и детские площадки с продуманным озеленением, зоны тихого отдыха, пешеходный бульвар и велодорожки. Можно не беспокоиться за безопасность детей - дворы закрыты от машин, на территорию может заехать только спецтранспорт. Празднуйте новоселье сразу после получения ключей - все квартиры сдаются с готовой отделкой!
                                76 м2
                                14 / 24 этаж
                                Кирпич - монолит
                                • Показать контакты
                                • Добавить в избранное
                                76 м2
                                14 / 24 этаж
                                Кирпич - монолит
                                19 545 975 
                                256 981 /м2
                                Новостройка,
                                II-2026
                                  1/23
                                  3-к, Квартал Строгино ЖК, 2 Показать на карте
                                  Красногорск
                                  Продаётся 3-комнатная квартира в строящемся доме (Корпус 2), срок сдачи: II-кв. 2026, общей площадью 76.06 кв.м., на 24 этаже. Новый современный жилой комплекс на северо-западе Москвы. Рядом с проектом благоустроенная набережная Живописной бухты, парк Липовая Роща и Строгинский затон. До станций метро ''Строгино'' и ''Мякинино'' можно добраться за 10 минут на автомобиле. На территории будет вся необходимая инфраструктура для комфортного проживания: коммерческие помещения на первых этажах, собственные детские сады и школа, спортивные и детские площадки с продуманным озеленением, зоны тихого отдыха, пешеходный бульвар и велодорожки. Можно не беспокоиться за безопасность детей - дворы закрыты от машин, на территорию может заехать только спецтранспорт. Празднуйте новоселье сразу после получения ключей - все квартиры сдаются с готовой отделкой!
                                  76 м2
                                  24 / 24 этаж
                                  Кирпич - монолит
                                  • Показать контакты
                                  • Добавить в избранное
                                  76 м2
                                  24 / 24 этаж
                                  Кирпич - монолит
                                  19 421 997 
                                  255 351 /м2
                                  Новостройка,
                                  II-2026
                                    1/23
                                    3-к, Квартал Строгино ЖК, 2 Показать на карте
                                    Красногорск
                                    Продаётся 3-комнатная квартира в строящемся доме (Корпус 2), срок сдачи: II-кв. 2026, общей площадью 76.06 кв.м., на 10 этаже. Новый современный жилой комплекс на северо-западе Москвы. Рядом с проектом благоустроенная набережная Живописной бухты, парк Липовая Роща и Строгинский затон. До станций метро ''Строгино'' и ''Мякинино'' можно добраться за 10 минут на автомобиле. На территории будет вся необходимая инфраструктура для комфортного проживания: коммерческие помещения на первых этажах, собственные детские сады и школа, спортивные и детские площадки с продуманным озеленением, зоны тихого отдыха, пешеходный бульвар и велодорожки. Можно не беспокоиться за безопасность детей - дворы закрыты от машин, на территорию может заехать только спецтранспорт. Празднуйте новоселье сразу после получения ключей - все квартиры сдаются с готовой отделкой!
                                    76 м2
                                    10 / 24 этаж
                                    Кирпич - монолит
                                    • Показать контакты
                                    • Добавить в избранное
                                    76 м2
                                    10 / 24 этаж
                                    Кирпич - монолит
                                    17 867 863 
                                    234 918 /м2
                                    Новостройка,
                                    II-2026
                                      1/25
                                      3-к, Молодежная, 6 Показать на карте
                                      Красногорск
                                      Продаётся 3-комнатная квартира в сданном доме (Корпус 2), срок сдачи: II-кв. 2025, общей площадью 79.64 кв.м., на 25 этаже. Живописные места, развитая инфраструктура в шаговой доступности, удобное транспортное сообщение в получасе езды от центра Москвы — те факторы, которые делают новый жилой дом М_5 в Красногорске особенным. На территории жилого дома М_5 все предусмотрено для отдыха и прогулок с семьей. В вашем распоряжении две спортивные площадки, баскетбольное поле и велопарковка. Продуманное освещение и зоны отдыха для взрослых создают уютную, расслабленную атмосферу. А комплексная программа озеленения превращает придомовое пространство в цветущий сад. Детская часть территории — место для веселых игр. Здесь есть 2 площадки с песочницами и качелями, батуты и даже канатный комплекс! В современном ЖК обязательно должен быть детский сад, однако М_5 предлагает нечто большее — город детства ''Сад-град''. Архитекторы продумали каждую деталь и создали по-настоящему красивое, безопасное и уютное пространство. Волшебный замок с башенками и игровыми зонами — все то, о чем мы сами мечтали, когда были маленькими! Пусть детство вашего ребенка будет сказочным и счастливым. Пространство детского сада ''Сад-град'' светлое и просторное, благодаря большим окнам. Здание построено с использованием самых современных и безопасных отделочных материалов, чтобы малышам в любую погоду было комфортно и уютно. Рядом с детским садом есть красивая детская площадка с горками, качелями и лестницами для игр и прогулок на свежем воздухе.
                                      79 м2
                                      25 / 25 этаж
                                      Монолит
                                      • Показать контакты
                                      • Добавить в избранное
                                      79 м2
                                      25 / 25 этаж
                                      Монолит
                                      21 810 400 
                                      274 000 /м2
                                      Новостройка,
                                      дом сдан
                                        1/22
                                        3-к, Квартал Строгино ЖК, 2 Показать на карте
                                        Красногорск
                                        Продаётся 3-комнатная квартира в строящемся доме (Корпус 2), срок сдачи: II-кв. 2026, общей площадью 70.01 кв.м., на 24 этаже. Новый современный жилой комплекс на северо-западе Москвы. Рядом с проектом благоустроенная набережная Живописной бухты, парк Липовая Роща и Строгинский затон. До станций метро ''Строгино'' и ''Мякинино'' можно добраться за 10 минут на автомобиле. На территории будет вся необходимая инфраструктура для комфортного проживания: коммерческие помещения на первых этажах, собственные детские сады и школа, спортивные и детские площадки с продуманным озеленением, зоны тихого отдыха, пешеходный бульвар и велодорожки. Можно не беспокоиться за безопасность детей - дворы закрыты от машин, на территорию может заехать только спецтранспорт. Празднуйте новоселье сразу после получения ключей - все квартиры сдаются с готовой отделкой!
                                        70 м2
                                        24 / 24 этаж
                                        Кирпич - монолит
                                        • Показать контакты
                                        • Добавить в избранное
                                        70 м2
                                        24 / 24 этаж
                                        Кирпич - монолит
                                        25 179 841 
                                        359 661 /м2
                                        Новостройка,
                                        II-2026
                                          1/23
                                          3-к, Квартал Строгино ЖК, 2 Показать на карте
                                          Красногорск
                                          Продаётся 3-комнатная квартира в строящемся доме (Корпус 2), срок сдачи: II-кв. 2026, общей площадью 76.06 кв.м., на 4 этаже. Новый современный жилой комплекс на северо-западе Москвы. Рядом с проектом благоустроенная набережная Живописной бухты, парк Липовая Роща и Строгинский затон. До станций метро ''Строгино'' и ''Мякинино'' можно добраться за 10 минут на автомобиле. На территории будет вся необходимая инфраструктура для комфортного проживания: коммерческие помещения на первых этажах, собственные детские сады и школа, спортивные и детские площадки с продуманным озеленением, зоны тихого отдыха, пешеходный бульвар и велодорожки. Можно не беспокоиться за безопасность детей - дворы закрыты от машин, на территорию может заехать только спецтранспорт. Празднуйте новоселье сразу после получения ключей - все квартиры сдаются с готовой отделкой!
                                          76 м2
                                          4 / 24 этаж
                                          Кирпич - монолит
                                          • Показать контакты
                                          • Добавить в избранное
                                          76 м2
                                          4 / 24 этаж
                                          Кирпич - монолит
                                          21 817 583 
                                          286 847 /м2
                                          Новостройка,
                                          II-2026
                                            1/23
                                            3-к, Квартал Строгино ЖК, 2 Показать на карте
                                            Красногорск
                                            Продаётся 3-комнатная квартира в строящемся доме (Корпус 2), срок сдачи: II-кв. 2026, общей площадью 76.06 кв.м., на 11 этаже. Новый современный жилой комплекс на северо-западе Москвы. Рядом с проектом благоустроенная набережная Живописной бухты, парк Липовая Роща и Строгинский затон. До станций метро ''Строгино'' и ''Мякинино'' можно добраться за 10 минут на автомобиле. На территории будет вся необходимая инфраструктура для комфортного проживания: коммерческие помещения на первых этажах, собственные детские сады и школа, спортивные и детские площадки с продуманным озеленением, зоны тихого отдыха, пешеходный бульвар и велодорожки. Можно не беспокоиться за безопасность детей - дворы закрыты от машин, на территорию может заехать только спецтранспорт. Празднуйте новоселье сразу после получения ключей - все квартиры сдаются с готовой отделкой!
                                            76 м2
                                            11 / 24 этаж
                                            Кирпич - монолит
                                            • Показать контакты
                                            • Добавить в избранное
                                            76 м2
                                            11 / 24 этаж
                                            Кирпич - монолит
                                            27 520 966 
                                            361 832 /м2
                                            Новостройка,
                                            II-2026
                                              1/23
                                              3-к, Квартал Строгино ЖК, 2 Показать на карте
                                              Красногорск
                                              Продаётся 3-комнатная квартира в строящемся доме (Корпус 2), срок сдачи: II-кв. 2026, общей площадью 76.06 кв.м., на 20 этаже. Новый современный жилой комплекс на северо-западе Москвы. Рядом с проектом благоустроенная набережная Живописной бухты, парк Липовая Роща и Строгинский затон. До станций метро ''Строгино'' и ''Мякинино'' можно добраться за 10 минут на автомобиле. На территории будет вся необходимая инфраструктура для комфортного проживания: коммерческие помещения на первых этажах, собственные детские сады и школа, спортивные и детские площадки с продуманным озеленением, зоны тихого отдыха, пешеходный бульвар и велодорожки. Можно не беспокоиться за безопасность детей - дворы закрыты от машин, на территорию может заехать только спецтранспорт. Празднуйте новоселье сразу после получения ключей - все квартиры сдаются с готовой отделкой!
                                              76 м2
                                              20 / 24 этаж
                                              Кирпич - монолит
                                              • Показать контакты
                                              • Добавить в избранное
                                              76 м2
                                              20 / 24 этаж
                                              Кирпич - монолит
                                              22 817 568 
                                              299 994 /м2
                                              Новостройка,
                                              II-2026
                                                1/23
                                                3-к, Квартал Строгино ЖК, 2 Показать на карте
                                                Красногорск
                                                Продаётся 3-комнатная квартира в строящемся доме (Корпус 2), срок сдачи: II-кв. 2026, общей площадью 76.06 кв.м., на 5 этаже. Новый современный жилой комплекс на северо-западе Москвы. Рядом с проектом благоустроенная набережная Живописной бухты, парк Липовая Роща и Строгинский затон. До станций метро ''Строгино'' и ''Мякинино'' можно добраться за 10 минут на автомобиле. На территории будет вся необходимая инфраструктура для комфортного проживания: коммерческие помещения на первых этажах, собственные детские сады и школа, спортивные и детские площадки с продуманным озеленением, зоны тихого отдыха, пешеходный бульвар и велодорожки. Можно не беспокоиться за безопасность детей - дворы закрыты от машин, на территорию может заехать только спецтранспорт. Празднуйте новоселье сразу после получения ключей - все квартиры сдаются с готовой отделкой!
                                                76 м2
                                                5 / 24 этаж
                                                Кирпич - монолит
                                                • Показать контакты
                                                • Добавить в избранное
                                                76 м2
                                                5 / 24 этаж
                                                Кирпич - монолит
                                                19 752 021 
                                                259 690 /м2
                                                Новостройка,
                                                II-2026
                                                  1/23
                                                  3-к, Квартал Строгино ЖК, 2 Показать на карте
                                                  Красногорск
                                                  Продаётся 3-комнатная квартира в строящемся доме (Корпус 2), срок сдачи: II-кв. 2026, общей площадью 76.06 кв.м., на 15 этаже. Новый современный жилой комплекс на северо-западе Москвы. Рядом с проектом благоустроенная набережная Живописной бухты, парк Липовая Роща и Строгинский затон. До станций метро ''Строгино'' и ''Мякинино'' можно добраться за 10 минут на автомобиле. На территории будет вся необходимая инфраструктура для комфортного проживания: коммерческие помещения на первых этажах, собственные детские сады и школа, спортивные и детские площадки с продуманным озеленением, зоны тихого отдыха, пешеходный бульвар и велодорожки. Можно не беспокоиться за безопасность детей - дворы закрыты от машин, на территорию может заехать только спецтранспорт. Празднуйте новоселье сразу после получения ключей - все квартиры сдаются с готовой отделкой!
                                                  76 м2
                                                  15 / 24 этаж
                                                  Кирпич - монолит
                                                  • Показать контакты
                                                  • Добавить в избранное
                                                  76 м2
                                                  15 / 24 этаж
                                                  Кирпич - монолит
                                                  19 666 283 
                                                  258 563 /м2
                                                  Новостройка,
                                                  II-2026
                                                    • В начало
                                                    • 30
                                                    • 31
                                                    • 32
                                                    • 33
                                                    • 34
                                                    • Следующая
                                                    Распечатать

                                                    Вместе с этим также ищут:

                                                    Продажа квартир в Красногорске Продажа однокомнатных квартир в Красногорске Продажа комнат в Красногорске Продажа гаражей в Красногорске Продажа вторички - квартиры в Красногорске Квартиры в новостройках в Красногорске

                                                    🏠 Как купить трехкомнатную квартиру в Красногорске на N1?

                                                    • ✔ В поисках объявления о продаже или покупке квартир в Красногорске?
                                                    • ✔ На N1 размещены 1,17 тыс квартир
                                                    • ✔ Чтобы купить или продать недвижимость, воспользуйтесь формой поиска, фильтрами или быстрыми ссылками.

                                                    💸 Сколько стоит трехкомнатная квартира в Красногорске?

                                                    • 🟢 Средняя цена продажи трехкомнатных квартир - 21,82 млн ₽
                                                    • 🟢 Минимальная стоимость за 1 м2: 289,49 тыс ₽

                                                    📚 Какая площадь трехкомнатных квартир?

                                                    • Наибольшая площадь: 91 м²
                                                    • Минимальная площадь: 50 м²