2-к, Тетрис ЖК, 9 Показать на карте
Красногорск
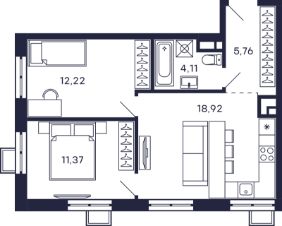
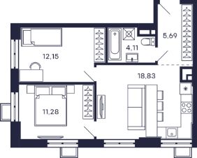
Продаётся 2-комнатная квартира в строящемся доме ( 2 очередь (Корпус 9)), срок сдачи: II-кв. 2025, общей площадью 62.68 кв.м., на 2 этаже. Многофункциональный комплекс ''Тетрис'' будет построен в Красногорске - районном центре МО в Железнодорожном переулке.От ЖК до МКАД - примерно 2,7 км по Волоколамскому шоссе, до которого от комплекса менее 100 м.Ближе всего к ЖК находятся станции метро ''Мякинино'' (2,6 км), ''Волоколамская'' (3 км) ''Митино'' (3,3 км), чуть дальше - ''Пятницкое шоссе'', ''Строгино'', ''Спартак'' и ''Тушинская''.Всего 200 м от ЖК расположена железнодорожная платформа Павшино, от которой полчаса на электричке до Рижского вокзала (метро ''Рижская''), а до платформы Тушино (метро ''Тушинская'') - 10 минут. Около платформы Павшино есть и автовокзал.Так что добираться от комплекса до центра Москвы будет достаточно просто.
62 м2
2 / 28 этаж
Кирпич - монолит
- Показать контакты
- Добавить в избранное
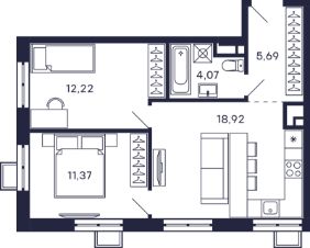
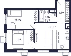
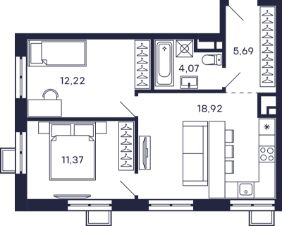
62 м2
2 / 28 этаж
Кирпич - монолит
13 252 789
211 436 /м2
Новостройка,
дом сдан
дом сдан
