1-к, Школьная, 11 Показать на карте
Красногорск
АГЕНТ НЕ ТРЕБУЕТСЯ!!! Один собственник с котлована (дду) в стоимость входит МАШИНОМЕСТО на -1 уровне, рядом с охраной! СВОБОДНАЯ ПРОДАЖА, ФИЗИЧЕСКИ и ЮРИДИЧЕСКИ! Никогда никто не был зарегистрирован. Без обременений, без использования маткапитала, наследственных, кредитный историй и тд и тп Эксклюзивная возможность купить квартиру в доме бизнес-класса. Своё ТСЖ, ГОРОДСКИЕ ТАРИФЫИдеальное месторасположение, до МЦД Павшино 10 минут пешком и уже через 30 минут Вы в центре Москвы. Новые коммуникации, установлены фильтры на воду, кондиционер, водонагреватель, БЕЗ МЕБЕЛИ. Выход из подъезда в городской парк, где множество бесплатных занятий-кружков для любого возраста, Яблоневый сквер, 10 минут до парка Губайлово и Ивановских прудов. Огромное количество именитых профильных школ, в соседних подъездах кружки для детей. Во дворе спортшкола, школа 8, фитнес-центр, библиотека и тд. Интеллигентные соседи, консьерж, ЕЖЕДНЕВНАЯ уборка, закрытый тамбур (можно оставить коляску, самокаты, пуфик и тп) Дом строился по индивидуальному проекту.
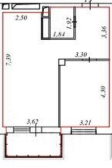
45 м2
8 / 13 этаж
Кирпич
- Показать контакты
- Добавить в избранное
45 м2
8 / 13 этаж
Кирпич
11 500 000
253 304 /м2
