Арт. 128087411 сдается в аренду помещение свободного назначения на 7 этаже в крупном ТЦ
Несколько этажей в тц полностью заполнены арендаторами
Активный пешеходный трафик
Все коммуникации подведены
Свободная планировка с возможностью индивидуального проекта
Возможно разбить помещение на площади(рассматриваем аренду частями)
2 грузовых подъемника ( грузоподъемность 1т)
2 рампы для въезда/выезда
3 пассажирских лифта
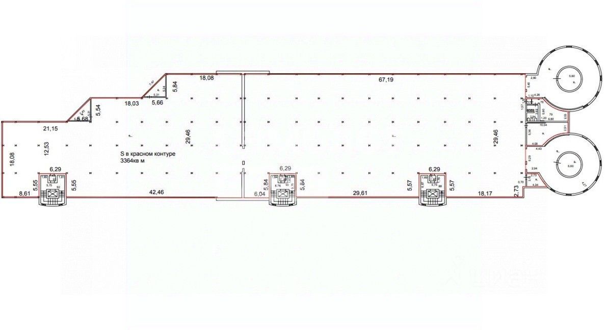
Общая площадь этажа: 3750 м²
Полезная площадь: 3350 м²
Нагрузка на пол: 600 кг/ м²
Высота до фермы 4.45 м
Высота до потолка 5.86 м
Звоните!
Быстрый выход на сделку!




