СКИДКА 26% до 31.12.25г. ТОРОПИТЕСЬ!
РЕТРО-БОНУС (кешбек) до 5% при покупке любой квартиры в любом ЖК от застройщика!
Вам не придется тратить время на ремонт и создание интерьера — поручите это нам. По вашему желанию мы выполним отделку квартиры, установим мебель, технику и дополним декором.
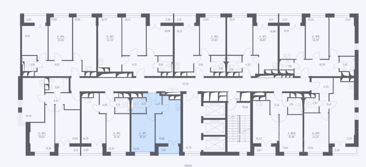
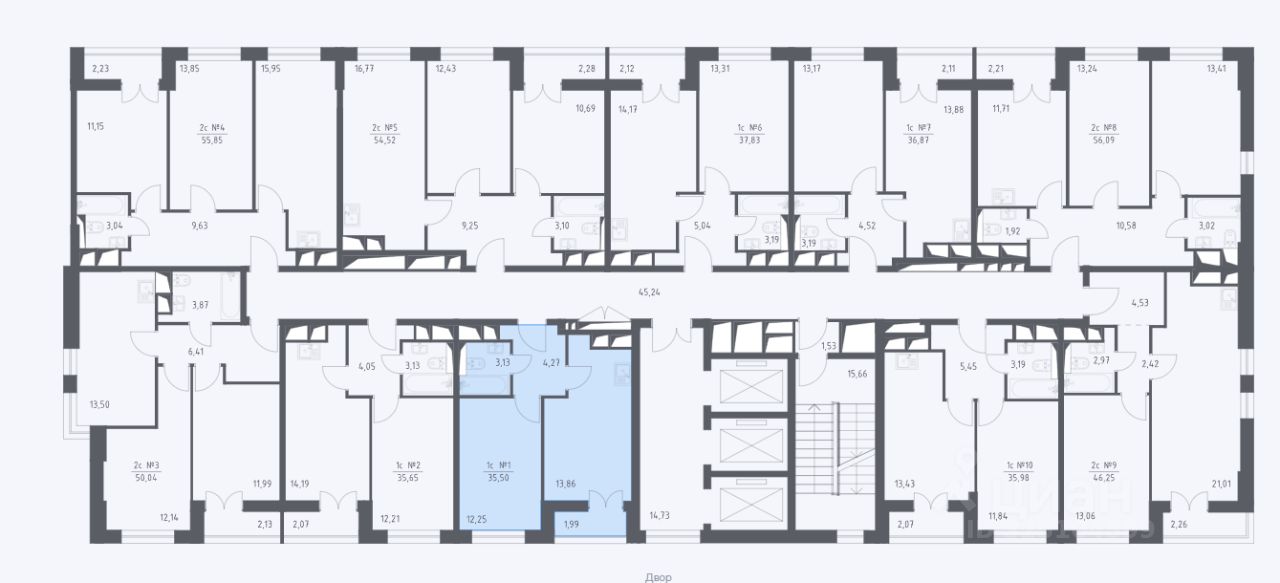
Мы разработали все опции с учетом разных планировок, чтобы сохранить эргономичность и удобство.
РЕТРО-БОНУС (кешбек) до 5% при покупке любой квартиры в любом ЖК от застройщика!


























