Если цена в объявлении изменится, мы сразу сообщим вам об этом на электронную почту.
Нажимая «Подписаться», вы соглашаетесь с правилами.
продам 3-к, Новая Опалиха, 322 000 000 ₽
29 ноя
Дата публикации объявления
Обн. 12 фев
Дата обновления объявления
7
Количество просмотров (+ просмотры за сегодня)
210 124 ₽/м²
Чистая продажа
Термин "Чистая продажа" означает, что в квартире никто не прописан или
есть куда выписаться и вывезти вещи. Это лучший вариант для покупателя.
Вероятность срыва сделки минимальна.
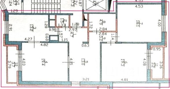
Красивая территория, не высокая коммуналка, все рядом, квартира с мебелью и ремонтом. * Продам 3-комнатную квартиру, расположенную на 3 этаже в доме 3 в жилом комплексе Новая Опалиха. Квартира расположена в центре дома, дом удачно расположен вдали от всех дорог. * Квартира с качественным ремонтом и укомплектована качественной мебелью и бытовой техникой, установлено видеонаблюдение и другие системы безопасности. * Квартира физически и юридически свободна. Материнский капитал, ипотека - не использовались. Зарегистрированных нет. Собственность более 10 лет (полная стоимость в договоре). Оперативный показ. * В квартире 3 жилые комнаты (19,4+19,3+18,1 м2), просторная кухня (13,2 м2), гардеробная, два санузла, балкон и комфортная прихожая.
Красивая территория, не высокая коммуналка, все рядом, квартира с мебелью и ремонтом. * Продам 3-комнатную квартиру, расположенную на 3 этаже в доме 3 в жилом комплексе Новая Опалиха. Квартира расположена в центре дома, дом удачно расположен вдали от всех дорог. * Квартира с качественным ремонтом и укомплектована качественной мебелью и бытовой техникой, установлено видеонаблюдение и другие системы безопасности. * Квартира физически и юридически свободна. Материнский капитал, ипотека - не использовались. Зарегистрированных нет. Собственность более 10 лет (полная стоимость в договоре). Оперативный показ. * В квартире 3 жилые комнаты (19,4+19,3+18,1 м2), просторная кухня (13,2 м2), гардеробная, два санузла, балкон и комфортная прихожая. Общая площадь указана с учетом балконов. * На площадке только 2 квартиры. Чистые подъезды. Мусоропровод заварен давно. * В жилом комплексе территория обособлена, вход и въезд по пропускам - дети гуляют самостоятельно. На территории есть продуктовый магазин, студия йоги, пункты выдачи заказов, шиномонтаж. Рядом расположен фитнес-центр и Опалиховская средняя школа. Территория граничит с Опалиховским лесопарком. Также есть хорошая детская площадка и место для пробежек, велосипедных и пеших прогулок. * До станции МЦД Опалиха можно дойти пешком (около 15-20 минут) или на автомобиле (5-10 минут). Рядом с ЖК расположены 2 остановки общественного транспорта. Вокруг развитая инфраструктура, в ЖК тихо. Парковка рядом с домом. * Квартира укомплектована. * Квартира физически и юридически свободна. Зарегистрированных нет. Собственность более 10 лет. Оперативный показ.