Если цена в объявлении изменится, мы сразу сообщим вам об этом на электронную почту.
Нажимая «Подписаться», вы соглашаетесь с правилами.
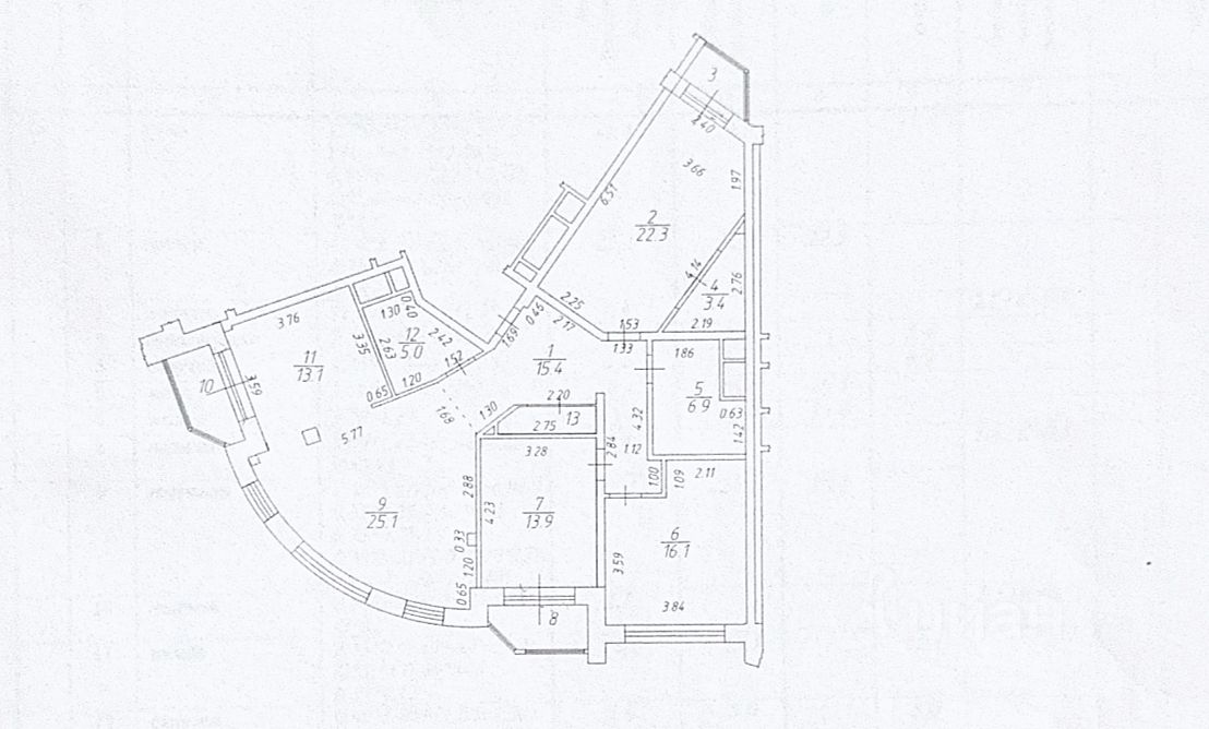
продам 3-к, Речная, 20 корп. 426 490 000 ₽
27 окт
Дата публикации объявления
Обн. 21 янв
Дата обновления объявления
1
Количество просмотров (+ просмотры за сегодня)
215 016 ₽/м²
Чистая продажа
Термин "Чистая продажа" означает, что в квартире никто не прописан или
есть куда выписаться и вывезти вещи. Это лучший вариант для покупателя.
Вероятность срыва сделки минимальна.
Продается видовая евротрехкомнатная квартира в ЖК Красногорская Ривьера!!! Квартира расположена на комфортном 12 этаже. Вид из окон во двор и на прекрасный парк с водоемом! В квартире выполнен дизайнерский ремонт с использованием качественных материалов. Три изолированные спальни (в мастер спальне и детской предусмотрена гардеробная), два совмещенных санузла, просторная кухня - гостинная, а также вместительная прихожая. Кухня оснащена всей необходимой бытовой техникой: холодильник, варочная панель, вытяжка, посудомоечная машина, духовой шкаф. В квартире три лоджии.
В подъезде есть консьерж, видеонаблюдение, два лифта, пандус, колясочная. Закрытая территория, проезд под шлагбаумом. Парковка есть как наземная, так и подземная.
Продается видовая евротрехкомнатная квартира в ЖК Красногорская Ривьера!!! Квартира расположена на комфортном 12 этаже. Вид из окон во двор и на прекрасный парк с водоемом! В квартире выполнен дизайнерский ремонт с использованием качественных материалов. Три изолированные спальни (в мастер спальне и детской предусмотрена гардеробная), два совмещенных санузла, просторная кухня - гостинная, а также вместительная прихожая. Кухня оснащена всей необходимой бытовой техникой: холодильник, варочная панель, вытяжка, посудомоечная машина, духовой шкаф. В квартире три лоджии.
В подъезде есть консьерж, видеонаблюдение, два лифта, пандус, колясочная. Закрытая территория, проезд под шлагбаумом. Парковка есть как наземная, так и подземная.
Район с развитой инфраструктурой: различные магазины, аптеки, салоны красоты, школы, детские сады. В шаговой доступности лесопарковая и пляжная зона, лыжный стадион. Транспортная инфраструктура: ж.д. станция Павшино МЦД - 10 мин. автобусом, метро Митино - 10 мин.
По документам: 2 взрослых собственника, полная стоимость в ДКП. По всем дополнительным вопросам звоните по номеру в объявлении. Показы по предварительной договоренности.