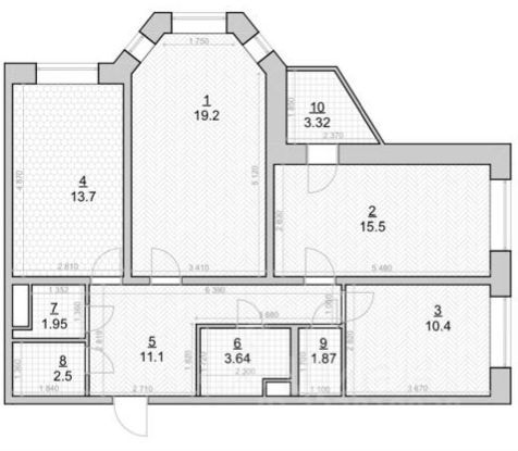
Предлагается в аренду просторная уютная 3-х комнатная квартира с дизайнерским ремонтом, общей площадью: 80 кв.м., три комнаты изолированные: 19.2-15.5-10.4 кв.м., одна из комнат с эркером, вторая спальня с выходом на застекленный балкон, кухня: 13.7 кв.м., в квартире предусмотрена просторная гардеробная комната, 1,5 санузла ( совмещенный санузел с ванной и отдельный гостевой санузел), квартира по своей функциональности полностью продумана для комфортного проживания. В доме предусмотрено два лифта: грузовой и пассажирский, приятная входная группа, шлагбаум во дворе, есть парковочные места, в доме всего 2 подъезда, напротив дома ЖК Спасский Мост, где предусмотрен подземный паркинг, есть возможность, и арендовать, и купить м/место за дополнительную плату.
Предлагается в аренду просторная уютная 3-х комнатная квартира с дизайнерским ремонтом, общей площадью: 80 кв.м., три комнаты изолированные: 19.2-15.5-10.4 кв.м., одна из комнат с эркером, вторая спальня с выходом на застекленный балкон, кухня: 13.7 кв.м., в квартире предусмотрена просторная гардеробная комната, 1,5 санузла ( совмещенный санузел с ванной и отдельный гостевой санузел), квартира по своей функциональности полностью продумана для комфортного проживания. В доме предусмотрено два лифта: грузовой и пассажирский, приятная входная группа, шлагбаум во дворе, есть парковочные места, в доме всего 2 подъезда, напротив дома ЖК Спасский Мост, где предусмотрен подземный паркинг, есть возможность, и арендовать, и купить м/место за дополнительную плату. Квартира расположена в пешей доступности от метро: Мякинино, МЦД Пенягино, в микрорайоне Павшинская пойма в Красногорске имеет преимущества, связанные с развитой инфраструктурой, транспортной доступностью. Район расположен в одноимённой речной пойме на границе с Москвой, с северо-востока, востока и юго-востока ограничен Москвой-рекой. Преимущества: •развитая инфраструктура, •хорошая транспортная доступность, •благоустроенная набережная для прогулок и отдыха. Инфраструктура: •Социально-бытовая инфраструктура: школы, детские сады, взрослая и детская поликлиника, центры интеллектуального развития ребёнка и художественные студии. •Торгово-розничная инфраструктура: магазины (продуктовые, хозяйственные, промтоварные, стройматериалы), аптеки, парикмахерские и салоны красоты, дома быта. •Досуговая инфраструктура: физкультурные кружки и секции в оздоровительных центрах. •Благоустройство дворов и зелёных скверов с детскими и спортивными площадками. Транспорт: •Пешком: 10 минут пешком до станции метро Мякинино по пешеходному мосту через Москву-реку, 10 минут пешком до станции МЦД Пенягино. •Общественным транспортом: от 15 минут на автобусах и маршрутках до станций метро Тушинская, Волоколамская, Митино, МЦД: Трикотажная. •Личным транспортом: из Павшинской поймы, в зависимости от выезда, до МКАД — 2 км, в среднем путь занимает 5-7 минут.