Если цена в объявлении изменится, мы сразу сообщим вам об этом на электронную почту.
Нажимая «Подписаться», вы соглашаетесь с правилами.
продам 3-к, Спасская, 823 900 000 ₽
11 окт
Дата публикации объявления
Обн. 19 ноя
Дата обновления объявления
3
Количество просмотров (+ просмотры за сегодня)
281 176 ₽/м²
Чистая продажа
Термин "Чистая продажа" означает, что в квартире никто не прописан или
есть куда выписаться и вывезти вещи. Это лучший вариант для покупателя.
Вероятность срыва сделки минимальна.
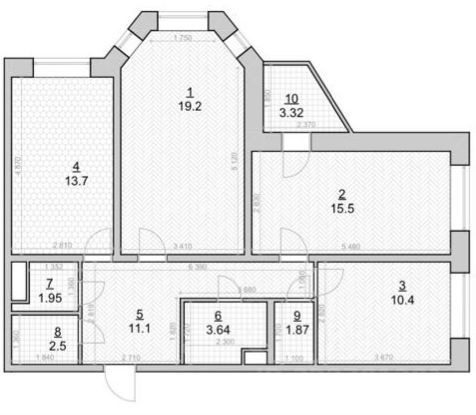
Продается просторная уютная 3-комнатная квартира с дизайнерским ремонтом, общей площадью: 85 кв.м., три комнаты изолированные: 19.2-15.5-10.4 кв.м., одна из комнат с эркером, вторая спальня с выходом на застекленный балкон, кухня: 13.7 кв.м., в квартире предусмотрена просторная гардеробная комната, 1,5 санузла ( совмещенный санузел с ванной и отдельный гостевой санузел), квартира по своей функциональности полностью продумана для комфортного проживания. В доме предусмотрено два лифта: грузовой и пассажирский, приятная входная группа, шлагбаум во дворе, есть парковочные места, в доме всего 2 подъезда, напротив дома ЖК Спасский Мост, где предусмотрен подземный паркинг, есть возможность, и арендовать, и купить м/место за дополнительную плату.
Продается просторная уютная 3-комнатная квартира с дизайнерским ремонтом, общей площадью: 85 кв.м., три комнаты изолированные: 19.2-15.5-10.4 кв.м., одна из комнат с эркером, вторая спальня с выходом на застекленный балкон, кухня: 13.7 кв.м., в квартире предусмотрена просторная гардеробная комната, 1,5 санузла ( совмещенный санузел с ванной и отдельный гостевой санузел), квартира по своей функциональности полностью продумана для комфортного проживания. В доме предусмотрено два лифта: грузовой и пассажирский, приятная входная группа, шлагбаум во дворе, есть парковочные места, в доме всего 2 подъезда, напротив дома ЖК Спасский Мост, где предусмотрен подземный паркинг, есть возможность, и арендовать, и купить м/место за дополнительную плату. Квартира расположена в пешей доступности от метро: Мякинино, МЦД Пенягино, Волоколамская, в микрорайоне Павшинская пойма в Красногорске имеет преимущества, связанные с развитой инфраструктурой, транспортной доступностью. Отличная транспортная доступность в сторону метро Тушинская, Трикотажная, в сторону центра, метро Белорусская, Сокол, Аэропорт, Динамо. Преимущества: •развитая инфраструктура, •хорошая транспортная доступность, •благоустроенная набережная для прогулок и отдыха. Инфраструктура: •Социально-бытовая инфраструктура: школы, детские сады, взрослая и детская поликлиника, центры интеллектуального развития ребёнка и художественные студии. •Торгово-розничная инфраструктура: магазины (продуктовые, хозяйственные, промтоварные, стройматериалы), аптеки, парикмахерские и салоны красоты, дома быта. •Досуговая инфраструктура: физкультурные кружки и секции в оздоровительных центрах. •Благоустройство дворов и зелёных скверов с детскими и спортивными площадками. Транспорт: •Пешком: 10 минут пешком до станции метро Мякинино по пешеходному мосту через Москву-реку, 10 минут пешком до станции МЦД Пенягино/ Волоколамская. •Общественным транспортом: от 15 минут на автобусах и маршрутках до станций метро Тушинская, Волоколамская, Митино, МЦД: Трикотажная. •Личным транспортом: из Павшинской поймы, в зависимости от выезда, до МКАД — 2 км, в среднем путь занимает 5-7 минут. Жилье: •Разнообразие застройки, •Функциональные планировки: в квартирах.
Документы: Один взрослый собственник, никто не прописан, физически и юридически свободна, свободная продажа. Оперативный показ. Все документы готовы к сделке, быстрый выход на сделку.
Приглашаем вас на просмотр! Записывайтесь на удобное время, чтобы лично оценить все преимущества данного предложения. Не упустите возможность стать владельцем этого замечательного жилья!