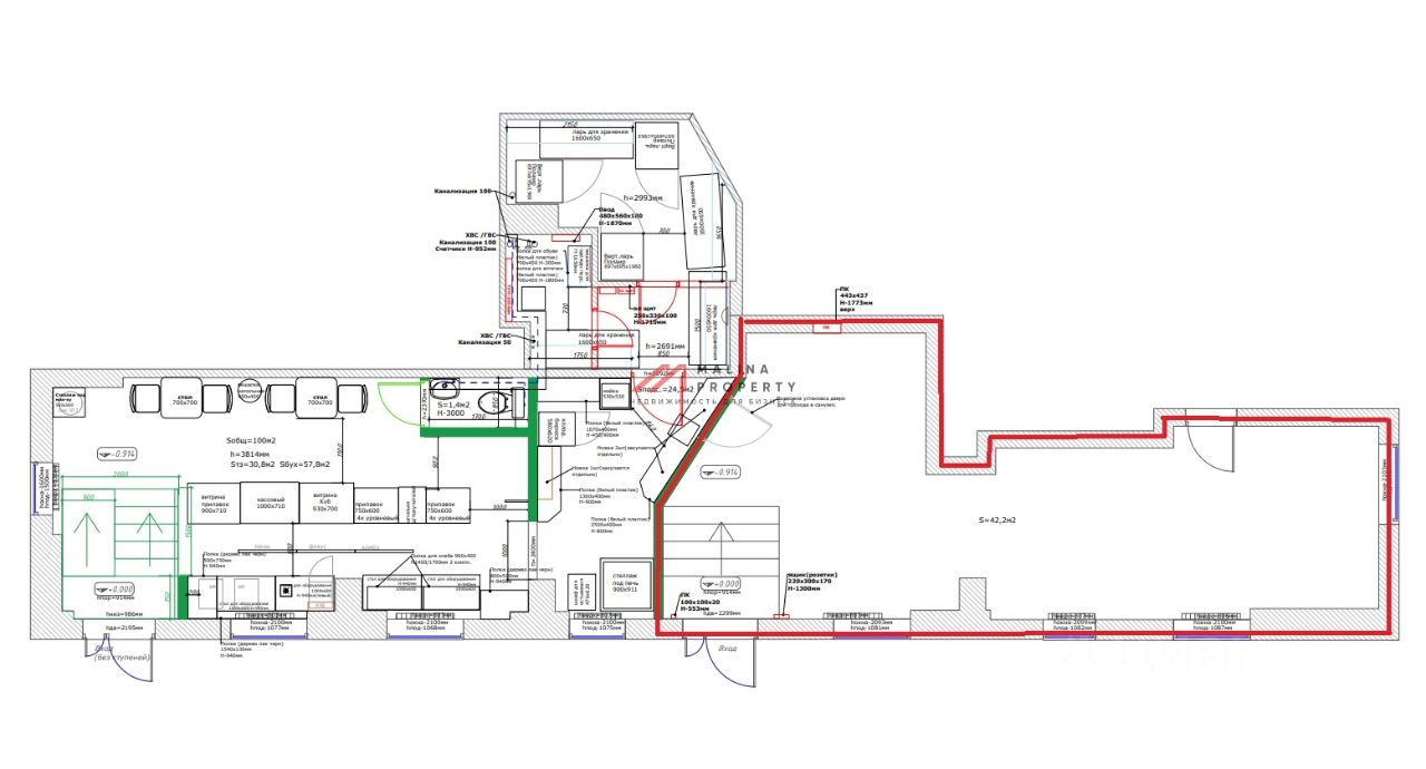
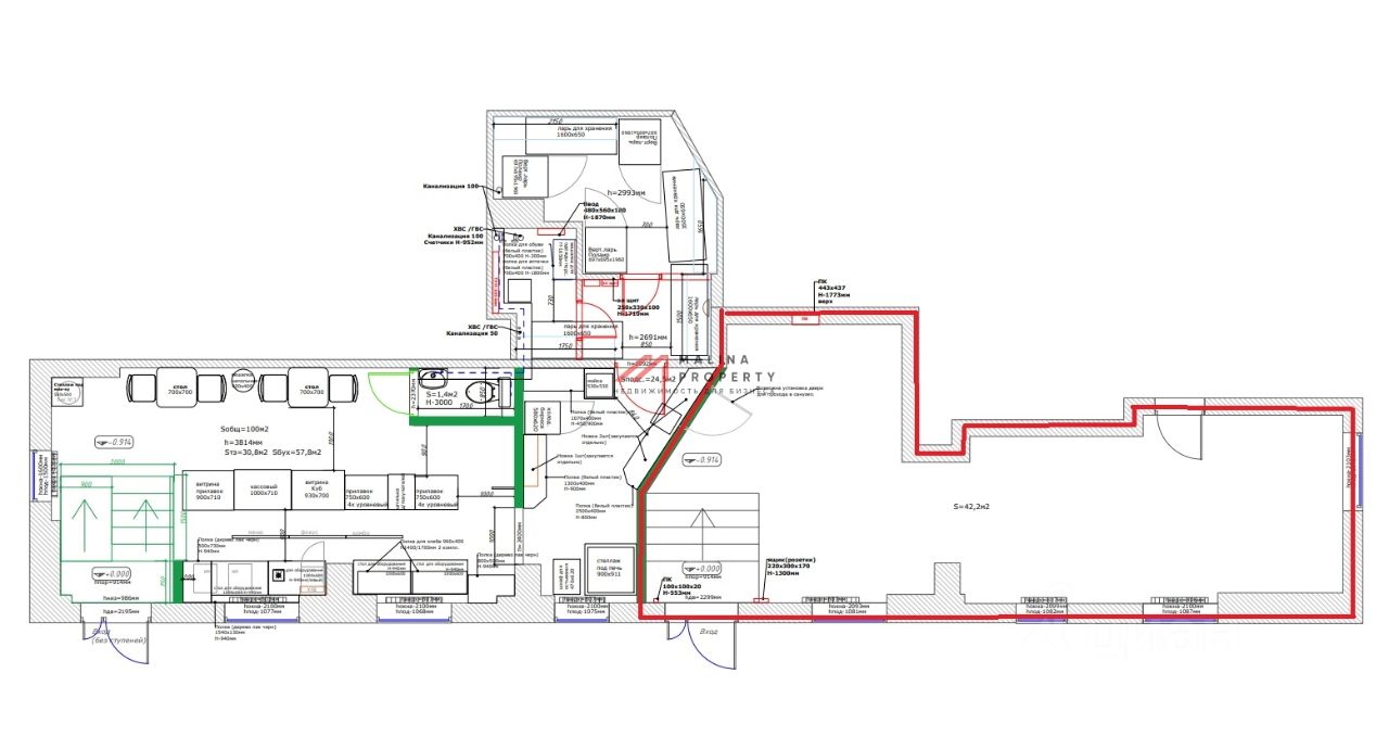
Аренда торгового помещения 99,7 м2 на ул. Большая Воскресенская д. 1 (5 минут пешком от станции МЦД Павшино).
Помещение 99,7 м2 располагается на 1 этаже, открытая планировка, отдельный вход, высота потолка 3 м, витринные окна по фасаду. Электрическая мощность 30 кВт. В помещении выполнен ремонт. Место для размещения рекламы на фасаде.
Два входа, помещение разделено на два. Располагается в центре жилого массива, заселено 5 башен на 1800 квартир, во второй очереди, которая заселяется в этом году еще 1200 квартир. Рядом станция МЦД. Интенсивный пешеходный трафик вдоль помещения.
Прямая аренда от собственника, долгосрочный договор.
Арендная плата 260 000 рублей в месяц. УС налогообложения. Без комиссии.








