Если цена в объявлении изменится, мы сразу сообщим вам об этом на электронную почту.
Нажимая «Подписаться», вы соглашаетесь с правилами.
продам 2-к, Пришвина, 714 850 000 ₽
29 сен
Дата публикации объявления
Обн. 9 ноя
Дата обновления объявления
3
Количество просмотров (+ просмотры за сегодня)
322 826 ₽/м²
Чистая продажа
Термин "Чистая продажа" означает, что в квартире никто не прописан или
есть куда выписаться и вывезти вещи. Это лучший вариант для покупателя.
Вероятность срыва сделки минимальна.
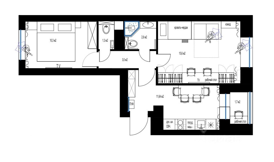
Из кухни выход на балкон с рабочим местом и с небольшой спортивной зоной. Вид открывается во внутренний двор.
Детская комната с удобными спальными местами. А так же есть рабочее место, для занятий. Установлен кондиционер!
Спальня с большой двухспальной кроватью и шкафами для вещей.
Сан.узел. совмещённый.
В квартире выполнен продуманный и качественный ремонт.
В подъезде один лифт, видеонаблюдение, территория вокруг дома оборудована парковочными местами, детскими и спортивными площадками.
Дом расположена в очень живописном месте, кругом естественный лес и различные парки с оборудованными зонами для активного отдыха.
В 5-7-ми минутах ходьбы от дома чистый сосновый бор. В 10-ти минутах езды на велосипеде красивое озеро, где все лето купаются.
Во дворе детская площадка со всевозможными спортивными снарядами. Вся инфраструктура в шаговой доступности. До МЦД Опалиха - 10 минут ходьбы.
Один взрослый собственник. Покупали в 2019 году. Есть ипотека в ВТБ. Остаток 2.7 млн. руб. Полная стоимость в ДКП. Свободная продажа. Возможна ипотека.
Квартира отлично подойдёт для семьи, которая ценит комфорт!