сдам универсальное помещение, Александровская, 470 670 ₽ в месяц
29 сен
Дата публикации объявления
Обн. 27 фев
Дата обновления объявления
1849 ₽/м² в месяц
Параметры
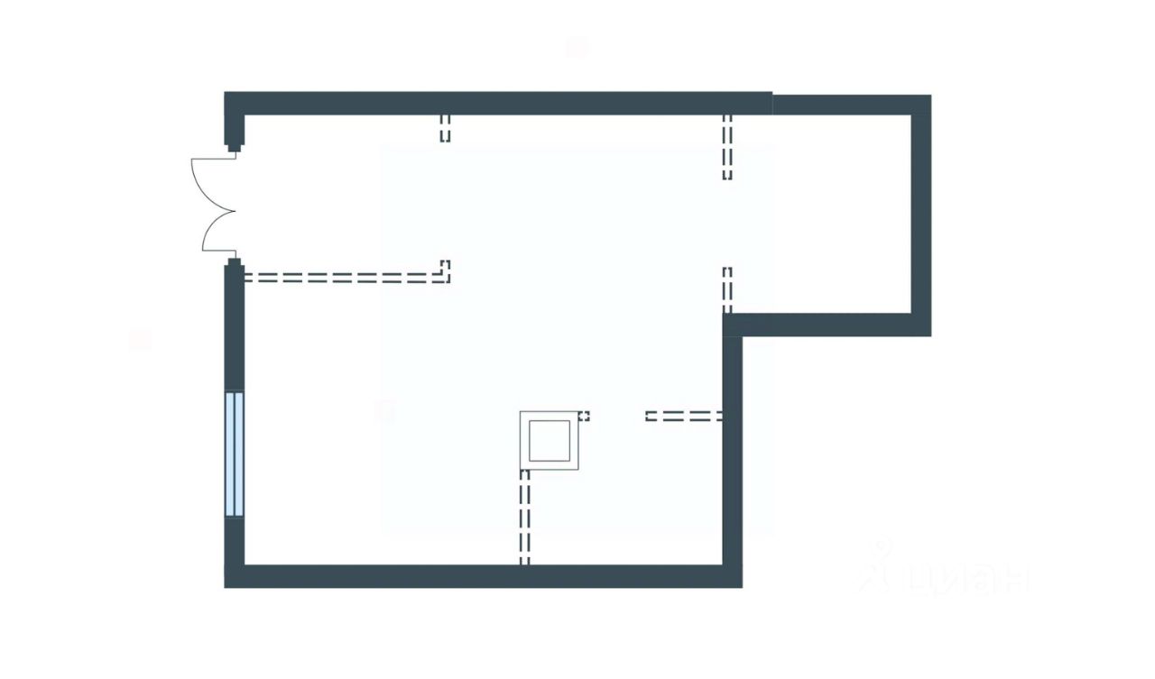
Общая площадь38,2 м2
Этаж1
Отдельный входесть
Сдаётся в аренду коммерческое помещение площадью 38,2 м на 1-м этаже 25-этажного жилого дома в ЖК ''Ильинойс''.
Основные преимущества:
отдельный вход, место под вывеску, витринное остекление, круглосуточный доступ, помещение без ремонта, что позволяет обустроить его по своему вкусу и требованиям бизнеса, помещение находится в жилом комплексе комфорт-класса, развитый район с насыщенной инфраструктурой и активным пешеходным трафиком.
Технические характеристики: наличие всех необходимых коммуникаций: водоснабжение, канализация, электроснабжение. Выделенная мощность - 7,6 кВт.
Сдаётся в аренду коммерческое помещение площадью 38,2 м на 1-м этаже 25-этажного жилого дома в ЖК ''Ильинойс''.
Основные преимущества:
отдельный вход, место под вывеску, витринное остекление, круглосуточный доступ, помещение без ремонта, что позволяет обустроить его по своему вкусу и требованиям бизнеса, помещение находится в жилом комплексе комфорт-класса, развитый район с насыщенной инфраструктурой и активным пешеходным трафиком.
Технические характеристики: наличие всех необходимых коммуникаций: водоснабжение, канализация, электроснабжение. Выделенная мощность - 7,6 кВт.
Условия: помещение предоставляется без посредников, напрямую от собственника - компании ''Аструм Недвижимость'', которая управляет коммерческой инфраструктурой жилых комплексов ГК ''Гранель''.
ЖК ''Ильинойс'' сочетает авторскую архитектуру, современные инженерные решения и развитую инфраструктуру в окружении живописной природы. Территория благоустроена: закрытые дворы ''без машин'', детские и спортивные площадки. Проект включает два детских сада на 450 мест, парковки, систему видеонаблюдения и авторскую навигацию. Первая очередь строительства рассчитана на 2695 квартир.
ЖК находится в 5 минутах от МКАД, рядом со станцией МЦД-2 ''Красногорская''. В перспективе - открытие станции метро ''Ильинская'' новой Рублево-Архангельской линии. Поблизости школы, детсады, поликлиники, ТРЦ ''РигаМолл'', парки и акватория Москвы-реки в 20 минутах ходьбы. На первых этажах комплекса размещены коммерческие помещения с отдельными входами, местами под вывески и круглосуточным доступом. Площади от 36 до 426 кв. м предлагаются без отделки, что дает возможность оформить их по индивидуальным требованиям.
Наши менеджеры помогут вам подобрать наиболее подходящее помещение для вашего бизнеса. Звоните и узнайте подробности!