Если цена в объявлении изменится, мы сразу сообщим вам об этом на электронную почту.
Нажимая «Подписаться», вы соглашаетесь с правилами.
продам 2-к, Ленина, 4211 300 000 ₽
27 сен
Дата публикации объявления
Обн. 27 сен
Дата обновления объявления
6
Количество просмотров (+ просмотры за сегодня)
177 953 ₽/м²
Чистая продажа
Термин "Чистая продажа" означает, что в квартире никто не прописан или
есть куда выписаться и вывезти вещи. Это лучший вариант для покупателя.
Вероятность срыва сделки минимальна.
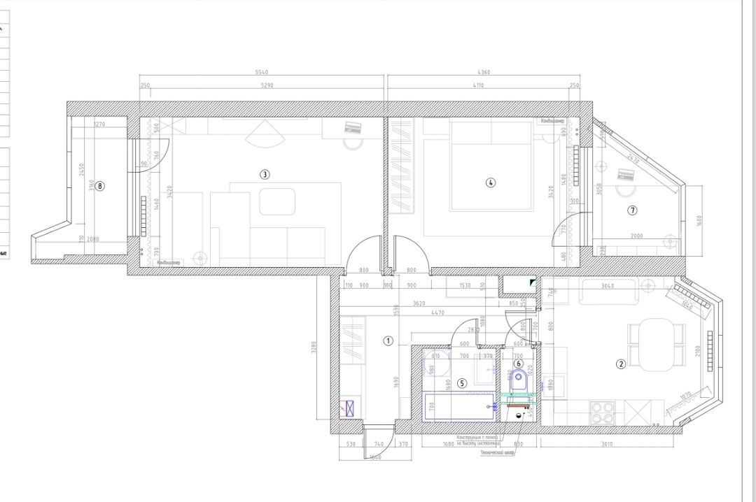
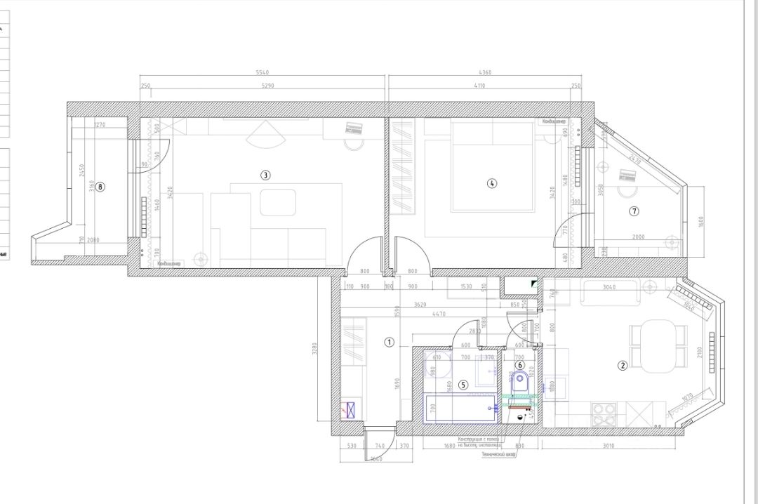
Предлагается просторная двухкомнатная квартира-распашонка площадью 63,5 кв. м. + 2 огромных лоджии - 4,6 и 4,5 кв.м.! Планировка: 2 изолированных комнаты 15 и 19 кв.м., каждая из которых с выходом на лоджию, кухня 12,6 кв. м., раздельный санузел, большой коридор. Квартира подготовлена к ремонту. Высота потолков - 2,66 м. Вид из окон - во двор, на солнечную сторону!
Дом - один из лучших домов в г. Красногорск, монолитно-кирпичный, 2003 года постройки. Тихий, зеленый двор, во дворе детская и спортивная площадки. Школа и детский сад в 3-5 минутах пешком. Инфраструктура района очень развита: банки, магазины: ВкусВилл, Ашан, Супер Лента, ПВЗ, фитнес-клубы.
Предлагается просторная двухкомнатная квартира-распашонка площадью 63,5 кв. м. + 2 огромных лоджии - 4,6 и 4,5 кв.м.! Планировка: 2 изолированных комнаты 15 и 19 кв.м., каждая из которых с выходом на лоджию, кухня 12,6 кв. м., раздельный санузел, большой коридор. Квартира подготовлена к ремонту. Высота потолков - 2,66 м. Вид из окон - во двор, на солнечную сторону!
Дом - один из лучших домов в г. Красногорск, монолитно-кирпичный, 2003 года постройки. Тихий, зеленый двор, во дворе детская и спортивная площадки. Школа и детский сад в 3-5 минутах пешком. Инфраструктура района очень развита: банки, магазины: ВкусВилл, Ашан, Супер Лента, ПВЗ, фитнес-клубы.
Транспортная доступность: в шаговой доступности остановка общественного транспорта, недалеко наземное метро МЦД 2 - жд.ст. Красногорская или станция Опалиха, 6-8 минут на маршрутке. До метро Митино - 10 минут на авто.
Документы: более 5-и лет в собственности, 2 взрослых собственника, без перепланировок и обременений. Подходит под ипотеку, помощь в одобрении ипотеки!