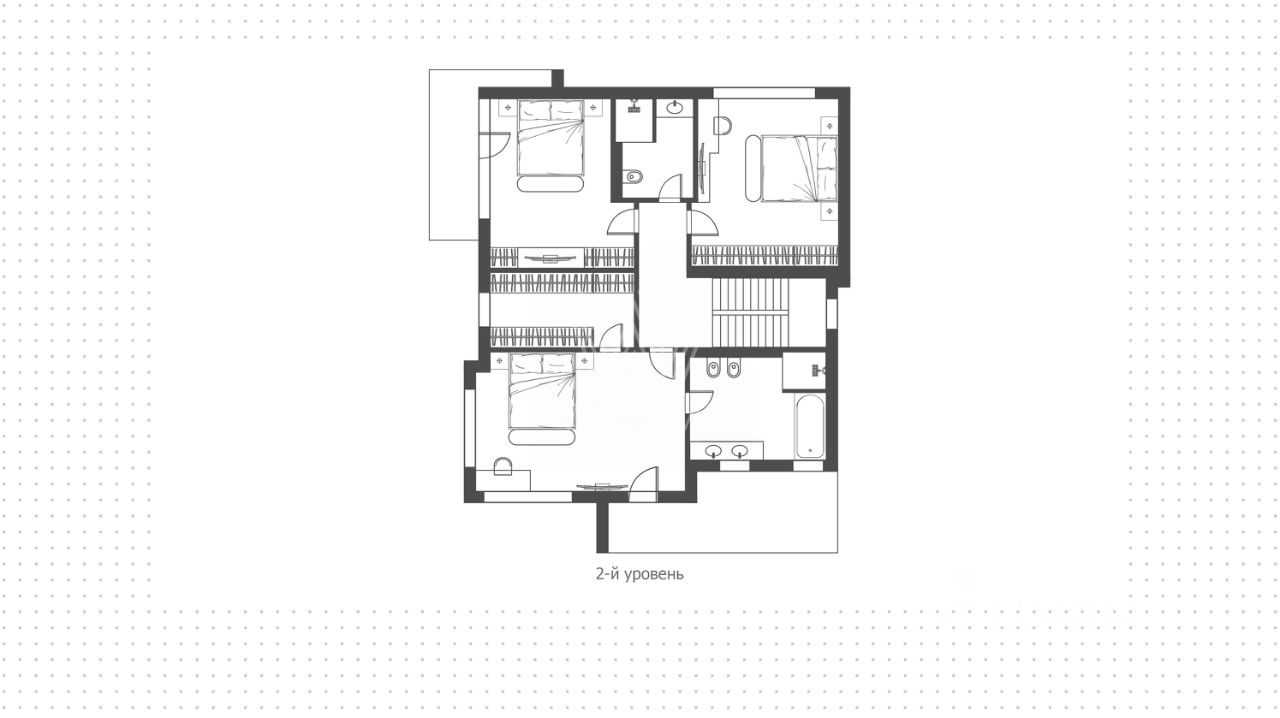
Hygge House. Загородный дом площадью 360 м² построен на полевом участке 5 соток. Фасад здания с большими окнами выполнен в современном стиле, облицован серым и коричневым клинкерным кирпичом и декорирован подсветкой. В отделке лаконичного интерьера использованы молочные оттенки в сочетании с фактурой дерева и камня. Планировка резиденции включает 4 спальни, кабинет, кухню-столовую-гостиную, гараж на 2 машины. Расслабиться в конце для можно в собственной сауне. На участке с газоном высажены хвойные растения.
ID 12 611.
Залог 650 000 ₽





























