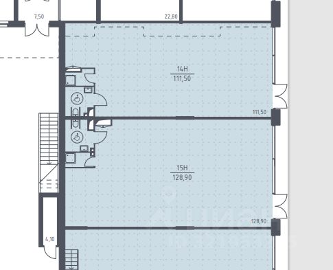
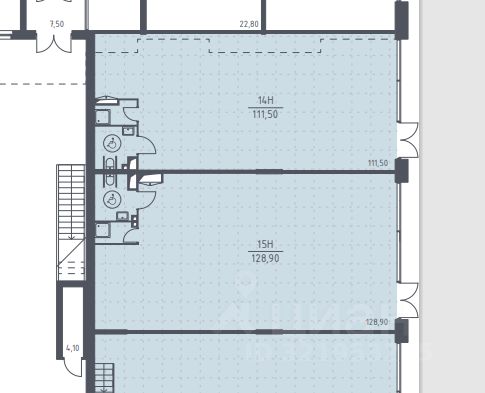
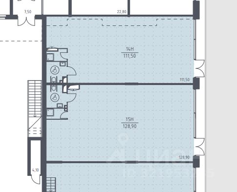
Продаётся помещение 240,3 квм. Два смежных помещения. Каждое помещение с отдельным входом с первой линии. Каждое на отдельном кадастре. Можно использовать совместно или порознь. Престижная локация на Западе Москвы. Высотный ЖК Спутник. Мало коммерческих помещений. Высокий спрос на коммерческие помещения. ЖК активно застраивается (100% готовность в 2028 г.). На пешеходном маршруте в ЖК от станции метро ''Липовая роща'' (открытие в 2027 год). Первая линия главной площади. Нежилое помещение в одноэтажной пристройке. .Электричество 70 квт. Большие витрины. Большая вывеска. Потолок 4 м. После открытия метро Липовая роща один из входов в ЖК от метро будет прямо перед витринами объекта что увеличит аренду в 1,5 раза. В помещении есть арендатор на коротком договоре (до 2028 года.
Продаётся помещение 240,3 квм. Два смежных помещения. Каждое помещение с отдельным входом с первой линии. Каждое на отдельном кадастре. Можно использовать совместно или порознь. Престижная локация на Западе Москвы. Высотный ЖК Спутник. Мало коммерческих помещений. Высокий спрос на коммерческие помещения. ЖК активно застраивается (100% готовность в 2028 г.). На пешеходном маршруте в ЖК от станции метро ''Липовая роща'' (открытие в 2027 год). Первая линия главной площади. Нежилое помещение в одноэтажной пристройке. .Электричество 70 квт. Большие витрины. Большая вывеска. Потолок 4 м. После открытия метро Липовая роща один из входов в ЖК от метро будет прямо перед витринами объекта что увеличит аренду в 1,5 раза. В помещении есть арендатор на коротком договоре (до 2028 года. Топовая компания России Яндекс Лавка. Можно получать доход от аренды сразу после покупки! Объект с НДС! Сотрудничаем с брокерами.