сдам универсальное помещение, Успенская, 2470 000 ₽ в месяц
16 сен
Дата публикации объявления
Обн. 5 мар
Дата обновления объявления
6
Количество просмотров (+ просмотры за сегодня)
945 ₽/м² в месяц
Параметры
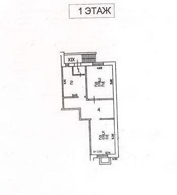
Общая площадь74 м2
Этаж1
Отдельный входесть
Предложение Без Комиссии! Сдается в аренду нежилое помещение 74кв. м (возможна аренда части площади) под торговлю/кафе/салон/услуги/ПВЗ/дет. центр/мед. центр и др.
Красногорск, мкр. Чернево-2, ул. Успенская, д. 24. Оживленный автомобильный и пешеходный трафик рядом с помещением. Обжитой район с развитой инфраструктурой. До остановки 5мин. пешком, до МЦД ст. Красногорская платформа и Опалиха 10 минут на транспорте.
Помещение расположено на 1-м этаже 17-ти этажного монолитно-кирпичного дома, отдельный вход с улицы. Планировка: проходной зал на входе, 2 отдельные комнаты, холл, 2 сан. узла. Помещение в рабочем состоянии, на окнах решетки. Коммуникации проведены, 2 мокрые точки, вентиляционная система, кондиционеры. Эл. мощность 13кВт.
Предложение Без Комиссии! Сдается в аренду нежилое помещение 74кв. м (возможна аренда части площади) под торговлю/кафе/салон/услуги/ПВЗ/дет. центр/мед. центр и др.
Красногорск, мкр. Чернево-2, ул. Успенская, д. 24. Оживленный автомобильный и пешеходный трафик рядом с помещением. Обжитой район с развитой инфраструктурой. До остановки 5мин. пешком, до МЦД ст. Красногорская платформа и Опалиха 10 минут на транспорте.
Помещение расположено на 1-м этаже 17-ти этажного монолитно-кирпичного дома, отдельный вход с улицы. Планировка: проходной зал на входе, 2 отдельные комнаты, холл, 2 сан. узла. Помещение в рабочем состоянии, на окнах решетки. Коммуникации проведены, 2 мокрые точки, вентиляционная система, кондиционеры. Эл. мощность 13кВт.
Предоставляется льготный период аренды на первые 3 месяца - арендная ставка 70000р. в месяц + коммунальные расходы по счетчикам. Далее 90000р. в месяц + коммуналка. В случае аренды части площади, арендная ставка 2000р. /кв. м/ месяц. Депозит в размере 1 месяца аренды (90000р). Договор прямой аренды. Возможен долгосрочный договор. Арендные каникулы предоставляем, срок будет зависеть от деятельности арендатора и планируемых ремонтных работ!