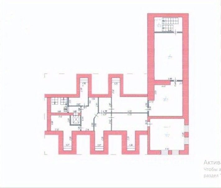
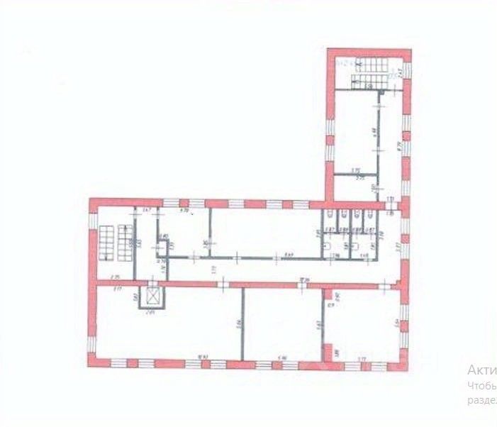
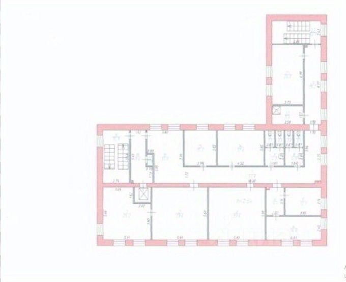
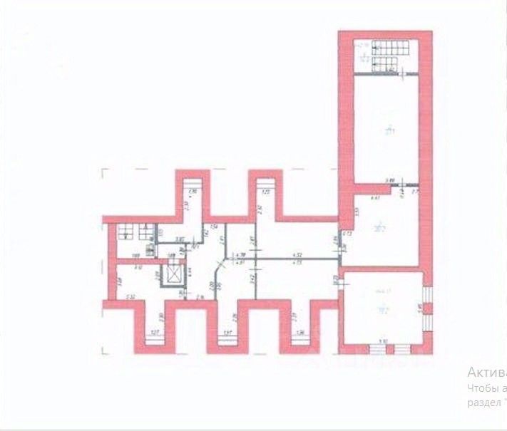
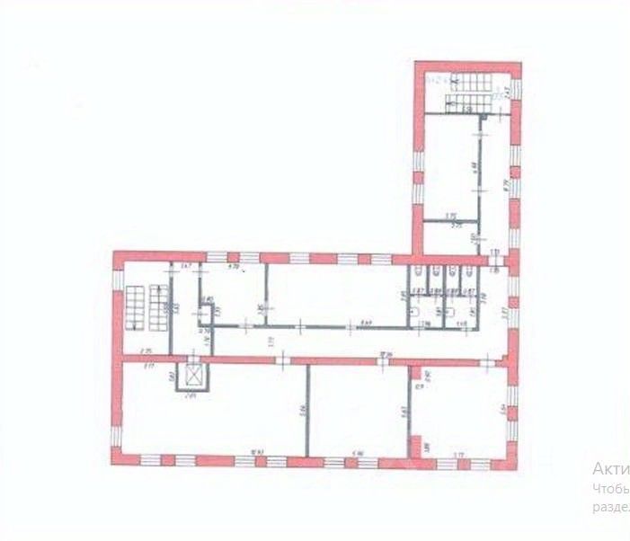
Продается деловой центр ''Успенский'' общей площадью 1810 м2. на земельном участке 1276 м.кв. Объект и земля находятся в собственности.
Этажей в здании 4, + мансардное и подвальное помещение, всего 60 помещений, все заняты арендаторами. МАП по запросу. здание можно переоборудовать под гостиницу, ВРИ позволяет. Здание построено из кирпича и отделано снаружи вентилируемым фасадом, внутри отштукатурено и покрашено, на полу плитка, потолки подвесные. На каждом этаже сан. узел., отдельное помещение под оборудование для вытяжки и электрооборудования, все оборудование в отличном состоянии. Весь штат сотрудников обслуживающих оборудование и помещение есть.
Отдельный вход в здание с улицы и со двора. Здание охраняется ЧОП.
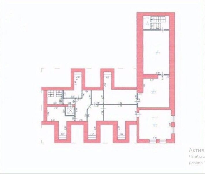
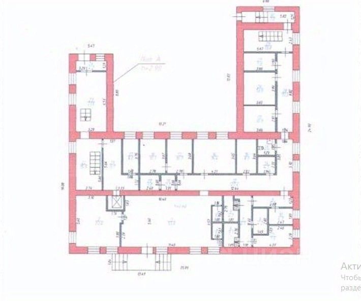
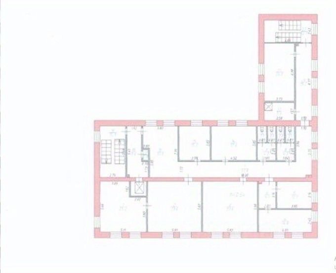
Продается деловой центр ''Успенский'' общей площадью 1810 м2. на земельном участке 1276 м.кв. Объект и земля находятся в собственности.
Этажей в здании 4, + мансардное и подвальное помещение, всего 60 помещений, все заняты арендаторами. МАП по запросу. здание можно переоборудовать под гостиницу, ВРИ позволяет. Здание построено из кирпича и отделано снаружи вентилируемым фасадом, внутри отштукатурено и покрашено, на полу плитка, потолки подвесные. На каждом этаже сан. узел., отдельное помещение под оборудование для вытяжки и электрооборудования, все оборудование в отличном состоянии. Весь штат сотрудников обслуживающих оборудование и помещение есть.
Отдельный вход в здание с улицы и со двора. Здание охраняется ЧОП. В здании: отличная приточная вентиляция, центральное отопление, гидрантная система пожаротушения, центральное водоснабжение, 400 кВт электроэнергии. Парковка автомобилей - как наземная внутри участка, так и вдоль дороги, парковка на 10 машиномест. 7 мин. транспортом от м. Красногорская, в 8 км от МКАД. Быстрый выход на сделку.