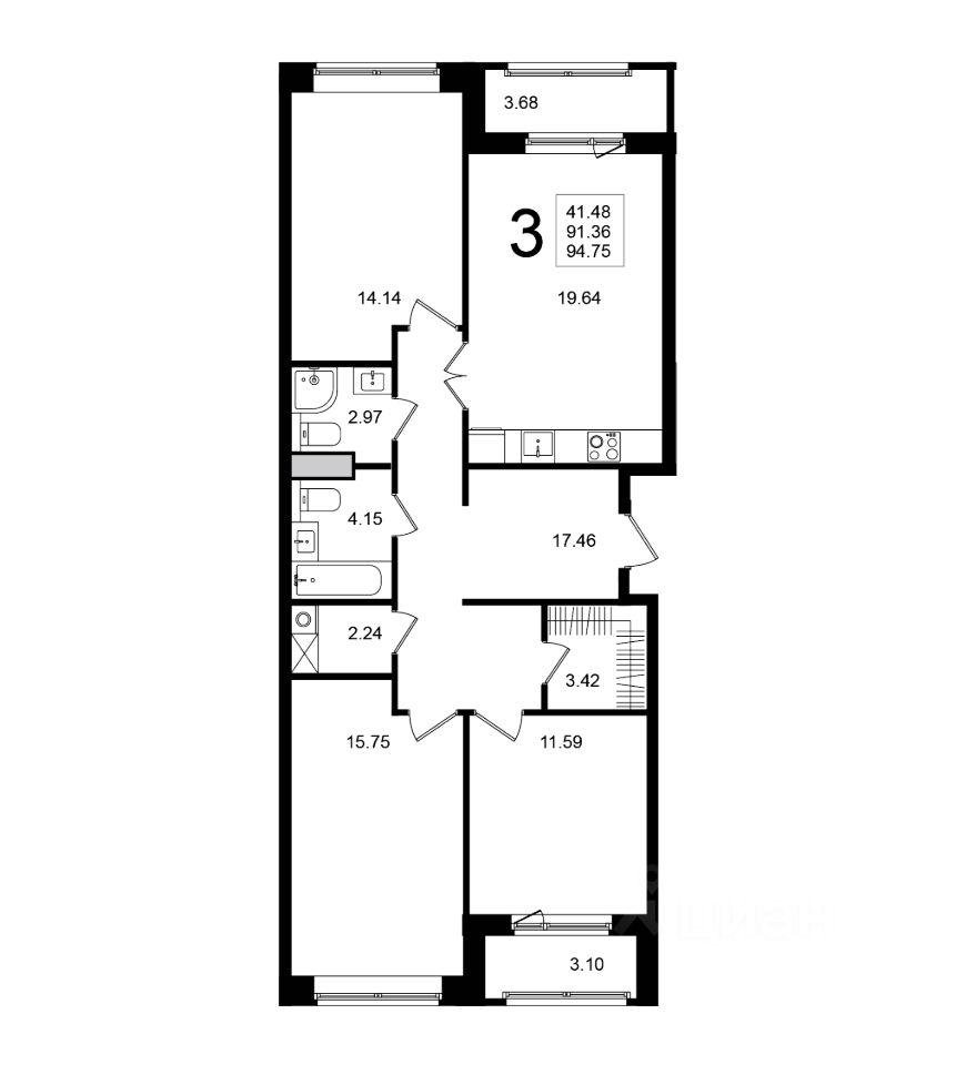
Продаётся 3-комнатная квартира в строящемся доме (Корпус 7), срок сдачи: 4-кв. 2025, общей площадью 94.75 кв.м., на 1 этаже.
ЖК ''Мишино-2'' - современный мультиформатный жилой комплекс, который включает в себя многоквартирные дома, таунхаусы и коттеджи, возведенные в едином архитектурном стиле на закрытой территории с собственной инфраструктурой. Комплекс расположен в северной части города Химки и окружен лесопарком.

















