Все включено. Сверху аренды оплачиваете только проводной Интернет (прямой договор с провайдером на выбор - в Здании несколько интернет провайдеров).
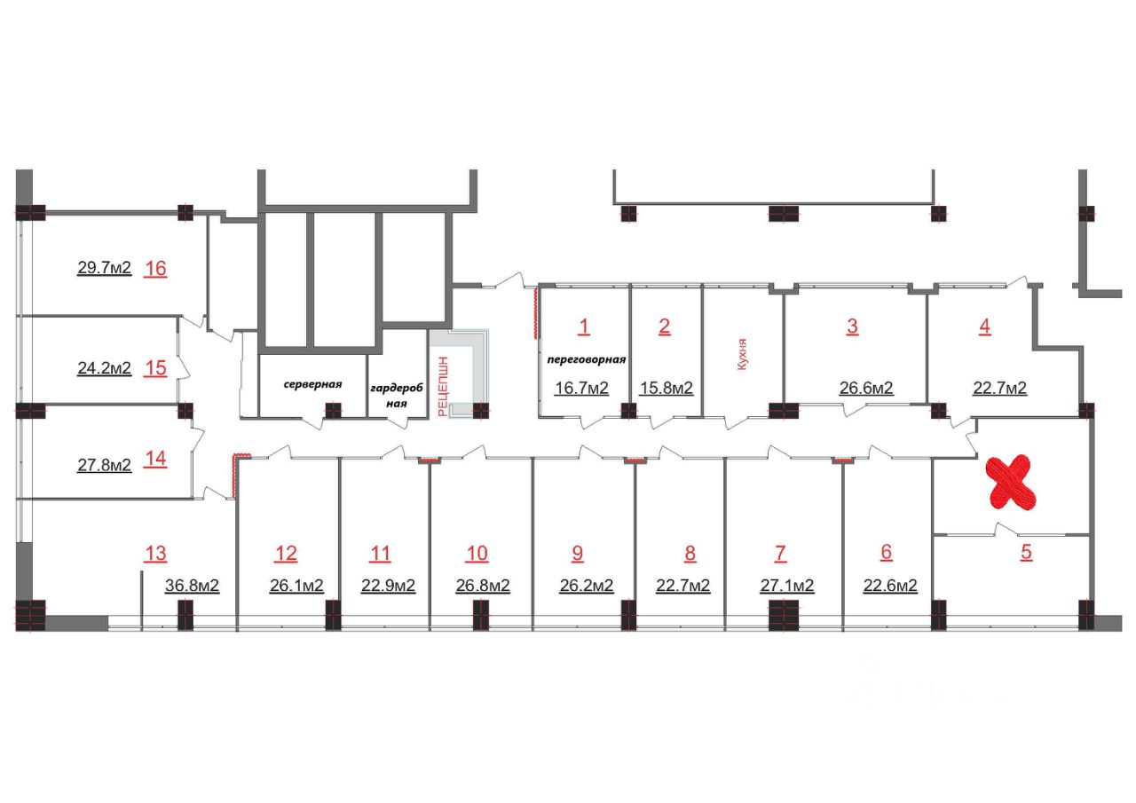
Прямая аренда кабинета 23 м2 и 27 м2 с мебелью в смарт-офисе на 7 этаже БЦ в Красногорске (есть кухня, переговорная, гардеробная, зона ожидания), окна открываются.
на плане кабинеты N6 и N10.
НДС 5%, оплачивается первый месяц аренды + депозит.
Доступен общественный транспорт (МЦД-2, электричка, автобусы), есть платная парковка, аренда м/м в подземном паркинге. до МКАД и Новорижского шоссе по 3 км.
Подробности по телефону























