Ключи от квартиры отдадим на сделке!
КВАРТИРА ТРЕБУЕТ РЕМОНТА!
Предлагается к продаже 2-х комнатная квартира по адресу:
Московская область, г. Красногорск, бульвар Космонавтов, д. 5.
Квартира расположена на 22-м этаже 25-ти этажного монолитного дома.
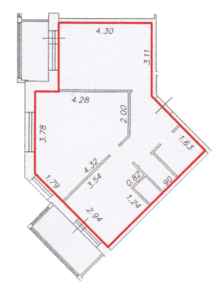
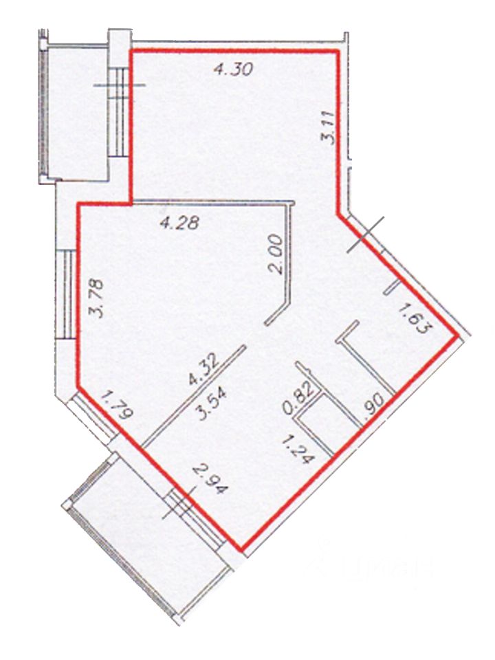
Параметры квартиры:
Общая площадь 56,4 м2, без учета лоджий 48,4 м2,
Жилая 29,4 м2, комнаты изолированные (16,0 / 13,4 м2),
Кухня 9,5 м2,
Санузел совмещенный, при ремонте можно сделать раздельный,
Две застекленные лоджии по 4,0 м2.
Один взрослый собственник.
Юридически и физически свободная!
Полная стоимость в ДКП.
















