Если цена в объявлении изменится, мы сразу сообщим вам об этом на электронную почту.
Нажимая «Подписаться», вы соглашаетесь с правилами.
продам 3-к, Красногорский бульвар, 617 500 000 ₽
20 июля
Дата публикации объявления
Обн. 31 окт
Дата обновления объявления
227 865 ₽/м²
Чистая продажа
Термин "Чистая продажа" означает, что в квартире никто не прописан или
есть куда выписаться и вывезти вещи. Это лучший вариант для покупателя.
Вероятность срыва сделки минимальна.
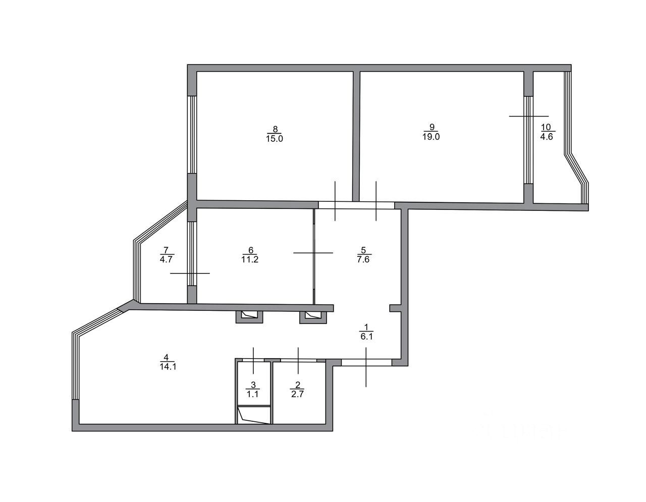
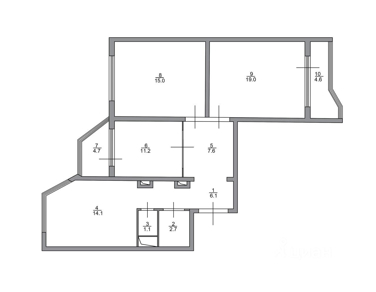
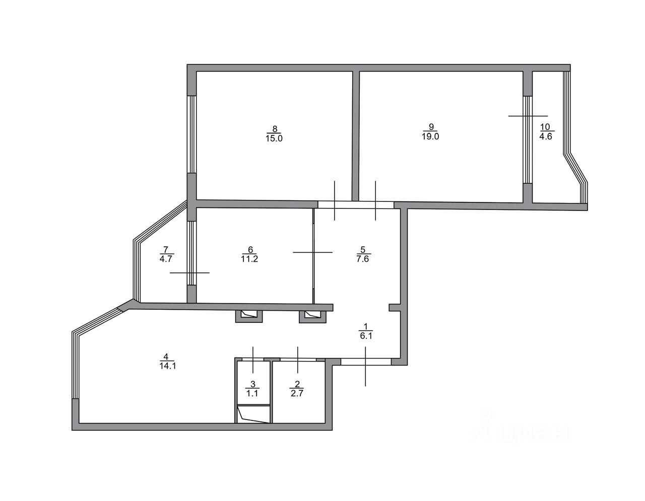
Продается уютная трехкомнатная квартира в Красногорске, по адресу: Красногорский бульвар, 6. Общая площадь квартиры составляет 76,8 кв. м, жилая площадь — 45,2 кв. м, а кухня — 14,1 кв. м. Квартира расположена на 21 этаже 25-этажного дома, построенного в 2012 году. Высота потолков — 2,64 метра. Окна выходят как во двор, так и на улицу, поэтому в квартире всегда много света.
Квартира с косметическим ремонтом, поэтому готова к проживанию. Просторная кухня позволяет установить всю необходимую технику и мебель. Здесь вы найдете один отдельный санузел. В квартире есть лоджия и балкон, что дает дополнительные возможности для хранения или отдыха на свежем воздухе.
Продается уютная трехкомнатная квартира в Красногорске, по адресу: Красногорский бульвар, 6. Общая площадь квартиры составляет 76,8 кв. м, жилая площадь — 45,2 кв. м, а кухня — 14,1 кв. м. Квартира расположена на 21 этаже 25-этажного дома, построенного в 2012 году. Высота потолков — 2,64 метра. Окна выходят как во двор, так и на улицу, поэтому в квартире всегда много света.
Квартира с косметическим ремонтом, поэтому готова к проживанию. Просторная кухня позволяет установить всю необходимую технику и мебель. Здесь вы найдете один отдельный санузел. В квартире есть лоджия и балкон, что дает дополнительные возможности для хранения или отдыха на свежем воздухе.
Дом в отличном состоянии, оснащен пассажирским и двумя грузовыми лифтами, поэтому можно легко и быстро добраться до квартиры. Для удобства жителей предусмотрен мусоропровод. Район развитый: поблизости находятся школы, детские сады и магазины, что делает проживание здесь комфортным для всей семьи.
Отличная транспортная доступность: до станции метро Пенягино можно дойти пешком за 11 минут. Это позволяет быстро добраться до центра Москвы и других районов.
Квартира продается по договору купли-продажи. Возможна ипотека, все документы готовы к сделке. Обременений нет, поэтому покупка будет быстрой и безопасной.
Приглашаем вас на просмотр этой замечательной квартиры! Звоните, чтобы договориться о времени визита. Будем рады ответить на ваши вопросы и помочь сделать правильный выбор.