Номер объекта 84066.
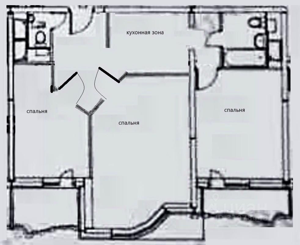
Продается квартира на 12 этаже. Планировка квартиры включает в себя: три спальни, кухонную зону и два санузла. В квартире установлено система кондиционирования. Чистый подъезд, тихий двор, рядом детский сад, школа.
Павшинская пойма - микрорайон города Красногорска, построенный в одноимённой речной пойме на границе с Москвой. С северо-востока, востока и юга территория ограничена рекой Москвой с набережной для прогулок, с запада, северо-запада Волоколамским шоссе. В пешей доступности метро Мякинино и МЦД Пенягино, на автомобиле 20 мин до ТТК.












