Если цена в объявлении изменится, мы сразу сообщим вам об этом на электронную почту.
Нажимая «Подписаться», вы соглашаетесь с правилами.
продам 3-к, Весенняя, 2 корп. 6150 000 000 ₽
8 июля 2025
Дата публикации объявления
Обн. 12 мая
Дата обновления объявления
13
Количество просмотров (+ просмотры за сегодня)
Топ
Спецпредложение
Выделение цветом
Турбо x2
Турбо x4
Турбо x8
1 181 102 ₽/м²
Чистая продажа
Термин "Чистая продажа" означает, что в квартире никто не прописан или
есть куда выписаться и вывезти вещи. Это лучший вариант для покупателя.
Вероятность срыва сделки минимальна.
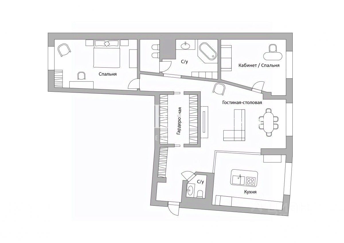
ID: 577034 Эксклюзивная 3-комнатная квартира площадью 127 кв.м. на последнем этаже жилого комплекса ''Сколково Парк''.
В квартире выполнена качественная отделка в классическом стиле с использованием дорогих натуральных материалов (натуральное дерево, камень). Планировочным решением предусмотрены: просторная гостиная-столовая с выделенной зоной кухни, спальня, кабинет (или вторая спальня), 2 санузла, гардеробная комната с увеличенной высотой потолков 4,10 метров.
Квартира укомплектована мебелью и техникой премиальных брендов: Siemens (посудомоечная машина, варочная панель, СВЧ, полка для подогрева посуды), вытяжка Miele для ресторанных кухонь, холодильник LG.
В наличии 2 машино-места в подземном паркинге.
ID: 577034 Эксклюзивная 3-комнатная квартира площадью 127 кв.м. на последнем этаже жилого комплекса ''Сколково Парк''.
В квартире выполнена качественная отделка в классическом стиле с использованием дорогих натуральных материалов (натуральное дерево, камень). Планировочным решением предусмотрены: просторная гостиная-столовая с выделенной зоной кухни, спальня, кабинет (или вторая спальня), 2 санузла, гардеробная комната с увеличенной высотой потолков 4,10 метров.
Квартира укомплектована мебелью и техникой премиальных брендов: Siemens (посудомоечная машина, варочная панель, СВЧ, полка для подогрева посуды), вытяжка Miele для ресторанных кухонь, холодильник LG.
В наличии 2 машино-места в подземном паркинге.
Жилой комплекс ''Сколково Парк'' состоит из семи зданий разной этажности, расположенных рядом с набережной реки Сетунь, Троекуровской рощей и парком ''Мещерский''. Стильные входные группы. Круглосуточный консьерж-сервис. Огороженная и охраняемая территория, видеонаблюдение. Предусмотрен огромный 2-уровневый подземный паркинг на 886 автомобилей. На внутренней территории комплекса расположен парк с прудами в английском стиле. В комплексе богатая внутренняя инфраструктура: магазины, ресторан, детский клуб с бассейном, английский детский сад, спортивно-творческий центр, салон красоты, бизнес-парк, теннисный корт, детская игровая площадка, баскетбольная площадка, гольф-клуб.