Если цена в объявлении изменится, мы сразу сообщим вам об этом на электронную почту.
Нажимая «Подписаться», вы соглашаетесь с правилами.
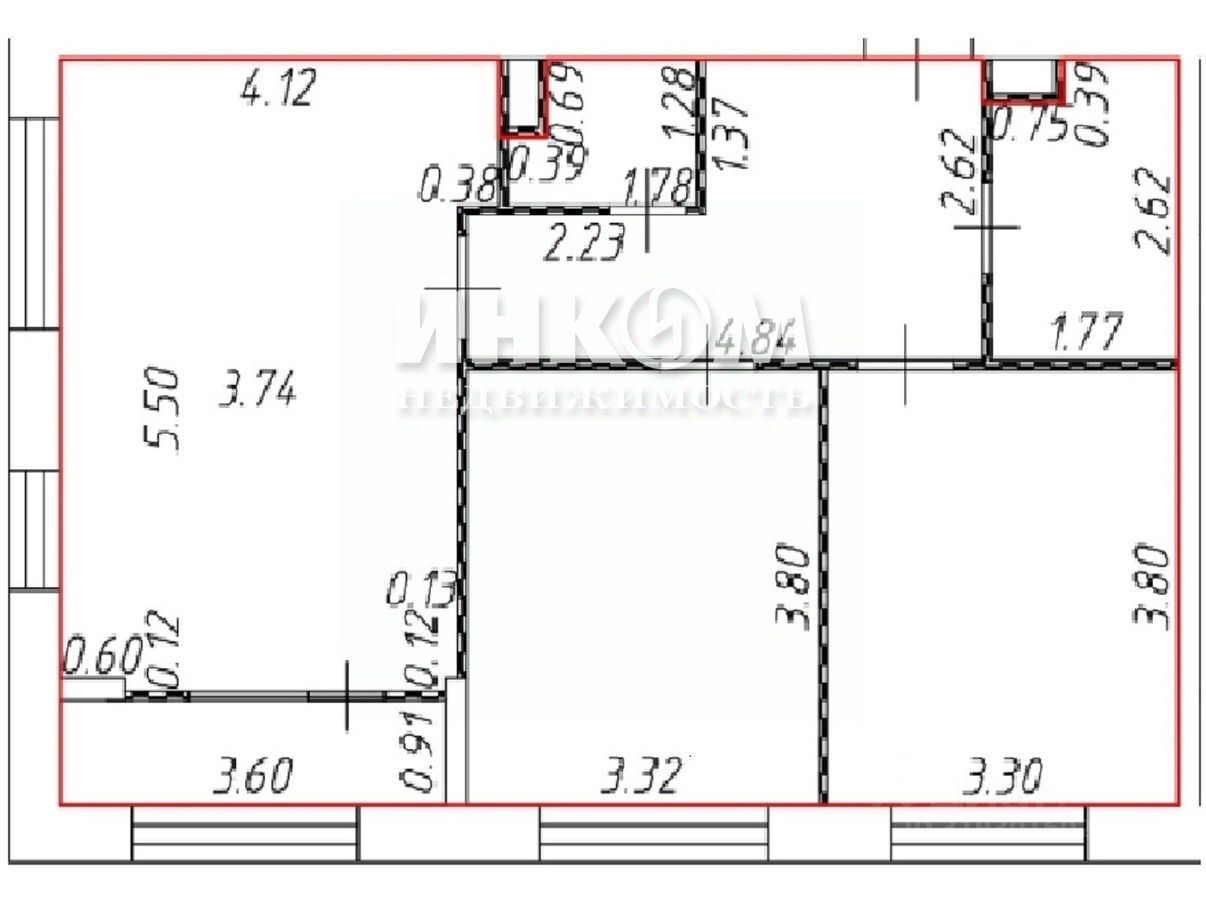
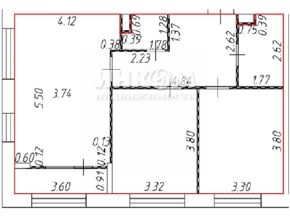
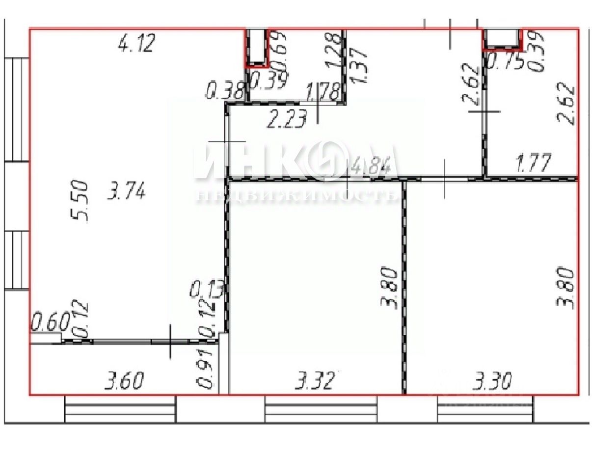
продам 3-к, бульвар Серебряный, 210 700 000 ₽
1 июля 2025
Дата публикации объявления
Обн. 14 июля 2025
Дата обновления объявления
2
Количество просмотров (+ просмотры за сегодня)
172 303 ₽/м²
Чистая продажа
Термин "Чистая продажа" означает, что в квартире никто не прописан или
есть куда выписаться и вывезти вещи. Это лучший вариант для покупателя.
Вероятность срыва сделки минимальна.
Номер лота: вт-0423562. Предлагаем 3-х комнатную квартиру в современном комфорт-класс ЖК ''Серебрица'', 12-этажном монолитно-кирпичном доме, отличная, светлая (5 окон) с прекрасным видом на лесопарковую зону. Общая площадь по документам: 62,1 кв.м. (с учетом лоджии). Стеклопакеты - 1.8 х 2.0 м., Высокие потолки - 2.97 м. В квартире выровнены стены по периметру под покраску или обои. Все счетчики установлены (отопление, вода, свет) на балансе Мособлеирц. Очень теплая квартира. Входная группа находится на уровне земли для обеспечения удобства малоподвижных групп населения, лифт KONE. Уютный подъезд с витражным остеклением и с двумя входами: со двора и с улицы. Кладовые помещения.
Номер лота: вт-0423562. Предлагаем 3-х комнатную квартиру в современном комфорт-класс ЖК ''Серебрица'', 12-этажном монолитно-кирпичном доме, отличная, светлая (5 окон) с прекрасным видом на лесопарковую зону. Общая площадь по документам: 62,1 кв.м. (с учетом лоджии). Стеклопакеты - 1.8 х 2.0 м., Высокие потолки - 2.97 м. В квартире выровнены стены по периметру под покраску или обои. Все счетчики установлены (отопление, вода, свет) на балансе Мособлеирц. Очень теплая квартира. Входная группа находится на уровне земли для обеспечения удобства малоподвижных групп населения, лифт KONE. Уютный подъезд с витражным остеклением и с двумя входами: со двора и с улицы. Кладовые помещения. Облагороженная придомовая, охраняемая территория, видеонаблюдение, спортивные площадки, шлагбаумы на въезд, гостевая парковка, двор без машин. Своя котельная. Развитая инфраструктура - муниципальные школа и детский сад на территории ЖК, магазины и кафе, соседский клуб по интересам. Рядом лесопарк с озером ''Лесное''. Проживание в экологически чистом районе и близость от Москвы определяют основные достоинства ЖК. Транспортная доступность - МЦД D2 ''Опалиха'' 10 минут пешком. Удобный выезд на Волоколамское и Новорижское шоссе. Два взрослых собственника. Свободная продажа. Быстрый выход на сделку. Помощь в получении ипотеки и специальные условия для своих клиентов. Звоните!
Содействие в получении специальных условий и преференций по ипотеке.