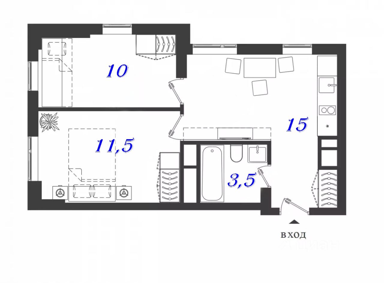
Единственная реально двухкомнатная (а не ''евродвухкомнатная'' с 2 окнами) квартира во всем ЖК в продаже на сегодня с такой редкой планировкой. Во второй очереди таких планировок нет вообще.
В связи с изменившимися семейными обстоятельствами продается реально светлая двухкомнатная 40-метровая ВИДОВАЯ квартира с интереснейшей планировкой(есть вариант САНУЗЛА С ОКНОМ), включающей в себя 5 (ПЯТЬ) удобно расположенных окон в 4 зонах/помещениях!) За счет крайне выгодного расположения на этаже (поэтажный план прилагаю), в квартире ЕДИНСТВЕННАЯ смежная стена только с одной студией(в которой живет одна девушка), что позволяет не беспокоиться о тишине и спокойствии.
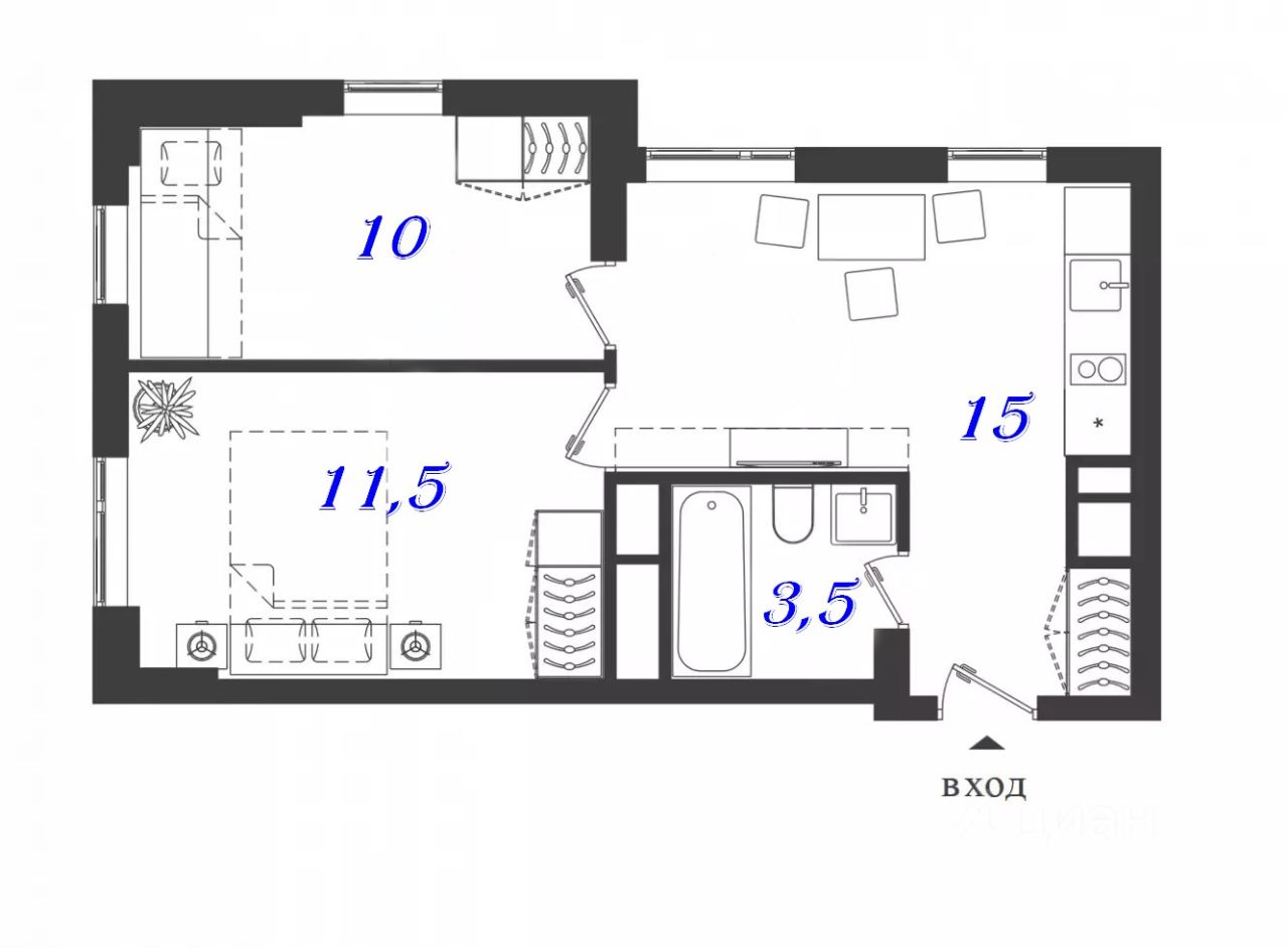
Единственная реально двухкомнатная (а не ''евродвухкомнатная'' с 2 окнами) квартира во всем ЖК в продаже на сегодня с такой редкой планировкой. Во второй очереди таких планировок нет вообще.
В связи с изменившимися семейными обстоятельствами продается реально светлая двухкомнатная 40-метровая ВИДОВАЯ квартира с интереснейшей планировкой(есть вариант САНУЗЛА С ОКНОМ), включающей в себя 5 (ПЯТЬ) удобно расположенных окон в 4 зонах/помещениях!) За счет крайне выгодного расположения на этаже (поэтажный план прилагаю), в квартире ЕДИНСТВЕННАЯ смежная стена только с одной студией(в которой живет одна девушка), что позволяет не беспокоиться о тишине и спокойствии. В квартире: - уже возведены и оштукатурены ''под ноль'' стены и перегородки, - стоят хорошие 2-камерные стеклопакеты, - переделана разводка отопления с недорогого пластика от застройщика на самый надежный сшитый полиэтилен Rehau (только за это отдали 170 тыс.руб.), - закуплены материалы для стяжки, - установлен тепловой счетчик (который позволяет очень серьезно экономить на отоплении), - имеются 2 корзины для внешних блоков кондиционеров, расположенные на разных сторонах дома (из кухни-гостиной и из одной из комнат). Такой транспортной доступностью могут похвалиться даже не все районы старой Москвы- хоть на авто, хоть на общественном транспорте: от подъезда до станции Павшино МЦД-2: 4 минуты, до логистического центра Москвы- Комсомольской площади: 40 мин без пересадок на комфортабельном поезде!) Инфраструктура: - в самОм доме на первых 3 этажах расположился шикарный ТЦ Тетрис с гипермаркетом Лента, - в 5 минутах находятся пять ТЦ: ТЦ Июнь, ТЦ Пассаж, ТЦ Карамель, ТЦ Л13, ТЦ Красногорское РайПО, - на закрытой и огороженной территории жилого комплекса Тетрис в ближайшее время ожидается сдача построенного детского сада и школы, - через дорогу расположены: Медицинский колледж 1, два корпуса Гимназии 7 им. Д.П.Яковлева, Красногорский Экономико-Правовой техникум, - также через дорогу находятся: Соц.фонд России, станция скорой помощи. Возможен ОБМЕН на квартиру в районе м.Сходненской, м. Планерной, ул. Героев Панфилоцев, ул. Туристской, предлагайте варианты!) Звоните, отвечу с радостью на все Ваши вопросы!)