Продаётся 4-х комнатная квартира рядом с МЦД. Зелёный район ближнего Подмосковья.
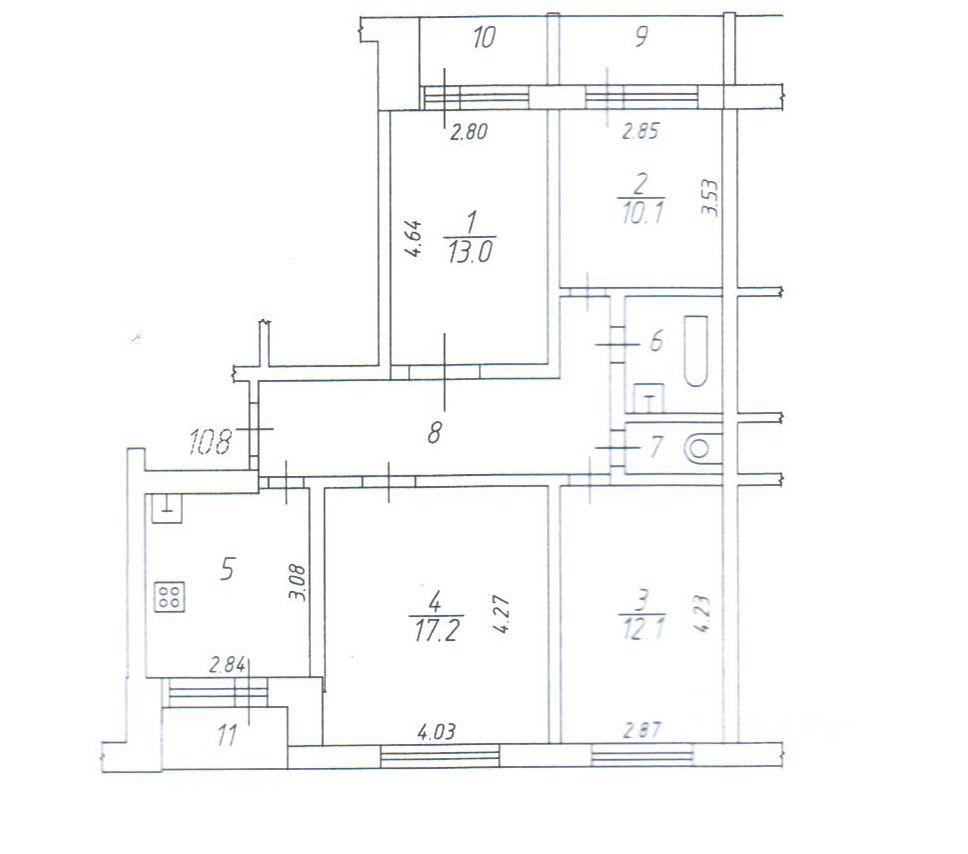
Удобная планировка: все комнаты изолированные, окна выходят на обе стороны, три застеклённых лоджии. Тихий и спокойный район. Хорошие соседи. Хорошая транспортная доступность: МЦД ''Павшино''или '' Красногорская'' , удобный выезд на Волоколамское шоссе и МКАД.
В шаговой доступности расположены гимназия, лицей, детские сады. Рядом два спортивных стадиона, фитнес-центры, крупные торговые центры (''Красный кит'', ''Июнь'', ''Парк''), Дворец культуры ''Подмосковье'', парки и пруды. Счётчики на воду установлены, перепланировок нет.
Два взрослых собственника. В собственности более 10 лет. Риэлторов просьба не беспокоить























