Офисное помещение
Речная, 25а Показать на карте
Речная, 25а Показать на карте
Красногорск
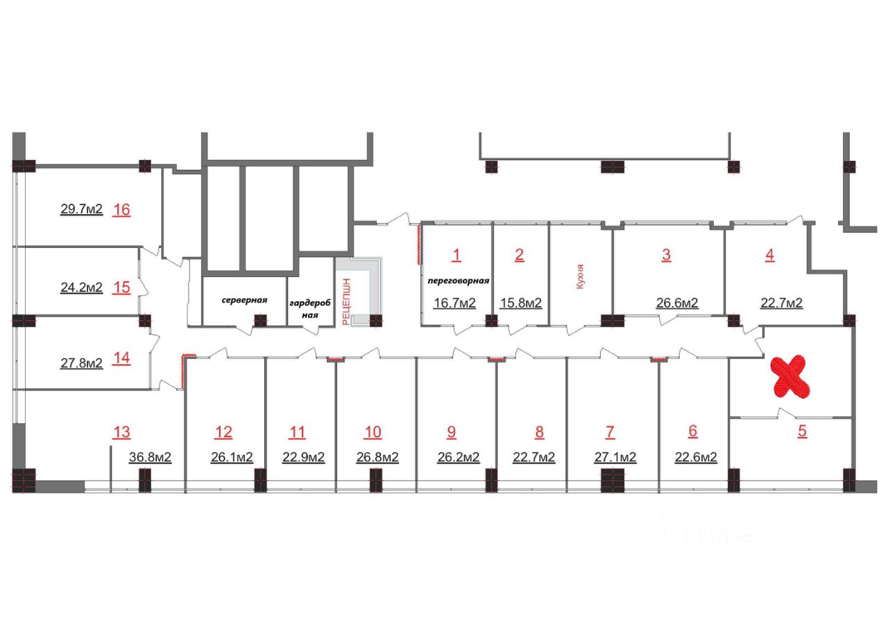
КН-061. Сдаем в аренду офисное помещение в административном бизнес-центре. Офисная отделка. Предоставляется юридический адрес!Имеется охрана, видеонаблюдение, наземная парковка. Выгодная локация. Транспортная доступность - недалеко находится ж/д станция Павшино и станция метро Митино. Индивидуальный подход для реального арендатора! Оперативный показ по договоренности.
21 м2
- Показать контакты
- Добавить в избранное
21 м2
26 000 /мес.
1 238 /м2
