Дом, Солнечная, 2 Показать на карте
Бузланово
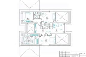
ПОСЛЕДНИЙ ДОМ В ОХРАНЯЕМОМ КЛУБНОМ ПОСЕЛКЕ ИЛЬИНСКИЙ ЛАНДШАФТ!Продается просторный дом без отделки в стиле Шале площадью 499,5 кв.м на участке 14,25 соток в КП Ильинский Ландшафт в д. Бузланово, 12 км от МКАД по Ильинскому шоссе.Посёлок построен в едином архитектурном стиле на 12 домовладений. Планировка: 1 этаж - прихожая, холл, с/у, гардеробная комната, зона кухни, столовая с выходом на террасу, просторная гостиная с камином, кабинет, комната отдыха, тех.помещение, СПА-блок: сауна, бассейн, с/у, котельная с отдельным входом, гараж на 2 м/м, 2 этаж - просторный холл с выходом на балкон, 3 мастер-спальни с выходами на балконы, гардеробными и ванными комнатами, блок для персонала с отдельным входом, Мансардный этаж - помещение свободного назначения.Дом удачно расположен на участке. Выполнен ландшафтный дизайн земельного участка, высажены лиственные и хвойные деревья, большое количество различных кустарников. КОММУНИКАЦИИ: Магистральный газ - в доме установлен котёл Wissmann, водоснабжение - центральное, электричество-15 кВт, канализация - ЦЕНТРАЛЬНАЯ.ПОСЕЛОК ЗАСЕЛЕН. В каждом домовладении есть камин, открытый внутренний дворик (патио) и гараж на 2 автомобиля, оснащенный автоматическими воротами, парковка на 2 м/м. Выполнен ландшафтный дизайн земельного участка. В поселке установлено круглосуточное видеонаблюдение по всему периметру.Вокруг поселка располагается крупный лесной массив, поэтому район славится благоприятной экологией. В шаговой доступности: торговые объекты, спортивные учреждения, кафе и рестораны. Коттеджные поселки рядом: ''Прозорово'', ''Rubin Estate'', ''Нива'', ''Липка'', ''Третья охота'', ''Петровский'', ''Ёлочка'', ''Петрово-Дальнее'', ''Серебряные тропы'', ''Архангельское-2'', ''Усово-Огарево'', ''ParkVille Жуковка'', ''Царское село''.
500 м2
3 этажа
Кирпич
- Показать контакты
- Добавить в избранное
500 м2
3 этажа
Кирпич
63 999 990
128 000 /м2
